Eladó családi ház Budapest XVI. ker 216 000 000 Ft

Leírás

EGYÜTT, DE MÉGIS KÜLÖN! ÖSSZEKÖLTÖZŐK, NAGYCSALÁDOSOK FIGYELMÉBE!

ENERGIATAKARÉKOS ÉPÜLET!

AZ ÁR IRÁNYÁR!!

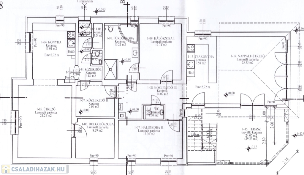
XVI. kerület Sashalom városrészen, rendezett, csendes, nyugodt utcában eladó egy 2010-ben épült, 270nm lakóterületű, 9 szobás, TÖBBGENERÁCIÓS, EGYEDI KIVITELEZÉSŰ, jelenleg 3 lakásból álló, modern, KÖRBEJÁRHATÓ, SZIGETELT családi ház 635 nm-es összközműves telken. Az épület körbenapozott, ez által nagyon világos.

A családi ház 2 részletben került kialakításra. Az elülső, kb. 40nm-es 1960-as években épült MASSZÍV szerkezetű lakrészt 2010-ben teljes körűen újjáépítették és kibővítették a jelenlegi méretére. Az épület 30-as Porotherm téglából készült, melyet 15cm-es Dryvit-jellegű szigeteléssel láttak el. Nagyméretű ablakai energiatakarékos, 3 rétegű üvegezéssel ellátott fóliázott műanyagok, míg a bejárati ajtók alumínium. A fűtésről padlófűtés, valamint kombi gázcirkó kazán gondoskodik radiátoros hőleadókkal.
A korszerű fűtési rendszernek, valamint a modern nyílászáróknak köszönhetően a REZSI KÖLTSÉG még télen is IGEN ALACSONYAN TARTHATÓ!

A lakásban mozgásérzékelő, valamint riasztókiállás is kialakításra került.

1. FÖLDSZINTI LAKÁS: 57 nm lakóterületű, mely nappali, hálószoba, konyha, kádas-zuhanyzós fürdőszoba, mellékhelyiség, tároló, közlekedő kialakítású.

2. FÖLDSZINTI LAKÁS: 85nm lakóterületű, amerikai konyhás, terasz-kapcsolatos nappali, 2 hálószoba, kádas-zuhanyzós fürdőszoba, mellékhelyiség kapott helyet.

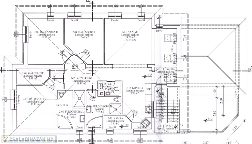
3. EMELETI LAKÁS: 121nm lakóterületű, mely nappali, konyha, 3 hálószoba, 2 fürdőszoba, mellékhelyiség, gardrób, tárolóhelyiség kialakítású, azonban a nappaliból feljutva a tetőtérbe megoldható további 2 szoba kialakítása is.

A lakásokat külön-külön külső teraszról közelíthetjük meg, azonban igény esetén a 2 földszinti, vagy akár mindhárom lakás az épületen belül EGYBENYITHATÓ! Minden lakrész EGYÉNI közüzemi MÉRŐÓRÁKKAL felszerelt.

A gondosan karbantartott telken helyet kapott egy kerti tároló is.
Parkolás a telken belül, valamint az épület előtt több autó részére kényelmesen megoldott.

A környék infrastrukturális ellátottsága remek, közelben bevásárlási lehetőségek, oktatási és kulturális intézmények, orvos, gyógyszertár, posta, bank megtalálható. Közlekedése is kitűnő, 5 perc séta távolsága számos BKK járat és HÉV-megállója megtalálható, Örs vezér tere kb. 10 perc alatt elérhető.

Hitel? Támogatás? Irodánk ingyenes hitel ügyintéző szolgáltatásával.
JOBBAN JÁR, mintha közvetlenül a bankban igényelne!

-egyedi, bankfiókban nem elérhető kamat és díjkedvezmények
-hitelképesség vizsgálat
-idő, energia és pénz megtakarítás
-teljes hivatali ügyintézés.

Bővebb információért, megtekintési szándékával hívjon bizalommal a hét bármely napján 8 és 20 óra között, mutatom az ingatlant akár HÉTVÉGÉN IS!

Családi ház részletei

Ár: 216 000 000 Ft
Méret: 270 négyzetméter
Azonosító: 11263876
Irodai azonosító: 355833
Cím: Sashalom
Telek: 635 négyzetméter
Ingatlan állapota: Kitűnő
Jelleg: családi ház
Építőanyag: Tégla
Fűtés jellege: Cirkó
Fűtés módja: Gáz
Komfort fokozat: Dupla komfort
Kor: 11-20 éves
Szintek száma: 1 szint
Egész szobák: 9

Egyéb jellemzők

  • Csatorna
  • Garázs
  • Pince
  • Terasz

Térkép


Így keressen családi házat négy egyszerű lépésben. Csupán 2 perc, kötelezettségek nélkül!

Szűkítse a családi házak
listáját
Válassza ki a megfelelő
családi házat
Írjon a hirdetőnek
Várjon a visszahívásra