Eladó családi ház Budapest XVI. ker, Rákosszentmihály, 209 900 000 Ft

Leírás

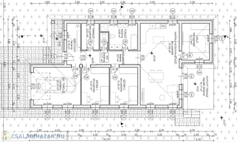
KÖRBEJÁRHATÓ, FÖLDSZINTES ÚJ ÉPÍTÉSŰ CSALÁDI HÁZ!
Kizárólag nálunk XVI. kerület Rákosszentmihály családi házas övezetben, NETTÓ 130m2-es, nappali + 3 szobás, garázsos (21m2), 2WC, gardróbszobás, plusz terasz (16 m2) földszintes körbejárható családi ház kulcsrakészen 2026. év tavaszi átadással 703 m2-es, összközműves teleken eladó. A garázsból plusz még egy szoba kialakítható így nappali+4 szobás is lehet az ingatlan.
MŰSZAKI TARTALOM:
• egyedi hőszivattyús hűtés, fűtéssel (Gree T-CAP 12 KW), mindenhol padlófűtéssel,a melegvíz ellátás beépített 180 literes tárolóból. A hőszivattyú külön H-tarifás villanyórával rendelkezik.
• Porotherm okos tégla falazat , Porotherm10-es válasz tégla falazat
• vasbeton födémrendszer
• 15 cm-es drivyt szigetelés
• 3 rétegű műanyag nyílászárók (76mm-es 5 légkamrás sötétbarna színű), elektromos redőny,szúnyogháló
• burkolatok (hideg burkolat 8000ft/m²-ig , meleg burkolat 6500-ft /m²-ig) és a beltéri ajtók (100000 ft/db-ig) választhatók
• GREE hőszivattyú (Gree T-CAP 12 KW) minden helységben padlófűtés
• Riasztó előkészítés, elektromos garázs kapu,elektromos toló kapu, kaputelefon előkészítés
A házra CSOK és egyéb kedvezmények igénybe vehető. Tervezett átadás 2026. tavasz
Aszfaltozott, összközműves utca. Közelben iskola, óvoda, üzletek.
Magyarország piacvezető hitelközvetítője által egyedi kamatkedvezményekkel és bankfüggetlen, díjmentes hitelügyintézéssel is segítjük vásárlását. Hívjon bizalommal!

Családi ház részletei

Ár: 209 900 000 Ft
Méret: 138 négyzetméter
Azonosító: 11551463
Városrész: Rákosszentmihály
Telek: 703 négyzetméter
Ingatlan állapota: Kitűnő
Jelleg: családi ház
Építőanyag: Kérdezzen rá a hirdetőtől »
Szintek száma: 1 szint
Egész szobák: 4

Egyéb jellemzők

  • Csatorna
  • Garázs
  • Kábel TV
  • Melléképület
  • Parketta
  • Pince
  • Terasz

Így keressen családi házat négy egyszerű lépésben. Csupán 2 perc, kötelezettségek nélkül!

Szűkítse a családi házak
listáját
Válassza ki a megfelelő
családi házat
Írjon a hirdetőnek
Várjon a visszahívásra