Eladó családi ház Budapest XVI. ker 164 900 000 Ft

Leírás

Eladó modern, napelemes sorház, szinte nulla rezsivel Mátyásföld legszebb részén – tehermentes, azonnal költözhető!

Mátyásföld-Petőfi kertben természetvédelmi övezet mellett, eladó egy 6 éve épült, világos, korszerű, dél-nyugati fekvésű sorházi ingatlan.

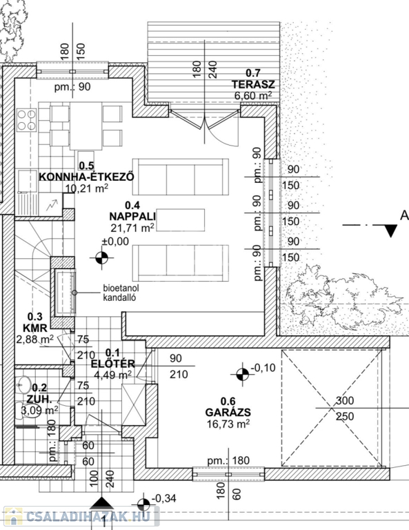
A 98 nm-es lakótér mellett 17 nm-es fűtött garázs, 5 nm erkély, a földszinten 20 nm-es megnagyított terasz és 241 nm saját kert tartozik hozzá.

Tehermentes, azonnal költözhető!

Főbb jellemzők:

✅ Tágas nappali amerikai konyhával (32 nm) – beépített Whirlpool és Gorenje gépekkel.

✅ Összesen nappali+ 3 hálószoba.

✅ Beépített szekrények az emeleti szobákban.

✅ Két fürdőszoba – az alsó szinten zuhany, az emeleten sarokkád.

✅ Modern gépészet – padlófűtés (alsó szint és felső fürdő), radiátoros fűtés, Remeha kazán.

✅ Automata redőnyök és rolós/pliszé szúnyoghálók minden hálószobában.

✅ 241 nm-es kert – pergolás, 20 nm-es fedett terasz, automata öntözőrendszer.

✅ Energiatakarékos megoldások – 5 kW-os napelem rendszer.

✅ Daikin hűtő-fűtő klíma.

✅ Közművek egyedi mérőórákkal.

✅ Biztonság – mozgás- és nyitásérzékelős riasztó.

Minőségi anyagokkal épült, háromrétegű üvegezésű nyílászárókkal, Porotherm falazattal és Dryvit szigeteléssel.

Megtekintéssel kapcsolatban, várom megtisztelő hívását!

Az ingatlan csak referenssel tekinthető meg!

A hirdetésben feltüntetett adatok és információk csak tájékoztató jellegűek, jogi kötelezettséggel nem bíró jognyilatkozatnak minősülnek, mely nem tekinthető ajánlat tételnek és nem járnak az eladóra nézve kötelező ajánlati kötöttséggel.

Családi ház részletei

Ár: 164 900 000 Ft
Méret: 120 négyzetméter
Azonosító: 11573005
Irodai azonosító: 388567
Cím: Ajak utca
Telek: 241 négyzetméter
Ingatlan állapota: Kitűnő
Jelleg: sorház
Építőanyag: Tégla
Fűtés jellege: Cirkó
Fűtés módja: Gáz
Komfort fokozat: Dupla komfort
Kor: 6-10 éves
Szintek száma: 1 szint
Egész szobák: 4

Egyéb jellemzők

  • Csatorna
  • Garázs
  • Pince
  • Terasz

Térkép


Így keressen családi házat négy egyszerű lépésben. Csupán 2 perc, kötelezettségek nélkül!

Szűkítse a családi házak
listáját
Válassza ki a megfelelő
családi házat
Írjon a hirdetőnek
Várjon a visszahívásra