Eladó családi ház Budapest XVI. ker 133 900 000 Ft

Leírás

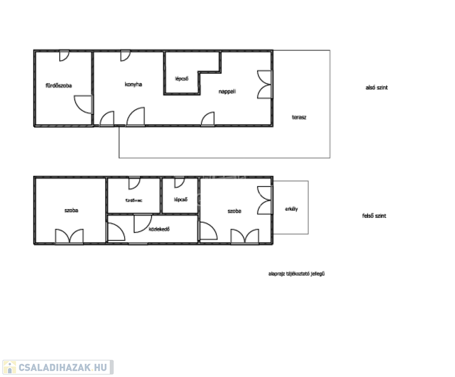
Eladásra kínálunk egy újszerű állapotú, 69 m²-es házrészt a XVI.kerület csendes kertvárosi részén.
A három szobás ingatlannal egyben 180 m²-es saját kert is jár, ami kiváló lehetőséget nyújt pihenésre és szabadidős tevékenységekre. Plusz kocsi beállás is megoldott.
A házhoz tartozik egy 3 m²-es erkély és egy tágas, 32 m²-es terasz, kertre néző kilátással, amely tökéletes helyszín a kikapcsolódáshoz.
Az elektromos fűtési rendszer gondoskodik a kellemes hőmérsékletről a hideg téli hónapokban.

Az ingatlan modern kialakítású, és kiválóan illeszkedik a környezet kertvárosi jellegéhez.

Vegye fel a kapcsolatot velünk, és tekintse meg ezt az egyedi lehetőséget!

Családi ház részletei

Ár: 133 900 000 Ft
Méret: 69 négyzetméter
Azonosító: 11568756
Irodai azonosító: 381715
Cím: Baross utca
Telek: 280 négyzetméter
Ingatlan állapota: Kitűnő
Jelleg: családi ház
Építőanyag: Tégla
Fűtés jellege: Villany
Fűtés módja: Villany
Komfort fokozat: Összkomfort
Kor: 1-5 éves
Szintek száma: Földszintes
Egész szobák: 3

Egyéb jellemzők

  • Csatorna
  • Garázs
  • Pince
  • Terasz

Térkép


Így keressen családi házat négy egyszerű lépésben. Csupán 2 perc, kötelezettségek nélkül!

Szűkítse a családi házak
listáját
Válassza ki a megfelelő
családi házat
Írjon a hirdetőnek
Várjon a visszahívásra