Eladó családi ház Budapest XVI. ker 121 900 000 Ft

Leírás

ÖSSZEKÖLTÖZŐK, NAGYCSALÁDOSOK FIGYELEM!

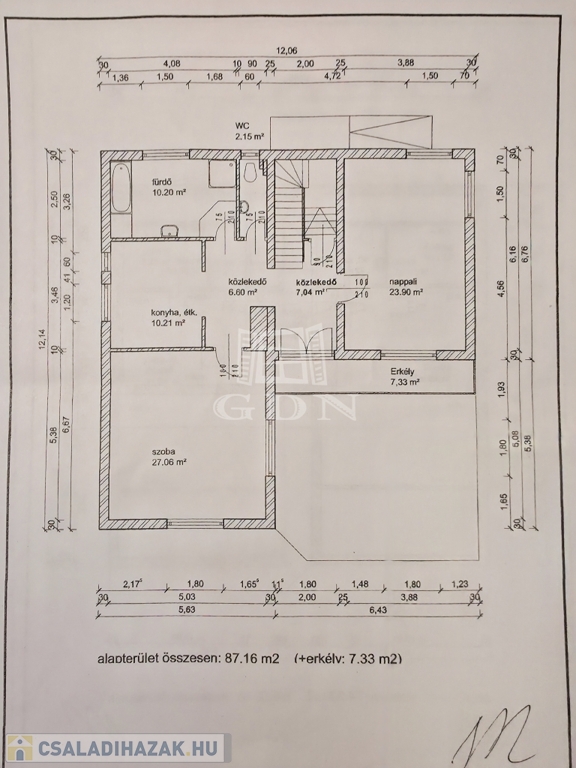
XVI.kerület Sashalom városrészén a Szérű utcában, megvételre kínálok egy bruttó 185 nm-es (nettó 168 nm), belső 2 szintes ikerház felet.

A lakást 2024-ben műszakilag felújították. Ennek keretében a nyílászárókat 3 rétegű műanyag ablakra cserélték redőnnyel és rovarhálóval, a teljes tetőszerkezet, beleértve a héjazat is teljesen megújult.

Az 1988-ban épült ingatlant egy saját lépcsőházon keresztül tudjuk megközelíteni, ahol helyet kapott egy tágas, délnyugati fekvésű nappali, egy keleti fekvésű hálószoba, konyha, fürdőszoba illetve külön wc. A közlekedőből érjük el a 7 nm-es erkélyt.

Szintén a közlekedőből jutunk fel a beépített teljes értékű tetőtérbe, ahol ki lett alakítva 2 db külön nyíló szoba, gardrób helyiség és egy zuhanyzós fürdőszoba. A nagyszoba további lehetőségeket rejt magába, szinte bárhogy lehet alakítani, akár 2 db szobává is.

A kizárólagos használatú saját (255 nm) kert az intimitást garantálja.
A viacolor térkő burkolattal kirakott részen, 1 autó tud megállni telken belül, az utcán 2 db autó, mely a társtulajdonossal fel lett osztva. A lakáshoz tartozik egy 15 nm-es tároló is.

A Használati megosztási szerződés szabályozza az esetleges közös terheket, előnyöket.

Közlekedése, infrastruktúrája kiváló! Sashalmi hév megálló 3 perc, akárcsak a SPAR szupermarket. Közelben patika, Iskola, Óvoda, minden is.

Azon ügyfeleimnek ajánlom ezt a remek elosztású kertvárosi ingatlant, aki nagy családdal költözne és nyitott az esetleg átalakításhoz, felújításhoz.

Az ingatlan előre egyeztetett időpontban, kizárólag ingatlanközvetítő bevonásával lehetséges!

Amennyiben hirdetésem felkeltette érdeklődését, várom hívását a hét bármely napján. tp

Családi ház részletei

Ár: 121 900 000 Ft
Méret: 164 négyzetméter
Azonosító: 11608414
Irodai azonosító: 393773
Cím: Szérű utca
Telek: 280 négyzetméter
Ingatlan állapota:
Jelleg: ikerház
Építőanyag: Tégla
Fűtés jellege: Cirkó
Fűtés módja: Gáz
Komfort fokozat: Dupla komfort
Kor: 21-50 éves
Szintek száma: 1 szint
Egész szobák: 4

Egyéb jellemzők

  • Csatorna
  • Garázs
  • Pince
  • Terasz

Térkép


Így keressen családi házat négy egyszerű lépésben. Csupán 2 perc, kötelezettségek nélkül!

Szűkítse a családi házak
listáját
Válassza ki a megfelelő
családi házat
Írjon a hirdetőnek
Várjon a visszahívásra