Eladó családi ház Budapest XV. ker 149 000 000 Ft

Leírás

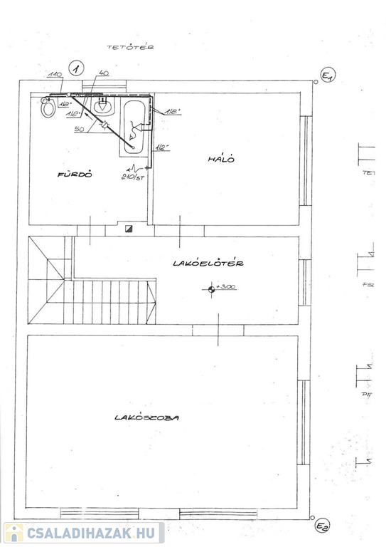
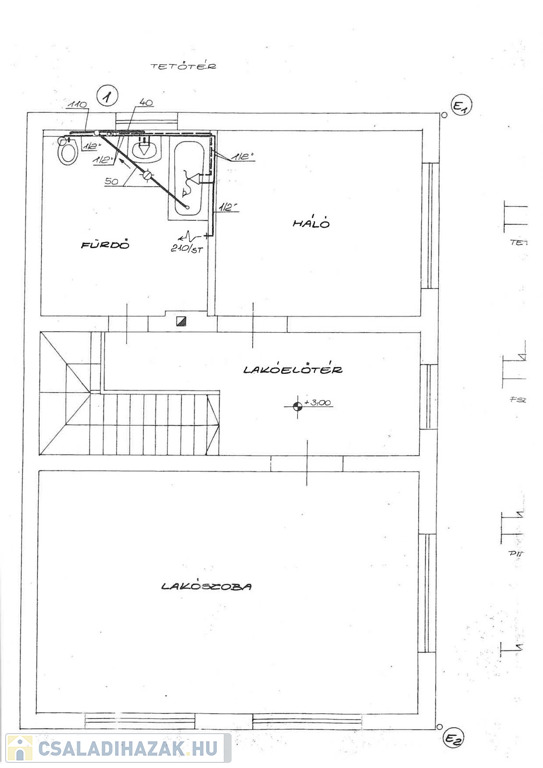
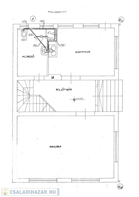
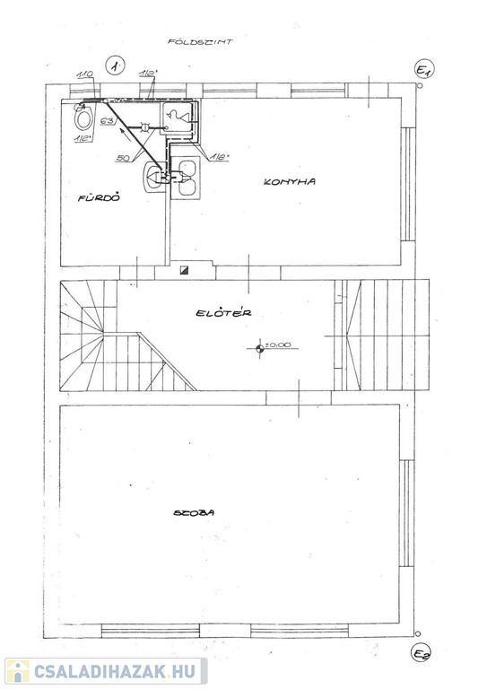
Megvételre kínálok a 15. kerületben, Rákospalota-Kertváros Zuglóhoz legközelebb eső részén, az M3-as bevezető szakaszával párhuzamos, csendes, szinte forgalomtól mentes utcájában, az Őrtűz utcában, családi házas övezetben, 427 nm alapterületű önálló telken álló, 1986-ban épült 3 szintes, majd 1996-ban a tetőtér beépítésével 4 szintes, pincézett, 6 szobás, 3 konyhás, 4 fürdőszobás, 254 nm-es, átlagos állapotú karbantartott, alapvetően költözhető állapotú, elő- és hátsókertes családi házat, 3 gépkocsi számára alkalmas beállóval, műhelyrésszel, plusz tárolókkal, szaletlivel, nyári konyhával, rendezett állapotú kerttel és udvarral, kb. 15 nm-es fedett terasszal.

Az egész családi ház alagsor + 2 szinten egyben 1986-ben épült zsaluköves kibetonozott alapzattal, pincével, az akkori előírások szerint megfelelő vízszigeteléssel, 42-es és 30-as vasbeton gerendás födémszerkezettel 60/19-es béléselemek, UNIFORM 14/19-es tégla falazat, 6-os és 10-es válaszfalak alkalmazásával, tetőtér beépítéses tetőszerkezettel, Bramac cserép héjalással, északnyugati fekvéssel, remek elosztású szobákkal, szintenként nagyon tágas nappalikkal. A legfelső szintet pedig 1996-ban építették be. A ház minden szempontból kellően világos.

Az ingatlant tágas terekkel tervezték és építették, a sok nyílászárónak köszönhetően nagyon világos és kellemes, családias hangulat jellemzi.

Műszaki állapot: a házban a nyílászárók 3 szinten 2 rétegű méretre gyártott műanyag ablakok, a legfelső szinten pedig fából készültek. A THERMO ÖV-35 típusú kazán gondoskodik a melegről a lapradiátorokon keresztül. A melegvizet pedig külön boyler szolgáltatja. A fűtés átalánydíja 20.000 Ft/hó. A többi fogyasztás a mérőórákkal mérés alapján történik, nagyon gazdaságos rezsiköltséggel.

Közlekedés: elhelyezkedéséből eredően gépkocsival könnyedén, és gyorsan megközelíthető az M3-as autópálya, valamint a tömegközlekedés is megoldott. A 25-ös, 125-ös busz megállója 2 percre található, de az 5-ös, 196 és 296-os busz megállója sincs messze, Zuglóval határos, ezért a 69-es villamos is elérhető, Újpest Városközpont 5-10 percre, a belváros akár 15-20 perc alatt megközelíthető, valamint a 996/996A éjszaki járat is pár percnyire innen közlekedik.

A következő párhuzamos utca Rákospalota főútja a Rákos út, így a közelben találhatóak vásárlási lehetőségek, orvosi rendelő, gyógyszertár, iskolák, óvodák, pár perc alatt elérhetők, a közelben megtalálhatóak. Gépkocsival a Pólus Center és az Asia Mall is könnyedén elérhető.

Elsősorban családosok, főleg nagycsaládosok figyelmébe ajánlom, akiknek fontos a nyugodt, csendes környezet, és azoknak is akik a 15. kerületben található, akár több generáció együttélésére alkalmas kertes, családi házra vágynak, melyet saját ízlésük szerint formálhatnak.

Az ingatlan tehermentes, a vételár kifizetését követően rugalmasan birtokba vehető.

Adatkezelés
Ezúton tájékoztatjuk, hogy Ön mint érdeklődő, a hirdetésben megjelölt telefonszám felhívásával hozzájárul személyes adatai – így különösen neve és telefonszáma -, a hirdetést feladó FORTISElit Ingatlan Kft. általi - biztonságos és körültekintő - kezeléséhez, nyilvántartásához. E körben, keresse a FORTISELIT ingatlaniroda weboldalát adatkezelési tájékoztatót.

We hereby inform you that You as an interested party, by calling the phone number mentioned in the advertisement, contribute to be your personal data – especially your name and phone number – handled and recorded safe and circumspectively by FORTISElit Ingatlan Kft as advertiser. Hereby, you can learn our Privacy Policy.

Finanszírozás:
Adatbázisunkban további több ezer ingatlanból választhat, hívjon bizalommal, hogy megtaláljuk a legmegfelelőbbet!
Hitelre van szüksége? Teljes körű és díjmentes hitel-ügyintézéssel, biztosításkötéssel áll rendelkezésére szakértő kollégánk. Kérje személyre szabott ajánlatunkat!

Családi ház részletei

Ár: 149 000 000 Ft
Méret: 254 négyzetméter
Azonosító: 11581773
Irodai azonosító: 345862
Telek: 427 négyzetméter
Ingatlan állapota:
Jelleg: családi ház
Építőanyag: Tégla
Fűtés jellege: Cirkó
Fűtés módja: Gáz
Komfort fokozat: Dupla komfort
Egész szobák: 6

Egyéb jellemzők

  • Terasz

Így keressen családi házat négy egyszerű lépésben. Csupán 2 perc, kötelezettségek nélkül!

Szűkítse a családi házak
listáját
Válassza ki a megfelelő
családi házat
Írjon a hirdetőnek
Várjon a visszahívásra