Eladó családi ház Budapest XV. ker 138 000 000 Ft

Leírás

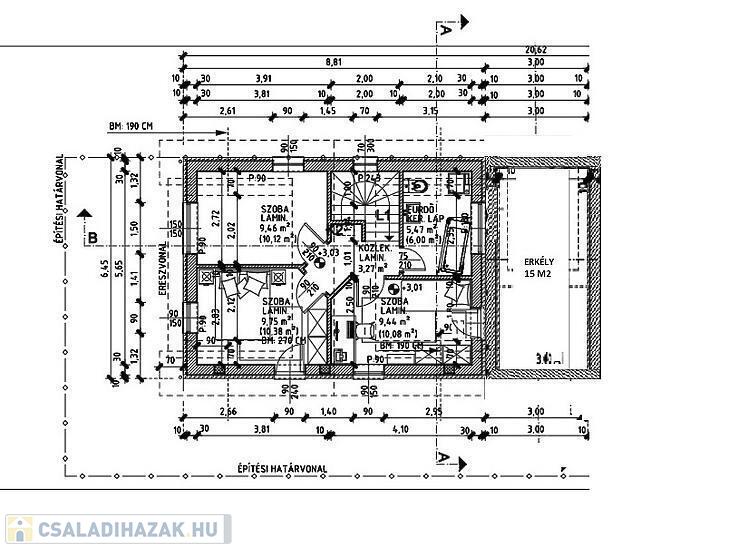
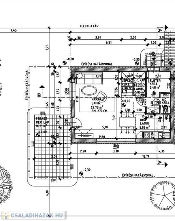
A XV.KERÜLETBEN: CSENDES KERTVÁROSI KÖRNYEZETBEN, ÚJ ÉPÍTÉSŰ, AMERIKAI KONYHÁS NAPPALIS, 3 HÁLÓSZOBÁS, 100 M2, KÉTSZINTES IKERHÁZFÉL, 160 M2 TELEKKEL, TÁGAS 15 M2 TERASSZAL, 15 M2 PRIVÁT ERKÉLLYEL, AUTÓBEÁLLÓVAL.



A KÖRNYÉK:

Kertváros egyik csendes utcája, családi házas környezet, jó szomszédsággal, kiváló közlekedéssel.

A HÁZ JELLEMZŐI:

A ház várható átadási határideje 2026 év vége.

Az ingatlan kétszintes lesz, 30-as porotherm téglából épül, amelyet egy 10 cm-es grafitos szigeteléssel is ellátnak majd. Egy tágas amerikai konyhás nappali étkezővel, 3 háló, fürdőszoba és mosókonyha kerül kialakításra.

Autóbeállási lehetőség adott, illetve egy hangulatos 15 m2-es terasz, egy 15 m2-es privát erkély és tároló is rendelkezésre fog állni.

A nyílászárók 5 légkamrás, 3 rétegű hőszigetelt ablakok lesznek. A fűtést kondenzációs kazán fogja biztosítani, a hideg burkolatok alatt padlófűtés kerül kialakításra, a szobákban pedig lapradiátorokat szerelnek fel. 2db hűtő-fűtő klíma is beszerelésre kerül.

Igény esetén extra költséggel kérhető: elektromos redőny, kamera, riasztó, konyhabútor, beépített szekrények.

Referencia ingatlanok megtekintése is lehetséges. 



FINANSZÍROZÁS:

Az ingatlan TEHERMENTES! Banki finanszírozással is megvásárolható, melyben irodánk ingyenes tanácsadással áll rendelkezésükre!

VEVŐINK RÉSZÉRE A KÖZVETÍTÉS DÍJTALAN !!

A hirdetésben szereplő adatok tájékoztató jellegűek.

Családi ház részletei

Ár: 138 000 000 Ft
Méret: 100 négyzetméter
Azonosító: 11574425
Irodai azonosító: 23631
Telek: 160 négyzetméter
Ingatlan állapota: Épülő
Jelleg: családi ház
Építőanyag: Kérdezzen rá a hirdetőtől »
Szintek száma: Földszintes
Egész szobák: 4

Így keressen családi házat négy egyszerű lépésben. Csupán 2 perc, kötelezettségek nélkül!

Szűkítse a családi házak
listáját
Válassza ki a megfelelő
családi házat
Írjon a hirdetőnek
Várjon a visszahívásra