Eladó családi ház Budapest XV. ker 130 000 000 Ft

Leírás

KIVÉTELES ADOTTSÁGÚ IKERHÁZ REFERENCIÁVAL RENDELKEZŐ BERUHÁZÓTÓL A KIÍRT ÁRON KULCSRAKÉSZEN!

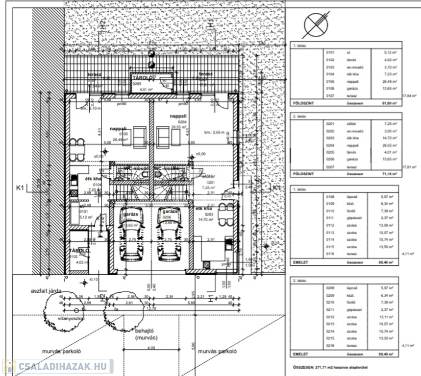
XV. kerület hangulatos kertvárosában, tömegközlekedési eszközök, közintézmények és számos szolgáltatás gyűrűjében kínálok eladásra, egy kitűnő adottságú, 350 m2 -es telken elhelyezkedő, 2025-ös építésű, két szintes, dupla komfortos, magas műszaki tartalommal rendelkező ikerházat.

Pillanatnyilag a ház mindkét lakása elérhető, amik az utcáról, egymástól elszeparáltan megközelíthetőek.

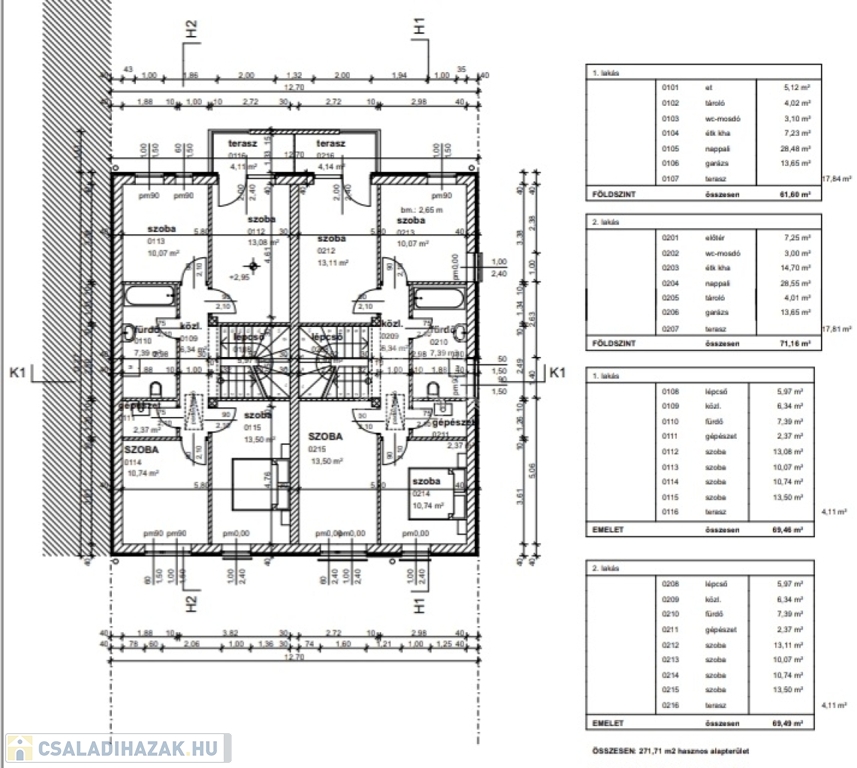
Az 1 lakás 130 m2 alapterülettel, a földszinten garázzsal,wc-vel ,amerikai konyhás-nappalival, az emeleten pedig 4 hálószobával + fürdőszobával került kialakításra.

A 2 lakás nagyobb kertkapcsolattal, 141 m2 alapterülettel, földszinten garázzsal,wc-vel ,amerikai konyhás-nappalival, az emeleten pedig 4 hálószobával + fürdőszobával került kialakításra.


A jelenlegi készültségi állapot lehető teszi, hogy a belső tartalom a vevő igényeihez legyen igazítva.
A tulajdonos a hideg és meleg burkolatokat 10 ezer, a szanitereket 400 ezer, a beltéri ajtókat 100 ezer forintos összeghatárig biztosítja, magasabb vevői igény a különbözet megfizetése után lehetséges.

Az ingatlan megtekinthető a hét bármely napján!
Várom a hívását, akár hétvégén is!

B.Cs.

Családi ház részletei

Ár: 130 000 000 Ft
Méret: 130 négyzetméter
Azonosító: 11577945
Irodai azonosító: 389333
Cím: Árvavár utca
Telek: 720 négyzetméter
Ingatlan állapota: Kitűnő
Jelleg: ikerház
Építőanyag: Tégla
Fűtés jellege: Cirkó
Fűtés módja: Gáz
Komfort fokozat: Dupla komfort
Kor: Új építésű
Szintek száma: 1 szint
Egész szobák: 5

Egyéb jellemzők

  • Csatorna
  • Garázs
  • Pince
  • Terasz

Térkép


Így keressen családi házat négy egyszerű lépésben. Csupán 2 perc, kötelezettségek nélkül!

Szűkítse a családi házak
listáját
Válassza ki a megfelelő
családi házat
Írjon a hirdetőnek
Várjon a visszahívásra