Eladó családi ház Budapest XIX. ker 84 900 000 Ft

Leírás

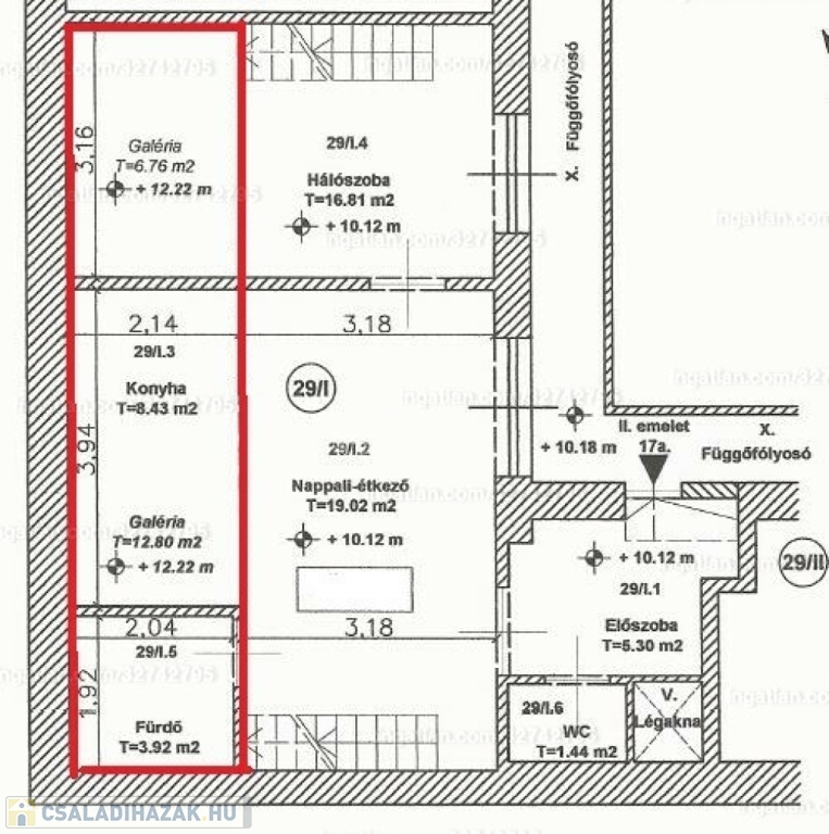
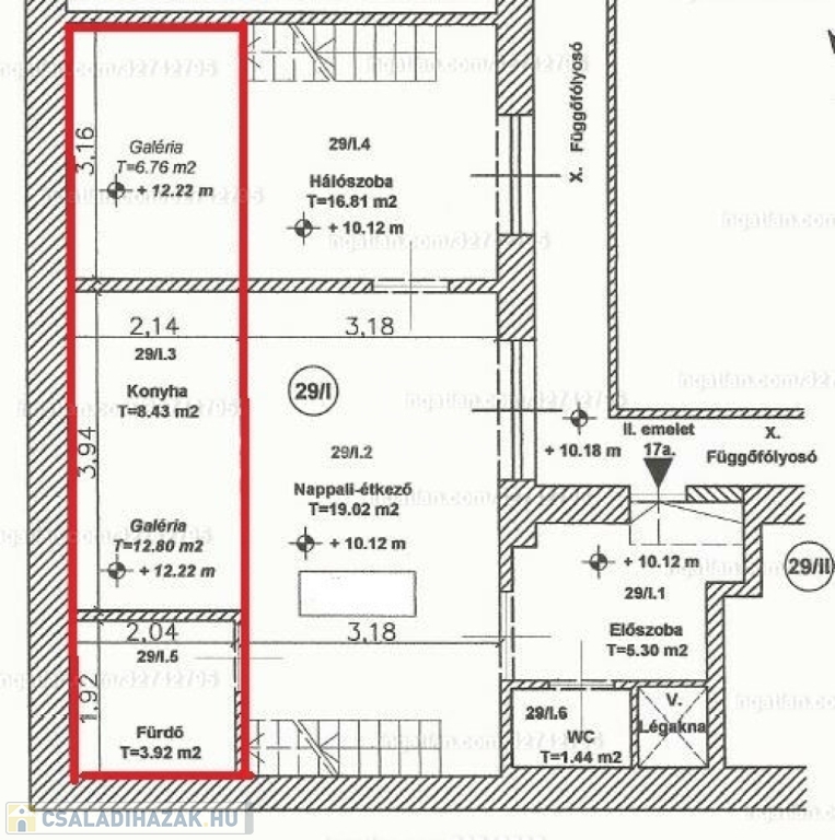
Budapest XIX. kerületében, Kispest csendes mellékutcájában eladó egy 360 m²-es telken fekvő, 110 m²-es hasznos alapterületű, 4+1 félszobás családi ház. Az ingatlan betonalapra épült téglaház, amely körbejárható, így biztosítva a maximális privát szférát. A csendes, nyugodt környezetben elhelyezkedő ingatlan közel van minden fontos szolgáltatáshoz és közlekedési csomóponthoz, így ideális választás lehet családok számára, akik biztonságos és kényelmes otthont keresnek.Közelben ,iskola óvoda stb. A házat a jelenlegi tulajdonos fokozatosan felújítja-klíma,garázs ,riasztó. várom hívását akár hétvégén is elérhető vagyok!!

Családi ház részletei

Ár: 84 900 000 Ft
Méret: 113 négyzetméter
Azonosító: 11428686
Irodai azonosító: 373187
Cím: Szegfű utca
Telek: 360 négyzetméter
Ingatlan állapota: Átlagos
Jelleg: családi ház
Építőanyag: Tégla
Fűtés jellege: Cirkó
Fűtés módja: Gáz
Komfort fokozat: Összkomfort
Kor: 21-50 éves
Szintek száma: Földszintes
Egész szobák: 4
Fél szobák: 1

Egyéb jellemzők

  • Csatorna
  • Garázs
  • Pince
  • Terasz

Térkép


Így keressen családi házat négy egyszerű lépésben. Csupán 2 perc, kötelezettségek nélkül!

Szűkítse a családi házak
listáját
Válassza ki a megfelelő
családi házat
Írjon a hirdetőnek
Várjon a visszahívásra