Eladó családi ház Budapest X. ker 149 900 000 Ft

Leírás

ÚJÉPÍTÉSŰ SORHÁZ ELADÓ ÚJHEGYEN!



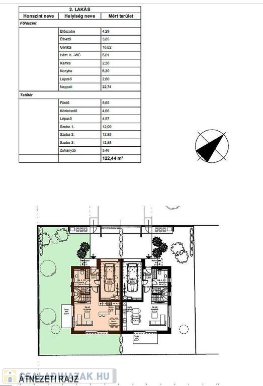
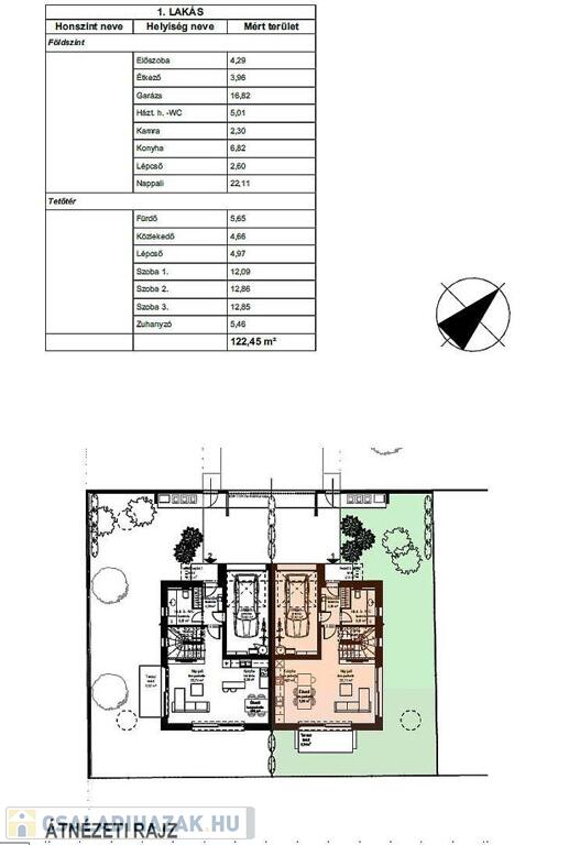
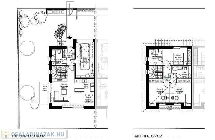
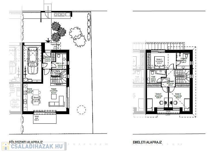
122nm-es,4 szobás, 2 szintes sorház, 231nm-es telekkel!





Eladásra kínálunk Újhegy egyik legjobb részén 2db jelenleg is épülő sorházat!

Maga a ház 2 szintből fog állni és 4 szobából, jelenleg látvány tervek vannak róla és műszaki leírás.

A házak kellemes hőérzetét levegős hőszivattyú berendezés fogja biztosítani, mely a padlóról, valamint a plafonról is egyaránt hűt-fűt.

A projekt menedzser tervei szerint 2026 III. negyedévére fognak elkészülni és utána azonnal birtokba vehetőek.

Az ingatlanokhoz tartozni fog egy-egy fedett garázs és kocsibeálló is.

A 2 ingatlan társasházzá lesz nyilvánítva, ügyvédi telekmegosztással, így hitelezhető lesz.

Infrastruktúrája kedvező ugyan is 10 perc sétára található tőle az újhegyi sétány, ahol minden megtalálható, ami a minden napi élethez szükséges: Spar, éttermek, dohánybolt, iskola, óvoda.

Közlekedés szempontjából is kiváló 28-as villamos a 95-ös és a 195-ös buszmegálló 5 perc sétára található, a 185-ös, 85-ös és a 117-es buszmegálló szintén 5 perc sétára található.



Az ár 149.900.000.- Ft / db.

Az ingatlan 1/1 tulaj és tehermentes.

Vevőink számára a közvetítés díjmentes.

Családi ház részletei

Ár: 149 900 000 Ft
Méret: 122 négyzetméter
Azonosító: 11593960
Irodai azonosító: 24466
Telek: 231 négyzetméter
Ingatlan állapota: Épülő
Jelleg: családi ház
Építőanyag: Kérdezzen rá a hirdetőtől »
Fűtés jellege: Egyéb
Szintek száma: 1 szint
Egész szobák: 4

Így keressen családi házat négy egyszerű lépésben. Csupán 2 perc, kötelezettségek nélkül!

Szűkítse a családi házak
listáját
Válassza ki a megfelelő
családi házat
Írjon a hirdetőnek
Várjon a visszahívásra