Eladó családi ház Budapest X. ker 134 900 000 Ft

Leírás

Új építésű, prémium kivitelezésű kétszintes ikerház Budapest X. kerületében – modern műszaki tartalommal és teljes átláthatósággal

Csendes, nyugodt mellékutcában, kiváló közlekedési és infrastrukturális adottságok mellett épül ez a kétszintes, ikerházi lakás, amely a modern építészeti megoldásokat ötvözi a magas szintű műszaki tartalommal és a kényelmi extrákkal.

Az ingatlan különlegessége a dupla falazat légréssel, amely kiváló hang- és hőszigetelést biztosít, így garantálva a nyugodt, zavartalan otthoni környezetet.

Főbb adatok
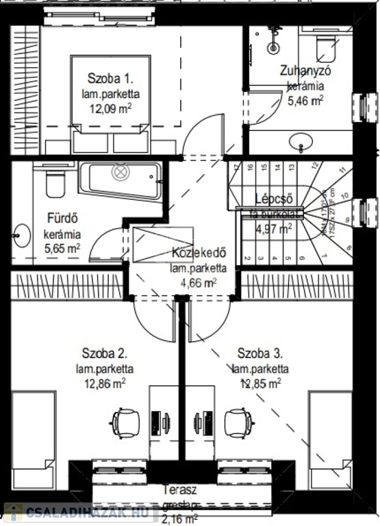
Hasznos alapterület: 122 m²
Telekméret: 231 m² saját kerttel
Szintek: földszint + emelet
Hálószobák: 3 külön nyíló szoba
Fürdőszobák: összesen 3 (2 az emeleten, 1 a földszinten)
Nappali: 33 m²-es amerikai konyhás tér, közvetlen teraszkapcsolattal
Parkolás: fedett, nagy méretű autó számára is alkalmas garázs
Műszaki tartalom
POROTHERM 30 N+F téglafalak, monolit vasbeton födém
15 cm homlokzati EPS hőszigetelés + 20 cm födémszigetelés
Hőszivattyús rendszerrel működő korszerű gépészet
Nappaliban fan-coil rendszer, az emeleten mennyezeti hűtés-fűtés
Padlófűtés minden helyiségben
3 rétegű, hőszigetelt nyílászárók, biztonsági bejárati ajtó
Laminált parketta és minőségi kerámia burkolatok
Terrán Zenit Max Carbon tetőcserép
Kényelmi és extra megoldások
Teljes körű okosotthon rendszer
Motoros alumínium redőnyök
Kamera- és riasztórendszer előkészítés
Videó kaputelefon
Elektromos kapu és autótöltési lehetőség
Automata öntözőrendszer
Igényes WPC kerítés, rejtett kültéri világítás
Légtechnikai rendszer kiépítve (garázs és előszoba)
Garázs és kiegészítő műszaki részletek
Temperált fűtéssel ellátott garázs
Belső oldalon 5 cm-es hőszigetelés
Praktikus kialakítás, nagyobb járművek számára is ideális
Digitális projektkövetés – teljes átláthatóság

A kivitelezés folyamata végig nyomon követhető:

Élő projektkövetés mobilon keresztül
Kéthetente részletes fotódokumentáció
Átadáskor teljes digitális dokumentáció (tervek, garanciák, jegyzőkönyvek)
Finanszírozás
Hitel igényelhető
Díjmentes hitelügyintézés
Elérhető állami támogatások
Várható átadás: 2026. III. negyedév

Ez az ingatlan ideális választás azok számára, akik modern technológiával felszerelt, energiatakarékos és prémium minőségű otthont keresnek csendes, mégis jól megközelíthető környezetben.

Ne maradjon le róla – kérjen további információt még ma!
ID: 394053

Családi ház részletei

Ár: 134 900 000 Ft
Méret: 122 négyzetméter
Azonosító: 11608107
Irodai azonosító: 394053
Cím: Szőlőtelep utca
Telek: 231 négyzetméter
Ingatlan állapota: Épülő
Jelleg: ikerház
Építőanyag: Tégla
Fűtés jellege: Geotermikus
Fűtés módja: Hőszivattyú
Komfort fokozat: Dupla komfort
Kor: Új építésű
Szintek száma: 1 szint
Egész szobák: 4

Egyéb jellemzők

  • Csatorna
  • Garázs
  • Pince
  • Terasz

Térkép


Így keressen családi házat négy egyszerű lépésben. Csupán 2 perc, kötelezettségek nélkül!

Szűkítse a családi házak
listáját
Válassza ki a megfelelő
családi házat
Írjon a hirdetőnek
Várjon a visszahívásra