Eladó családi ház Budapest III. ker 549 000 000 Ft

Leírás

III. Táborhegyen 700 nm-es ház 1511 nm-es telken eladó!



Intézmények, rekreációs cégek, egészségügyi központok, nagycsaládosok figyelmébe!



Az épület jelenlegi hasznos alapterülete kb. 700 nm. További 100 nm alapterület beépíthető szintenként.



A ház négyszintes, tágas helyiségekkel. A szinteket belső lépcső köti össze egymással. Műszaki szempontból kialakítható a belső lift.



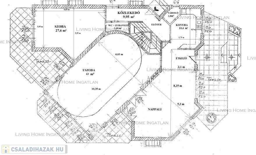
A földszinten található a 40 nm-es (10m x 4m, 1,60 mély) belső medence, amely a nappaliból  megközelíthető.



Három nagyméretű hálószoba található az emeleten, teraszokkal és pazar panorámával, dolgozó szoba, nappali, étkező, konyha, terasz a földszinten.



Az épületben 5 fürdőszoba található és szintenként mellékhelyiség.



2021-ben beépítésre került egy Bosch típusú kondenzációs kazán (távoli wifi vezérléssel), ez biztosítja a teljes épület fűtését (radiátorok és padlófűtés, a medence vízének fűtését, valamint a melegvíz ellátást).



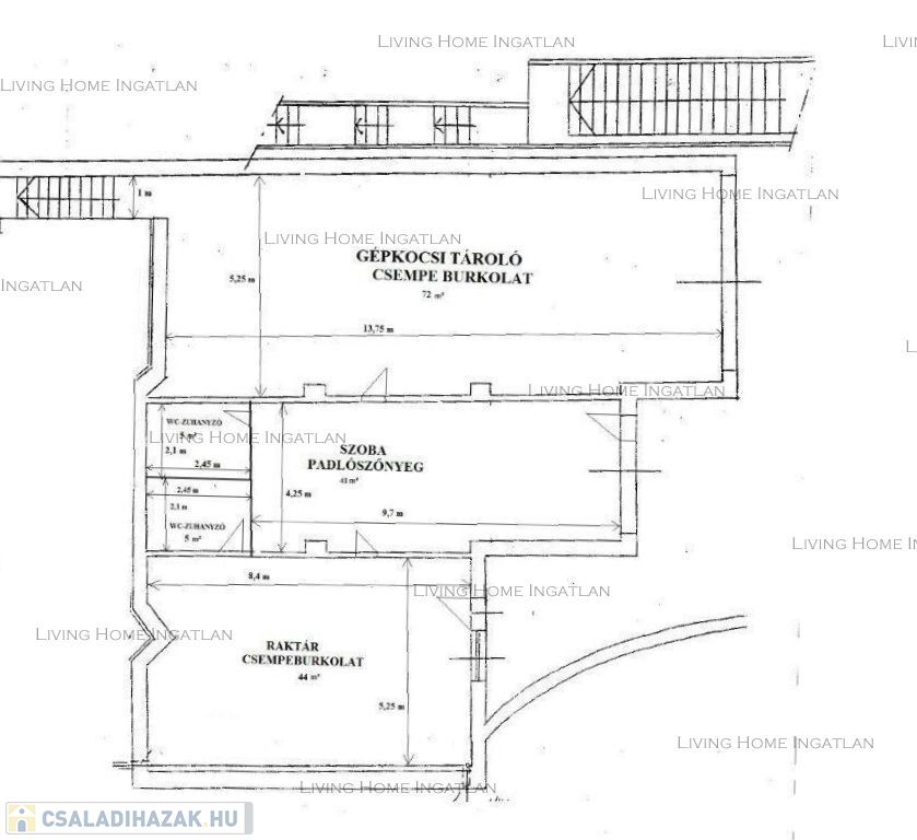
Az utcaszinten 6 személygépkocsi beállására alkalmas fűtött garázs helyezkedik el, amely tovább bővíthető igény szerint.



A garázsszinten önálló utcai bejáratos, ablakos, fürdőszobás két helyiség található, amelyek önálló APARTMANOK-ként vagy üzlethelyiségként, irodaként is hasznosíthatók.



Lakás a lakásban rendszer külön bejárattal.



Akár társasházzá is alakítható, csekély ráfordítással.



Az épület légkondicionáló- és riasztó rendszerrel ellátott.



Beépített szauna.



Nagy, ablakos gardrób vagy tároló helyiség.



Felszerelt konditerem, melyet a vételár tartalmaz. A többi bútor megegyezés tárgyát képezi.



A kert minden oldalról kerítéssel bekerítve, gondozott, 20 db gyümölcsfával és örökzöld bokrokkal beültetett.



A kertben kiépített locsolórendszer található.



Az épület 38-as porotherm téglából épült, kívül nemes vakolattal. Kétrétegű nyílászárók redőnnyel felszerelve.



Napelem a tetőzeten (amely jól benapozott) nagy mennyiségben elhelyezhető.



Lokáció: A közösségi közlekedéssel is jól megközelíthető, buszmegálló az épülettől 15 méternyire, villamosmegálló pedig kb. 200 méterre található. Közelben van a GOBUDA nevű bevásárlóközpont. Az épület közelében óvodák, iskolák, középiskolák, golf pályák és teniszpályák helyezkendek el.



Azonnal beköltözhető.



Az alaprajz és az adatok tájékoztató jellegűek.



English:



For sale a 700 sqm house on 1511 sqm plot in Táborhegy!



For institutions, recreation companies, health centres, large families!



The current useful floor area of the building is about 700 sqm. Additional 100 sqm of floor space can be added per floor.



The house has four floors with spacious rooms. The levels are connected by an internal staircase. Technically, the internal elevator can be constructed.



On the ground floor there is a 40 sqm (10m x 4m, 1.60 deep) indoor swimming pool accessible from the living room.



There are three large bedrooms upstairs with terraces and sumptuous panoramic views, study, living room, dining room, kitchen, terrace on the ground floor.



The building has 5 bathrooms and toilets on each floor.



In 2021 a Bosch condensing boiler was installed (with remote wifi control), it provides heating for the whole building (radiators and underfloor heating, heating of the pool water and hot water supply).



At street level there is a heated garage with parking for 6 cars, which can be extended on request.



At garage level there are two separate rooms with street access, windows and bathrooms, which can be used as separate APARTMENTS or as retail space or offices.



Flat in flat system with separate entrance.



Can be converted into a condominium with little investment.



The building is equipped with air conditioning and alarm system.



Built-in sauna.



Large walk-in closet or storage room with window.



Equipped gym included in the purchase price. Other furniture is subject to agreement.



The garden is fenced on all sides, well maintained, planted with 20 fruit trees and evergreen shrubs.



The garden has an irrigation system.



The building is built of 38 mm porotherm brick, with a noble plaster exterior. Double glazing with shutters.



Solar panels on the roof (which is well wetted) can be installed in large quantities.



Location: It is also easily accessible by public transport, a bus stop 15 metres from the building and a tram stop about 200 metres away, nearby is the GOBUDA shopping centre. The building is close to kindergartens, schools, secondary schools, golf courses and tennis courts.



It is ready for immediate occupancy.



Floor plan and details are for information only.



 




Családi ház részletei

Ár: 549 000 000 Ft
Méret: 700 négyzetméter
Azonosító: 11300958
Irodai azonosító: 360651036-1355
Telek: 1511 négyzetméter
Ingatlan állapota:
Jelleg: családi ház
Építőanyag: Tégla
Fűtés jellege: Cirkó
Komfort fokozat: Luxus komfort
Kor: 21-50 éves
Elhelyezkedés: Panorámás
Egész szobák: 7

Egyéb jellemzők

  • Csatorna
  • Garázs
  • Kábel TV
  • Padlás
  • Pince
  • Terasz

Így keressen családi házat négy egyszerű lépésben. Csupán 2 perc, kötelezettségek nélkül!

Szűkítse a családi házak
listáját
Válassza ki a megfelelő
családi házat
Írjon a hirdetőnek
Várjon a visszahívásra