Eladó családi ház Budapest III. ker 398 000 000 Ft

Leírás

Eladó panorámás, luxus passzívház Aranyhegyen – III. kerület, Jutas utca

Budapest egyik legkeresettebb, csendes és zöldövezeti részén, Aranyhegyen eladásra kínálunk egy háromszintes, 370 m²-es, 6 szobás, passzívház minősítésű luxus családi házat, 1201 m²-es, gondozott, panorámás telken.

A ház 2013-ban épült, modern technológiával, kimagasló energiahatékonysággal és intelligens Berker vezérlőrendszerrel.
A rendkívül alacsony fenntartási költség (a teljes havi rezsi kb. 50 000 Ft) a korszerű gépészetnek és megújuló energiát hasznosító rendszereknek köszönhető.
A ház keleti–délkeleti–délnyugati fekvésű, így egész nap világos, napfényes, a Duna és a természetvédelmi terület irányába örökpanorámával.

Főbb adatok

Lakóterület: 370 m²

Telek területe: 1201 m²

Szintek száma: 3

Szobák száma: 6

Fürdőszobák: 4

Építés éve: 2013

Tájolás: Kelet–Délkelet–Délnyugat

Vételár: 398.000.000 Ft

Különlegességek és extrák

Passzívház minősítés – rendkívül alacsony rezsi

Berker intelligens vezérlőrendszer

Napelemrendszer (oda-vissza mérő villanyóra, éves elszámolás)

Napkollektor a melegvíz ellátáshoz

Bio pellet kazán – környezetbarát kiegészítő fűtés

Kandalló

Internorm passzívház nyílászárók

Automata Hella redőnyök és motoros, szélérzékelős napellenzők (Maléth)

ExTherm teraszfűtés

HikVision 9 kamerás biztonsági rendszer és riasztó

SistemAir központi porszívó

PlugIt hővisszanyerős szellőztető rendszer

Elrendezés
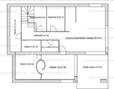
Utcaszint (középső szint)

Kétállásos garázs fűtött behajtóval

Tároló és előtér

2 szoba

Zuhanyzós fürdőszoba és külön WC pisoárral

Nappali

Konyha étkezővel

Nagy, panorámás terasz

Emelet

Nappali

3 hálószoba

2 gardrób

2 fürdőszoba (egy kádas, egy zuhanyzós)

Hatalmas terasz és két tetőkert
(Az emeleti szint akár külön bejáratú, önálló lakásként is kialakítható.)

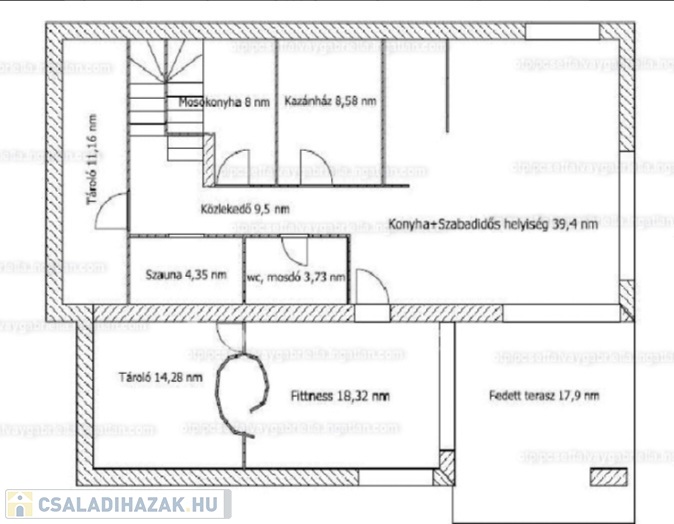
Kertszint (alsó szint)

Amerikai konyhás nappali

Borospince

Mosókonyha, gépház, tárolók

1 szoba (jelenleg fitnesz)

Nagy terasz közvetlen kertkapcsolattal

Nyári konyha, grill és kemence sarok

Infravit infraszauna

Kert és kültéri rész

Az 1201 m²-es parkosított kert minden igényt kielégít:

10×4 méteres, ellenáramoltatós, feszített víztükrű medence lenyűgöző panorámával

Automata öntözőrendszer

Épített nyári konyha, grill- és kemence sarok

Szőlő, füge, málna, szeder, birs és emelt ágyásos veteményes

Örökzöldek és dísznövények, gondosan kialakított, zöld oázis jellegű kert

Fekvés és környezet

Az ingatlan hegygerincen, csendes utcában, a Jutas utcában helyezkedik el, teljes intimitást és zavartalan panorámát biztosítva.
A ház keleti–délkeleti–délnyugati fekvésű, így egész nap napfényes, ideális tájolású.
A környék biztonságos, családi házas, jó közlekedéssel és infrastruktúrával, közel iskolákhoz, óvodákhoz, sportlétesítményekhez és bevásárlási lehetőségekhez.

Vételár: 398.000.000 Ft

Ez a lenyűgöző panorámás, energiahatékony, passzívház minősítésű luxusotthon ideális választás azoknak, akik a legmagasabb műszaki színvonalat, kényelmet, nyugalmat és fenntarthatóságot keresik Budapest egyik legszebb pontján, Aranyhegyen.

Megtekintés előzetes egyeztetés alapján lehetséges.

Luxury Passive House for Sale in Aranyhegy – District III, Jutas Street

Located in one of Budapest’s most desirable and peaceful green areas, Aranyhegy, this exceptional three-storey, 370 m² luxury passive house with 6 rooms and a 1,201 m² landscaped panoramic plot is now available for sale.

Built in 2013, this high-end property combines cutting-edge technology, energy efficiency, and modern comfort with timeless elegance.
Equipped with a Berker intelligent home control system, this smart house offers exceptionally low utility costs — the total monthly expenses are around 50,000 HUF thanks to the advanced mechanical systems and renewable energy solutions.

The house has an east–southeast–southwest orientation, ensuring abundant natural light throughout the day and unobstructed panoramic views of the Danube River and the protected natural area nearby.

Main Details

Living area: 370 m²

Plot size: 1,201 m²

Levels: 3

Rooms: 6

Bathrooms: 4

Year built: 2013

Orientation: East–Southeast–Southwest

Asking price: 398,000,000 HUF

Key Features

Certified Passive House – extremely low utility costs

Berker smart home control system

Solar panels (bidirectional metering with annual settlement)

Solar collectors for hot water supply

Bio-pellet heating system as auxiliary heating

Fireplace integrated into the heating system

Internorm passive-certified windows and doors

Automatic Hella shutters and motorized wind-sensor awnings (Maléth)

ExTherm terrace heating

HikVision 9-camera security system with alarm

SistemAir central vacuum system

PlugIt heat recovery ventilation system

Layout
Street Level (Middle Floor)

Double garage with heated driveway

Storage room and entrance hall

Two bedrooms

Bathroom with shower and separate WC with urinal

Spacious living room

Fully equipped kitchen with dining area

Large panoramic terrace

Upper Floor

Living area

Three bedrooms

Two walk-in wardrobes

Two bathrooms (one with bathtub, one with shower)

Huge terrace and two rooftop gardens
(The upper level can easily be converted into a separate, self-contained apartment with its own entrance.)

Garden Level (Lower Floor)

Open-plan living room with American-style kitchen

Wine cellar

Utility rooms (boiler room, laundry, storage)

One additional room (currently used as a fitness area)

Large terrace with direct garden access

Outdoor kitchen with grill and wood-fired oven

Infravit infrared sauna

Garden and Outdoor Area

The beautifully landscaped 1,201 m² garden offers a true oasis of comfort and relaxation:

10×4 m heated infinity pool with counter-current system and stunning panoramic views

Automatic irrigation system

Built-in summer kitchen, grill and oven area

Lush vegetation with grapevines, fig, raspberry, blackberry, quince, and raised vegetable beds

Mature evergreens and decorative trees, creating a peaceful private retreat

Location and Surroundings

The property is located on Jutas Street, on a quiet hilltop plot ensuring complete privacy and breathtaking views.
Its east–southeast–southwest orientation makes it naturally bright all day long.
The neighborhood is peaceful, family-friendly, and well-connected — close to schools, kindergartens, sports facilities, and shopping options.

Asking Price: 398,000,000 HUF

This exceptional, energy-efficient, panoramic luxury passive house is the perfect choice for those seeking the highest level of comfort, smart technology, privacy, and sustainability in one of Budapest’s most prestigious residential areas — Aranyhegy, District III.

Viewings are available by appointment.


Családi ház részletei

Ár: 398 000 000 Ft
Méret: 370 négyzetméter
Azonosító: 11577518
Cím: Jutas utca
Telek: 1201 négyzetméter
Ingatlan állapota: Kitűnő
Jelleg: családi ház
Építőanyag: Kérdezzen rá a hirdetőtől »
Komfort fokozat: Luxus komfort
Egész szobák: 6

Egyéb jellemzők

  • Csatorna
  • Garázs
  • Kábel TV
  • Melléképület
  • Terasz

Térkép


Így keressen családi házat négy egyszerű lépésben. Csupán 2 perc, kötelezettségek nélkül!

Szűkítse a családi házak
listáját
Válassza ki a megfelelő
családi házat
Írjon a hirdetőnek
Várjon a visszahívásra