Eladó családi ház Budapest III. ker 294 900 000 Ft

Leírás


Megvételre kínálunk a 3. kerület egyik legszebb részén, az Ürömhegyen, egy minimál stílusú, ÖRÖKPANORÁMÁS, dupla garázsos, HÓSZIVATTYÚS, teraszos, erkélyes, 195 nm-es, 5 szobás, dupla komfortos luxus ikerházat. Az ingatlan egy villaparkban épül, ennek megfelelő műszaki tartalommal és kivitelezéssel.

 

AZ ÖRÖKPANORÁMÁS TERASZ ÉS AZ ERKÉLY EGYÜTTES MÉRETE 38 nm.

 

Minőségi alapanyagokból, igényes kivitelezés jellemzi a projektet, ahol a biztonság és a kényelem mellett az energiatakarékosság volt a fő szempont. A ház átgondolt tervezésének köszönhetően kényelmes, otthonos, szellős, ugyanakkor bővelkedik a reprezentatív, elegáns elemekkel. Az ingatlan klímájáról, valamint a használati melegvíz ellátásáról egy modern, energia takarékos, innovatív levegő-víz hőszivattyú gondoskodik H tarifás üzemeltetéssel.

 

A hőmérséklet helyiségenként állítható.

 

A hőszivattyú télen a padlón és a mennyezeten fűt, míg a nyári hónapokban a mennyezeten hűt, így egész évben biztosított a kellemes hőmérséklet. Az ingatlan külső szigetelése Dryvit rendszerrel, valamint prémium három rétegű nyílászáró rendszerrel lett kialakítva. Ennek köszönhetően az ingatlan méretéhez képest a rezsi költségek minimalizálódnak.

 

Természetesen alumínium redőnyök, elektromos autó töltő a garázsban, exkluzív vakolat rendszer, biztonsági ajtó és egyéb extrák kerülnek beépítésre ebbe a nem mindennapi ingatlanba.

 

Az összes közmű külön mérőórákról üzemel.

 

Ennél a beruházásnál most lehetősége van kompromisszumok nélkül egy olyan lakásba költözni, ahol Ön kiválaszthatja a hideg és meleg burkolatokat, szanitereket, valamint az egyéb kiegészítőket a családja legnagyobb megelégedésére, ez által személyre szabva álmai otthonát.

A kulcsra kész ár tartalmazza az elektromos redőnyöket, három rétegű nyílászárókat, riasztó előkészítést, kaputelefon és motoros kapu kiépítést, valamint napelem előkészítést. A gépjárművekkel az ingatlanhoz tartozó garázsban lehet biztonságosan parkolni.  

 

Az ingatlanhoz 517 nm-es privát telek tartozik.

 

A projekt megközelítőleg 3600 nm-es telken helyezkedik el, ahol 4 ikerház, vagyis 8 lakás kerül megépítésre.

A lakások ára az alapterülettől és a telek nagyságától függően változnak: 219 m Ft - 295 MFt

 

Igénybe vehető lehetséges kedvezmények:

CSOK

5% Áfa visszatérítés

Babaváró hitel

Illeték kedvezmény vagy mentesség.





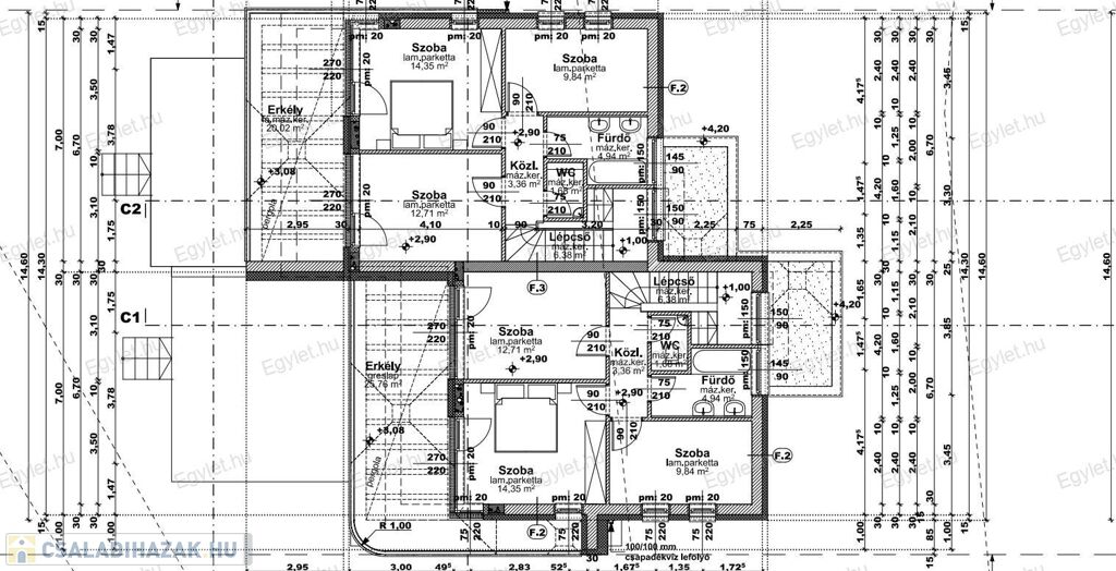
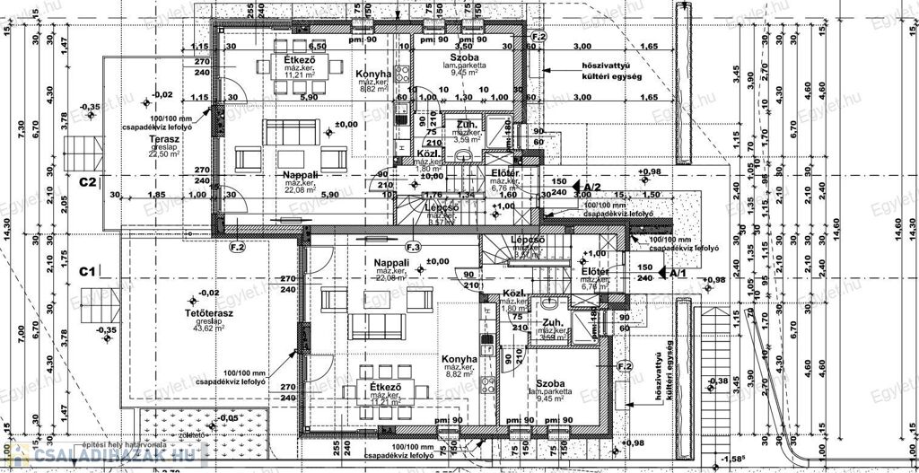
Helyiség lista a földszinten:

- Előtér

- Közlekedő

- Szoba

- Fürdőszoba

- Amerikai konyha,

- Étkező

- Nappali 

- Terasz



Helyiség lista az emeleten:

- Közlekedő

- Lépcsőház

- Fürdőszoba

- WC

- Három szoba

- Gardrób

- Erkély

 

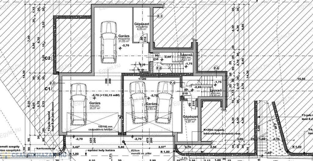
Helyiség lista a garázs szinten:

- Lépcsőház

- Gépészet

- Garázs

 

 

Az ingatlan biztonságos, nyugodt, csendes, kertes házas övezetében, a 3. kerület egyik legszebb részén található, az Ürömhegy területén. A környék fejlett infrastruktúrájának köszönhetően bővelkedik a szociális intézményekben, bölcsőde, óvoda, általános iskola, orvosi intézmények, bevásárlási lehetőségek, találhatóak a közelben.



Közlekedése kiváló, busszal Budapest központja vagy vonatokkal a Nyugati pályaudvar könnyedén megközelíthetőek.

 

Hitel, CSOK igénylésben díjmentes ügyintézéssel állunk rendelkezésére! Nálunk kiválaszthatja az Ön számára legkedvezőbb ajánlatot.



Várom megtisztelő érdeklődésüket.

 

 

Családi ház részletei

Ár: 294 900 000 Ft
Méret: 195 négyzetméter
Azonosító: 11594223
Irodai azonosító: 209002133
Telek: 517 négyzetméter
Ingatlan állapota: Kitűnő
Jelleg: ikerház
Építőanyag: Tégla
Komfort fokozat: Dupla komfort
Kor: Új építésű
Egész szobák: 5

Így keressen családi házat négy egyszerű lépésben. Csupán 2 perc, kötelezettségek nélkül!

Szűkítse a családi házak
listáját
Válassza ki a megfelelő
családi házat
Írjon a hirdetőnek
Várjon a visszahívásra