Eladó családi ház Budapest III. ker 275 000 000 Ft

Leírás

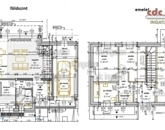
III. kerületben, Ürömhegyen kínálunk megvételre egy kétszintes, nettó 140 m2-es, nappali + 4 hálószobás, panorámás, új építésű ikerház felet, 400 m2-es kertrésszel.t. Az ingatlanhoz tartozik egy 15,15 m2-es garázs és egy 4,24 m2-es tároló. A ház átadása: 2026 szeptember.

275000000 Ft
: HELIK ÉVA +36 70 330 69 75
email: eva.helik@cdci.hu, http://cdci.hu/a/eva.helik/
Irodánk teljes körű szolgáltatást nyújt ingatlanok adás-vételéhez.
Kedvezményes Ügyvédi költséggel, Energetikai tanúsítvány készítéssel,
Ingyenes hitelügyintézési tanácsadással várjuk Kedves Ügyfeleinket.

Referencia szám: 436694

Családi ház részletei

Ár: 275 000 000 Ft
Méret: 140 négyzetméter
Azonosító: 11592652
Irodai azonosító: 436694-5123451
Cím: Budapest 3. ker.i 140 nm-es ház eladó
Telek: 500 négyzetméter
Ingatlan állapota: Épülő
Jelleg: ikerház
Építőanyag: Tégla
Fűtés jellege: Egyéb
Kor: Új építésű
Szintek száma: 1 szint
Egész szobák: 5

Térkép


Így keressen családi házat négy egyszerű lépésben. Csupán 2 perc, kötelezettségek nélkül!

Szűkítse a családi házak
listáját
Válassza ki a megfelelő
családi házat
Írjon a hirdetőnek
Várjon a visszahívásra