Eladó családi ház Budapest III. ker 251 900 000 Ft

Leírás

Álmai otthona várja Aranyhegyen! – Új építésű, modern ikerház fél eladó

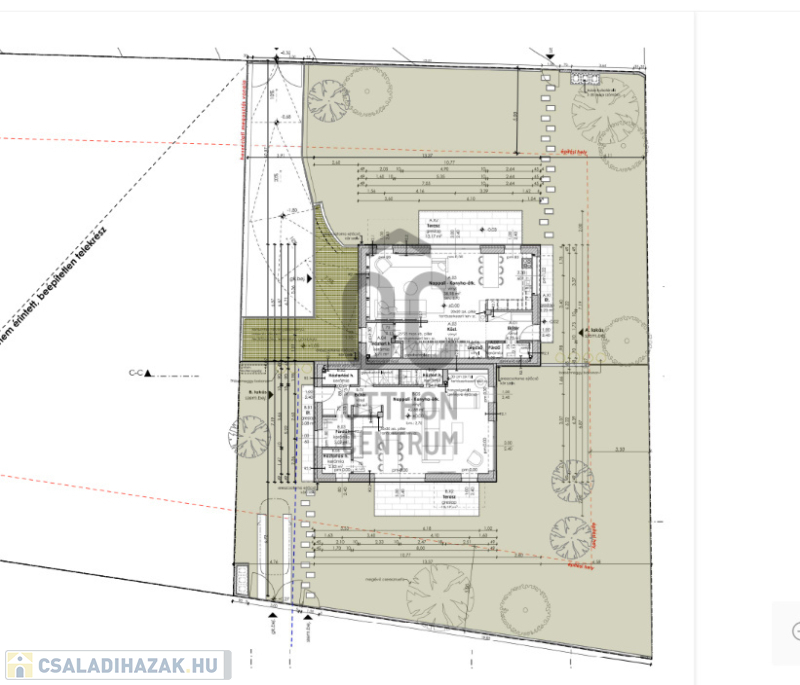
Tapasztalt fejlesztő kínál eladásra Aranyhegyen egy új építésű, 4 szobás (nappali + 3 hálószoba) ikerház felet magas műszaki tartalommal, 54 nm nagyságú kétállásos mélygarázzsal és 415 nm-es, sík, kizárólagos használatú, teljesen szeparált telekrésszel. Az egyedi adottságoknak köszönhetően a kínált ingatlan olyan, mintha önálló családi házat venne. Az ingatlan Aranyhegy közepén, egy már teljesen kiépült, szinte kizárólag új építésű házakkal körülvett lakókörnyezetben helyezkedik el, így ez az utolsó beépítetlen telek a környéken!

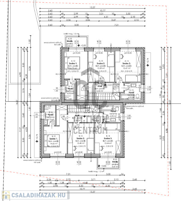
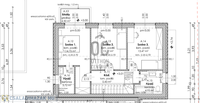
A lakótér mérete nettó 128,5m2, amely tökéletes elosztást kínál. A földszinten tágas nappali-konyha-étkező, előtér, fürdő és egy háztartási helyiség, míg az emeleten 3 hálószoba és 3 fürdőszoba kap helyet a mellékelt alaprajzok szerinti ideális elrendezésben. A nappaliból leválasztva akár egy 5. szoba is kialakítható eseti igény szerint.

Ezen kívül az eladásra kínált ingatlan részét képezi még egy 14nm-es kertre néző terasz, illetve egy 4,5nm-es emeleti erkély panorámás kilátással, valamint a 2db kényelmes méretű gépkocsi-beálló mellett egy gépészeti helyiség és egy 5nm-es tároló a garázsszinten.

Az ikerház másik felét egy hasonló elrendezésű lakóingatlan képezi valamivel kisebb telekrésszel, mélygarázsi szint nélkül, felszíni parkoló beállókkal. Ennek kínálati ára: 222,5 millió Ft.

Energiatakarékos, környezettudatos kialakítás:
Az ingatlan alapesetben BB energetikai besorolással rendelkezik, azonban napelemek telepítésével AA++ kategóriára fejleszthető – garantált energiatakarékosság és fenntarthatóság!

Kiemelkedő műszaki tartalom:
Monolit vasbeton födém, kerámia falazat;
Hőtechnikailag méretezett grafitos hőszigetelés;
Háromrétegű nyílászárók;
Levegő-víz hőszívattyús, energiatakarékos hűtés-fűtési rendszer – mennyezet hűtés-fűtés, padlófűtés;
Motoros redőnyök szúnyoghálóval;
Magas minőségű hideg- és melegburkolatok, szaniterek, csaptelepek és belső nyílászárók,
motoros kapu
videó kaputelefon
durva tereprendezés

Az ár kulcsrakész állapotra vonatkozik.

Szolgáltatások a közelben: élelmiszerbolt, pékség, játszótér, kávézó, kutyafuttató
Tömegközlekedés: A 219-es és 160-as buszjáratok megállói 5-10 perc sétatávolságon belül

Átadás várható ideje: 2026 II. félév

Teljes körű ügyintézéssel várom a hívását a hét minden napján!

Családi ház részletei

Ár: 251 900 000 Ft
Méret: 139 négyzetméter
Azonosító: 11580364
Telek: 415 négyzetméter
Ingatlan állapota: Kitűnő
Jelleg: ikerház
Építőanyag: Kérdezzen rá a hirdetőtől »
Egész szobák: 4

Egyéb jellemzők

  • Csatorna
  • Garázs
  • Kábel TV
  • Melléképület
  • Parketta
  • Pince
  • Terasz

Így keressen családi házat négy egyszerű lépésben. Csupán 2 perc, kötelezettségek nélkül!

Szűkítse a családi házak
listáját
Válassza ki a megfelelő
családi házat
Írjon a hirdetőnek
Várjon a visszahívásra