Eladó családi ház Budapest III. ker 189 000 000 Ft

Leírás

Panorámás családi ház Ürömhegyen – azonnal költözhető!



Eladó a III. kerület egyik legkedveltebb, zöldövezeti részén egy kiváló adottságokkal rendelkező, panorámás családi ház nagy telken. Az ingatlan zsákutcában helyezkedik el, új építésű ingatlanok környezetében. Csendes, nyugodt környezet, könnyen megközelíthető lokáció. A délnyugati tájolásnak és a nagy ablakoknak köszönhetően a terek, a szobák világosak. Az ingatlan egyik különlegessége a parkosított kert gyümölcsfákkal, konyhakerttel, dísznövényekkel, virágokkal. Pihenésre, feltöltődésre, kertészkedésre kiválóan alkalmas. A telek hátsó részében egy kisház és egy üvegház is található.



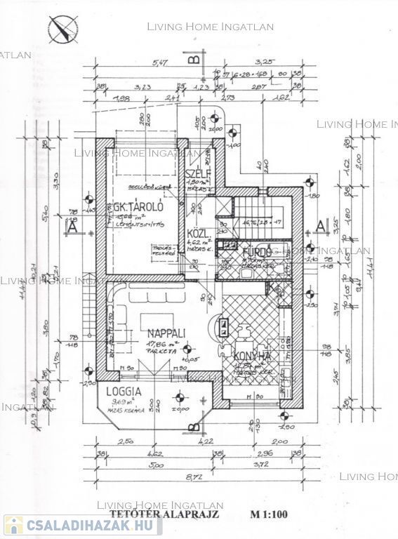
A ház beosztása:



Bejárati szint: Ez az utcafronti szint, itt van egy virágos előkert, gépkocsi beálló, garázs. A garázsból ajtó vezet az előszobába.



-egylégterű, de mégis jól határolt nappali, étkező, konyha erkélykapcsolattal,



-kamra,



-fürdő, közlekedő, szélfogó, lépcsőház.



Földszint: Ez a kert szintje. Itt található 3 szoba, 1 fürdőszoba tusolósarokkal, wc, mosdó, 1 mosókonyha.



További extrák:    



-elektromos kapu,



-kaputelefon,



-öntözőrendszer,



-fúrt kút,



-klíma,



-kandalló.



Az ingatlan tökéletes választás azoknak, akik panorámás, 2000-ben épült, csendes, mégis jól megközelíthető otthont keresnek Budán. A ház állapota lehetővé teszi, hogy akár azonnal birtokba vehető legyen, ugyanakkor igény szerint tovább is fejleszthető, bővíthető is.



Az ingatlan jogilag tiszta, az építési tervdokumentáció is a rendelkezésre áll.



Közlekedés: 8-10 perc séta a buszmegálló (218,219,840), HÉV 8 perc autóval, Árpád híd kb. 20 perc. Aranyvölgy vasútállomás a közelben; fél óránkénti összeköttetés Újpest metrómegállóval.



Ha a hirdetés felkeltette az érdeklődését, kérem, keressen, akár hétvégén is!



Az alaprajz és az adatok tájékoztató jellegűek.



English: 



Panoramic family home in Ürömhegy – ready to move in!



For sale a panoramic family home with excellent features, built in 2000, on a large lot in one of the most sought-after, green areas of district III. The property is located on a dead-end, surrounded by newly built homes. A quiet, peaceful environment with easy access. Thanks to the southwest orientation and large windows, the spaces and rooms are bright. One of the property’s highlights is the landscaped garden featuring fruit trees, a vegetable garden, ornamental plants, and flowers. It is ideal for relaxation, recharging, and gardening. There is also a small cottage and a greenhouse at the rear of the property.



Layout of the house:



Street level: This is the street-facing level, featuring a flower-filled front yard, a parking area, and a garage. There is a door leading from the garage to the entryway.



-an open-plan yet well-defined living room, dining area, and kitchen with access to the balcony,



-pantry,



-bathroom, hallway, vestibule, and staircase.



Ground Floor: This is the garden level. There are 3 bedrooms, 1 bathroom with a shower, a toilet, a sink, and 1 laundry room.



Additional Features:



-electric gate,



-intercom,



-irrigation system,



-drilled well,



-air conditioning,



-fireplace.



The property is the perfect choice for those seeking a home in Buda with panoramic views, a quiet setting, yet excellent accessibility. The house is in a condition that allows for immediate occupancy, while also offering the potential for further development and expansion as needed.



The property has a clear title, and the building plans are available.



Transportation: 8–10-minute walk to the bus stop (218, 219, 840), 8 minutes by car to the HÉV, and approx. 20 minutes to Árpád Bridge. Aranyvölgy train station is nearby; there are trains every half hour to the Újpest metro station.



If this listing has piqued your interest, please contact me—even on weekends!



The floor plan and details are for informational purposes only.




Családi ház részletei

Ár: 189 000 000 Ft
Méret: 128 négyzetméter
Azonosító: 11613225
Irodai azonosító: 360651121-406
Telek: 1102 négyzetméter
Ingatlan állapota:
Jelleg: családi ház
Építőanyag: Tégla
Fűtés jellege: Cirkó
Komfort fokozat: Dupla komfort
Kor: 21-50 éves
Elhelyezkedés: Panorámás
Egész szobák: 4

Egyéb jellemzők

  • Csatorna
  • Garázs
  • Kábel TV
  • Padlás
  • Pince
  • Terasz

Így keressen családi házat négy egyszerű lépésben. Csupán 2 perc, kötelezettségek nélkül!

Szűkítse a családi házak
listáját
Válassza ki a megfelelő
családi házat
Írjon a hirdetőnek
Várjon a visszahívásra