Eladó családi ház Budapest II. ker 2 500 000 Euro

Leírás

P21765

II. KLASSZIKUS RÓZSADOMBON BELTÉRI ÚSZÓMEDENCÉS, ÁTÉPÍTETT, MODERNIZÁLT, LIFTES VILLA ÚJRA ELADÓ!

II. Rózsadombon 2008-ban épült, 2022-ben felújított, átépített, modernizált, minden mai luxussal ellátott 600 m2-es, beltéri úszómedencés, liftes, klasszikus stílusú villa 956 m2-es, ápolt kertben eladó.

Az ingatlan jellemzői:
- presztízs értékű hely (diplomáciai övezet)
- csendes mellékutca, de közel a buszos főútvonalhoz.
- 600 m2 beépített összterület, 35 m2-nyi terasz,
- 3 szinten 3 generáció együttélésére is alkalmas kialakítás,
- 2 vagy 3 generáció együttélésére vagy iroda-lakás kombinációra, nagykövetség és rezidencia kialakítására is alkalmas beosztás.
- hatalmas, kandallós nappali, szeparált konyha étkező, 4 háló + 120 m2-es tetőtéri apartman (nappali, háló, konyha, fürdő),
- 5 fürdőszoba,
- 2008-ban épült, 2017-ben külső-belső esztétikai felújítás, új konyha, tetőtér burkolása 2022- ben teljes felújítás átépítés.
- hőszigetelt falak,
- 2 rétegű fa nyílászárók szúnyoghálókkal,
- blue labrador gránit és tölgy parketta burkolatok,
- feszített víztükrű, ellenáramos úszómedence,
- szauna,
- dupla garázs + kerti autóbeállók,
- teljesen sík, de fűthető kocsifelhajtó,
- kamerás kültéri megfigyelőrendszer.
- örök értékű befektetés.

2022-ben történt felújítás:
- gázfűtés mellett hőszivattyús hűtés-fűtés kiépítése,
- napelemek felszerelése,
- okos ház vezérlés telepítése,
- lift beépítése,
- válaszfalazás, helyiségek újraosztása,
- teljes körű villanyszerelési munkálatok (vezetékek, kapcsolók, lámpatestek cseréje),
- tetőtéri lakás kialakítása (nappali, háló, fürdő, konyha, új terasz)

Befektetőknek is ajánljuk!
Ha megveszi könnyen bérbe tudja adni családi-vagy nagyköveti rezidencia vagy elegáns cégközpont céljára.

Kivételes lehetőség tökéletes elhelyezkedéssel a klasszikus Rózsadombon. Ne hagyja ki, jöjjön és nézze meg mielőbb!

*******************************************************************
English description:
II. CLASSIC RÓZSADOMB VILLA WITH INDOOR SWIMMING POOL, REBUILT, MODERNIZED, WITH ELEVATOR
NOW BACK ON THE MARKET! (ID: P21232)

Located in District II, Rózsadomb, this 600 sqm classic-style villa with an indoor swimming pool and elevator, built in 2008 and fully renovated, rebuilt, and modernized in 2022, equipped with all contemporary luxury features, is for sale on a well-maintained 956 sqm landscaped plot.
Property Features:
• prestigious location (diplomatic quarter)
• quiet side street, yet close to a main bus route
• 600 sqm total built area, 35 sqm of terraces
• layout suitable for multi-generational living across 3 levels
• suitable for 2–3 generations, office–residence combination, embassy or ambassadorial residence
• spacious living room with fireplace, separate kitchen with dining area, 4 bedrooms + 120 sqm attic apartment (living room, bedroom, kitchen, bathroom)
• 5 bathrooms
• built in 2008; interior and exterior aesthetic renovation in 2017, new kitchen; attic finishing; complete renovation and reconstruction in 2022
• thermally insulated walls
• double-glazed wooden windows with mosquito screens
• blue labrador granite and oak parquet flooring
• tension-surface counter-current indoor swimming pool
• sauna
• double garage + additional outdoor parking spaces
• completely level yet heated driveway
• outdoor camera surveillance system
• timeless investment value
Renovation completed in 2022:
• installation of heat pump cooling and heating system in addition to gas heating
• installation of solar panels
• smart home control system
• elevator installation
• partition wall restructuring and redistribution of rooms
• complete electrical system upgrade (wiring, switches, lighting fixtures replaced)
• creation of attic apartment (living room, bedroom, bathroom, kitchen, new terrace)
Recommended for investors as well!
After purchase, the property can be easily rented out as a family residence, ambassadorial residence, or an elegant corporate headquarters.
An exceptional opportunity with a perfect location in the classic Rózsadomb area. Do not miss it — come and view it as soon as possible!
**********************************************
Описание на русском языке
II. КЛАССИЧЕСКАЯ ВИЛЛА В РАЙОНЕ РОЖАДОМБ С КРЫТЫМ БАССЕЙНОМ, ПЕРЕСТРОЕННАЯ, МОДЕРНИЗИРОВАННАЯ, С ЛИФТОМ
СНОВА В ПРОДАЖЕ! (ID: P21232)
В районе II, Рожадомб, предлагается к продаже классическая вилла площадью 600 кв.м с крытым бассейном и лифтом, построенная в 2008 году и полностью отремонтированная, перестроенная и модернизированная в 2022 году, оснащённая всеми современными элементами роскоши, расположенная на ухоженном участке площадью 956 кв.м.
Характеристики недвижимости:
• престижное расположение (дипломатический квартал)
• тихая боковая улица, при этом рядом с основной автобусной магистралью
• общая застроенная площадь 600 кв.м, террасы площадью 35 кв.м
• планировка на 3 уровнях, подходящая для совместного проживания нескольких поколений
• подходит для проживания 2–3 поколений, комбинации офис–жильё, размещения посольства или резиденции посла
• просторная гостиная с камином, отдельная кухня со столовой, 4 спальни + мансардные апартаменты 120 кв.м (гостиная, спальня, кухня, ванная)
• 5 ванных комнат
• построена в 2008 г.; эстетическая внутренняя и внешняя реконструкция в 2017 г., новая кухня, отделка мансарды; полная реконструкция и модернизация в 2022 г.
• теплоизолированные стены
• деревянные окна с двойным остеклением и москитными сетками
• отделка из гранита Blue Labrador и дубового паркета
• крытый бассейн с противотоком и зеркальной поверхностью воды
• сауна
• двойной гараж + дополнительные парковочные места во дворе
• полностью ровный подъезд с системой подогрева
• наружная система видеонаблюдения
• инвестиция с неизменной ценностью
Реконструкция, выполненная в 2022 году:
• установка теплового насоса для отопления и охлаждения в дополнение к газовому отоплению
• установка солнечных панелей
• система управления «умный дом»
• установка лифта
• перепланировка внутренних перегородок и перераспределение помещений
• полная модернизация электросистемы (замена проводки, выключателей, светильников)
• создание мансардных апартаментов (гостиная, спальня, ванная, кухня, новая терраса)
Рекомендуется также для инвесторов!
После приобретения объект легко сдаётся в аренду как семейная резиденция, резиденция посла или элегантная штаб квартира компании.
Исключительная возможность с идеальным расположением в классическом районе Рожадомб. Не упустите шанс — приходите на просмотр как можно скорее!

* Kertszint 143,4 m2: uszoda(74,8 m2), dupla garázs(41 m2), lift (4,8 m2), szauna(2,75), zuhany(2,18), WC (1,64), kamra(4,2), háztartási helyiség(8,35), közlekedő(3,5), kertkapcsolat; belmagasság: 2.70 m
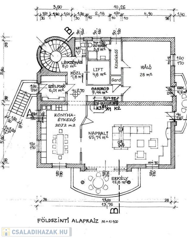
* Magasföldszint 144,5 + 17,6 m2: nappali (55,74m2), konyha-étkező (20,72), hálószoba (28 ), lift (4,8 m2), gardrób (9,44), zuhanyzó (3,9), szélfogó (6,21), közlekedő (7,8), lépcsőház (8), terasz (12,8), terasz (4,8); belmagasság: 2.80 m
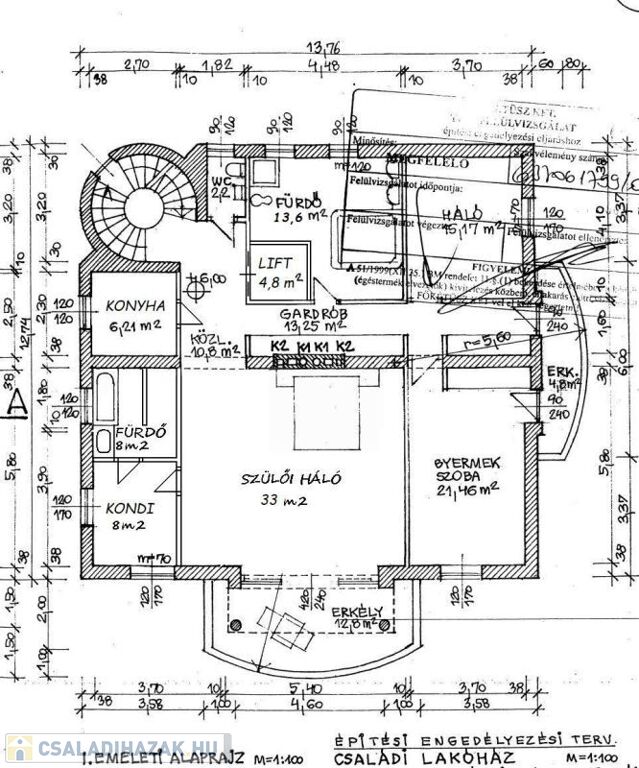
* Emelet 144,35 + 17,6 m2: 3 hálószoba (33 m2; 21,46 m2; 15,17m2), 2 fürdőszoba (13,6 m2; 8m2), konyha (6,21), gardrób (13,25), lift (4,8), külön WC (2,2), közlekedő (10,8) terasz (12,8), terasz (4,8), lépcsőház (8); belmagasság: 2.80 m
* Tetőtér 110 + 10 m2: nappali + 1 szobás apartman fürdővel, konyhával, terasszal

További képek, részletes leírás megtekintéséhez másolja be az alábbi hivatkozást böngészőjének címsorába: www.ingatlanonki.hu/21765

Családi ház részletei

Ár: 2 500 000 Euro
Méret: 623 négyzetméter
Azonosító: 11601541
Irodai azonosító: P21765
Cím: 1023 Budapest (Rózsadomb)
Telek: 956 négyzetméter
Ingatlan állapota: Felújított
Jelleg: családi ház
Építőanyag: Tégla
Fűtés jellege: Központi
Kor: 11-20 éves
Szintek száma: 3 szint
Egész szobák: 7

Egyéb jellemzők

  • Csatorna

Így keressen családi házat négy egyszerű lépésben. Csupán 2 perc, kötelezettségek nélkül!

Szűkítse a családi házak
listáját
Válassza ki a megfelelő
családi házat
Írjon a hirdetőnek
Várjon a visszahívásra