Eladó családi ház Budapest II. ker 120 000 000 Ft

Leírás

Önálló kivitelezési lehetőség!

A rugalmas építő rögtönzött akciója keretén belül lehetősége van társként (E napló szinten) beszállni a kivitelezésbe, oly módon, hogy az egyik lakást ő megtartaná!!!

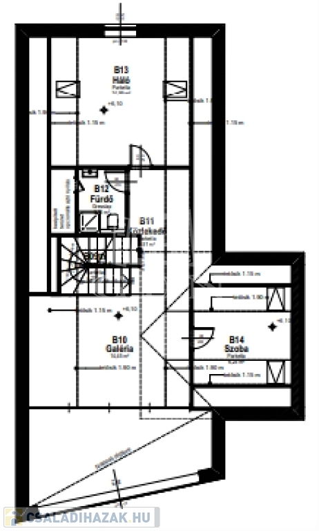
A tájvédelmi körzet szomszédságában elhelyezkedő luxus 311 nm-es lakóépület magában foglal két egymástól külön álló, azonban tetszés szerint egybe is nyitható 2 lakóegységet (melyek nettó alapterülete 158 m2 és 153 m2). A lakások a későbbiekben akár társas házként is funkcionálhatnak.

A lehetőségként kínált közös kivitelezés a közvetlen kertkapcsolattal rendelkező, 158 m2-es lakásra vonatkozik!

Az előrehaladott állapotú építkezés jelenleg 60 %-os készültségnél tart, amely bármikor megtekinthető, megismerve ezáltal a burkolásokat, illetve az átgondolt külső-belső kivitelezési munkálatok előkészítésének magas minőségét. A 20 éves tapasztalattal és számtalan referenciával rendelkező kivitelező a megegyezéstől számítva 4 hónapon belül vállalja a kulcsrakész átadást 60 M forint kivitelezési áron!

Az épület elhelyezkedése DNy-i tájolású, ily módon a hatalmas üvegfelületek páratlan optikai látványt és természetközeli élményt biztosítanak az exkluzív élettérnek!

A jövőbeni költséghatékony fenntarthatóság érdekében a fűtés levegő-hőszivattyús rendszerrel, illetve padló és mennyezet hűtés-fűtéssel kerül beépítésre.

Egyéb extrák:
- elektromos alumínium redőny,
- elektromos szekcionált Hörmann garázskapuk,
- riasztó rendszer kiépítés,
- hűtő-fűtő klíma,
- fürdőkben kiegészítő törölköző szárítók,
- fényezett egyedi beltéri nyílászárók,
- külső üvegkorlát,
- kiépített kaputelefon.

Fűtés:

- elsődleges: hőszivattyú, mennyezeti hűtéssel, illetve padlófűtéssel,

- másodlagos: hűtő-fűtő klíma

Bővebb műszaki tartalmat igény szerint küldök!

Családi ház részletei

Ár: 120 000 000 Ft
Méret: 158 négyzetméter
Azonosító: 11559800
Irodai azonosító: 386494
Cím: Pesthidegkút
Telek: 400 négyzetméter
Ingatlan állapota: Kitűnő
Jelleg: családi ház
Építőanyag: Tégla
Fűtés jellege: Geotermikus
Fűtés módja: Hőszivattyú
Komfort fokozat: Összkomfort
Kor: Új építésű
Szintek száma: 2 szint
Egész szobák: 8

Egyéb jellemzők

  • Csatorna
  • Garázs
  • Pince
  • Terasz

Térkép


Így keressen családi házat négy egyszerű lépésben. Csupán 2 perc, kötelezettségek nélkül!

Szűkítse a családi házak
listáját
Válassza ki a megfelelő
családi házat
Írjon a hirdetőnek
Várjon a visszahívásra