Eladó családi ház Budaörs 209 000 000 Ft

Leírás

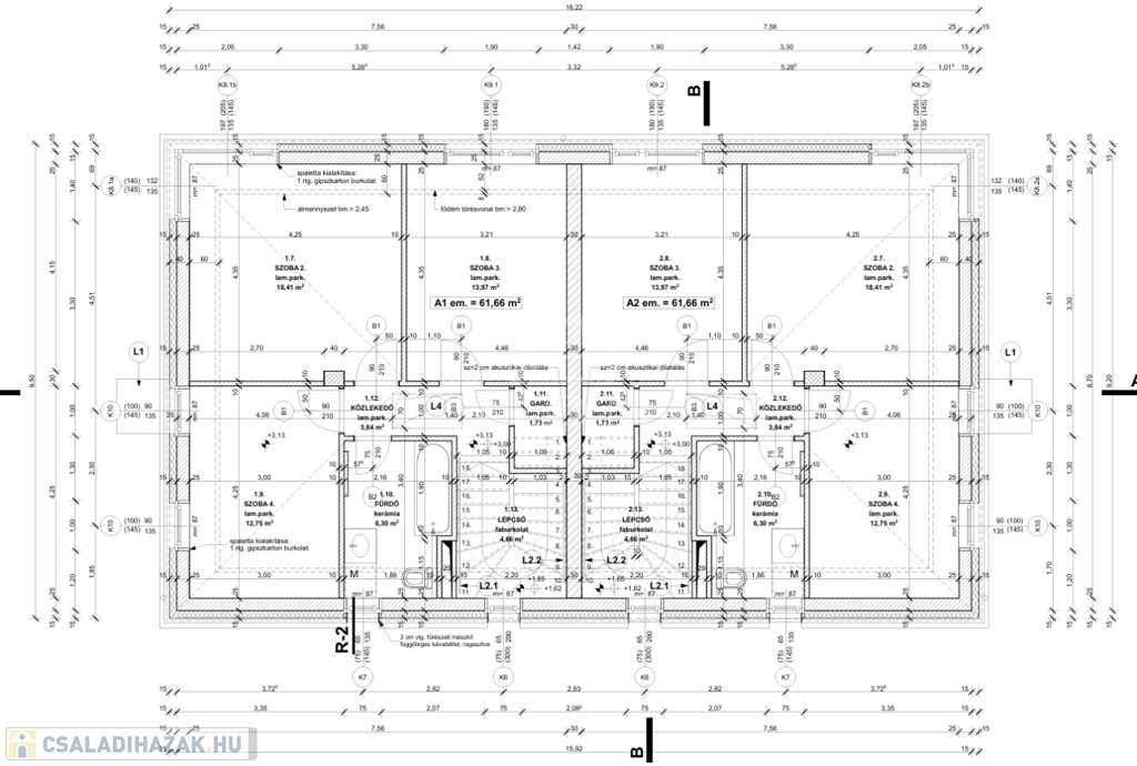
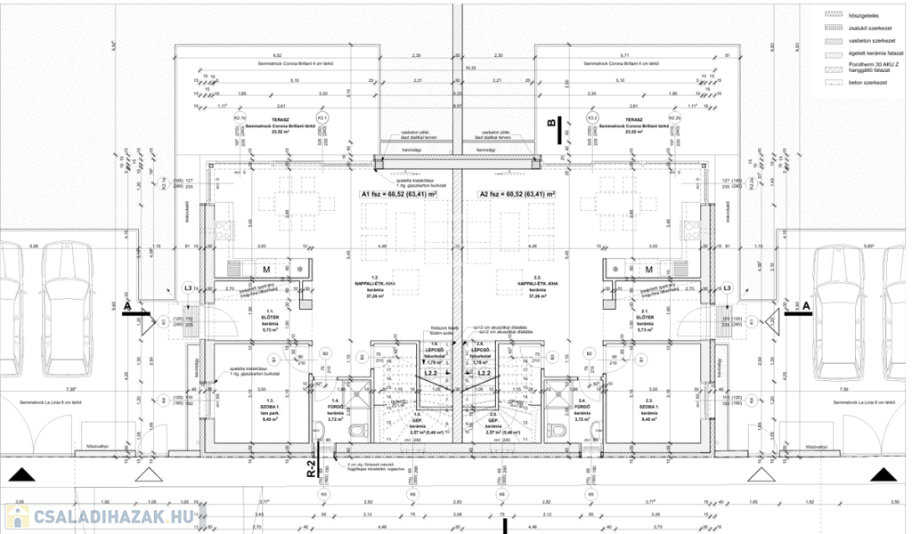
Eladó ikerház Budaörsön – csendes, mégis frekventált környezetben, kiváló ár-érték aránnyal

Budaörs egyik keresett, nyugodt, ugyanakkor kiváló infrastruktúrával rendelkező részén eladó egy magas műszaki tartalmú, prémium kivitelezésű ikerház, privát kerttel és gépkocsi-beállóval.

Az ingatlan tágas, világos terekkel rendelkezik, kialakítása a legújabb lakberendezési trendeket követi. A hatalmas üvegportáloknak köszönhetően a belső terek rendkívül világosak, közvetlen kapcsolatot biztosítva a terasszal és a kerttel.

Főbb jellemzők:

5 szoba

2 fürdőszoba

Terasz + saját kert

Autóbeálló

Prémium minőségű nyílászárók és belső ajtók

Biztonságos, kényelmes lépcső az emeletre

Az épületek között maximális hanggátlást biztosító falazat

Műszaki tartalom:

Hőszivattyús rendszer

Padlófűtés

Mennyezethűtés

Korszerű légcserélő (hő visszanyerős) rendszer

A felhasznált anyagok és a kivitelezés minősége a legmagasabb szintet képviseli, az ingatlan ideális választás családoknak vagy azoknak, akik kompromisszumok nélküli, modern otthont keresnek.

A hirdetésben néhány kép látványterv alapján látható.

Családi ház részletei

Ár: 209 000 000 Ft
Méret: 122 négyzetméter
Azonosító: 11593149
Irodai azonosító: 391748
Cím: Prémium otthon
Telek: 250 négyzetméter
Ingatlan állapota: Kitűnő
Jelleg: ikerház
Építőanyag: Tégla
Fűtés jellege: Geotermikus
Fűtés módja: Hőszivattyú
Komfort fokozat: Dupla komfort
Kor: Új építésű
Szintek száma: 1 szint
Egész szobák: 5

Egyéb jellemzők

  • Csatorna
  • Garázs
  • Pince
  • Terasz

Térkép


Így keressen családi házat négy egyszerű lépésben. Csupán 2 perc, kötelezettségek nélkül!

Szűkítse a családi házak
listáját
Válassza ki a megfelelő
családi házat
Írjon a hirdetőnek
Várjon a visszahívásra