Eladó családi ház Budaörs 169 900 000 Ft

Leírás

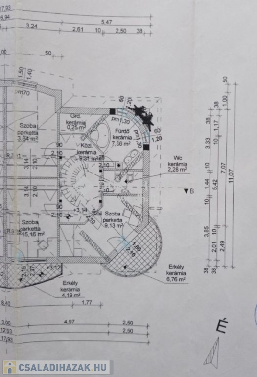
**Eladó egyedi tervezésű ikerház Budaörs népszerű részén!**

Budaörs egyik LEGNÉPSZERŰBB környékén, a Törökugrató lábánál, egy CSENDES mellékutcában. Ez a különleges, kívül - belül modern, 133 négyzetméteres ikerház ideális választás mindazok számára, akik CSENDES és BIZTONSÁGOS környéken keresnek otthont.
Az ingatlan elosztása kifejezetten előnyös, hiszen NAPPALI + 3 HÁLÓSZOBA került kialakításra, így a lakás kiválóan alkalmas nagyobb családok részére is. Az ingatlan praktikus elrendezése és a NAGYMÉRETŰ nappali biztosítja, hogy a családi hétköznapok zavartalanok legyenek, és bőven maradjon tér mindenki számára.

A környék FEJLETT infrastruktúrája biztosít minden szükséges szolgáltatást, ami kulcsfontosságú lehet a mindennapokban. A KÖZELI óvodák, iskolák és bevásárlási lehetőségek csak egy karnyújtásnyira találhatóak.

Keressen bizalommal és ismerje meg ezt a különleges otthont.
Dömény Kitti
+36302916129
Várom megkeresését!
Üdvözlettel:
Dömény Kitti
+3630 2916129

Referencia szám: HZ098697

Családi ház részletei

Ár: 169 900 000 Ft
Méret: 133 négyzetméter
Azonosító: 11506619
Irodai azonosító: HZ098697-4899730
Telek: 410 négyzetméter
Ingatlan állapota:
Jelleg: családi ház
Építőanyag: Tégla
Fűtés jellege: Cirkó
Fűtés módja: Gáz
Komfort fokozat: Összkomfort
Kor: 21-50 éves
Szintek száma: Földszintes
Egész szobák: 4

Térkép


Így keressen családi házat négy egyszerű lépésben. Csupán 2 perc, kötelezettségek nélkül!

Szűkítse a családi házak
listáját
Válassza ki a megfelelő
családi házat
Írjon a hirdetőnek
Várjon a visszahívásra