Eladó családi ház Budakeszi 112 000 000 Ft

Leírás

Budakeszin hegyvidéki részén, Makkosmárián eladó háromszintes, öt szobás teljes felújítás / átépítés alatt álló családi ház 1500 nm-s kertben.

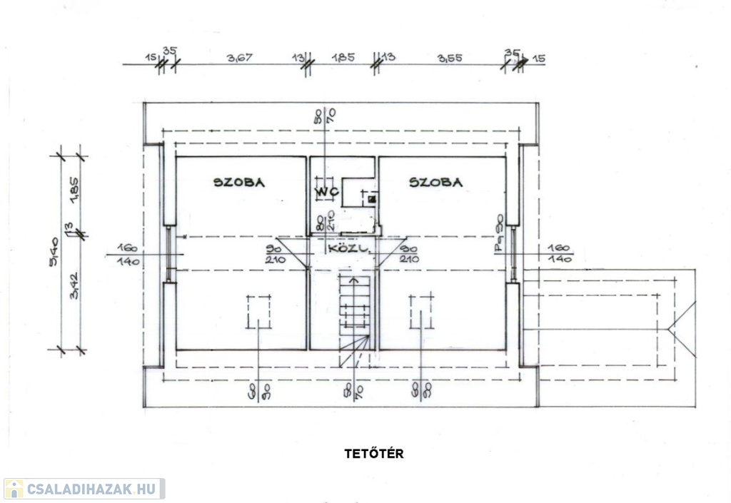
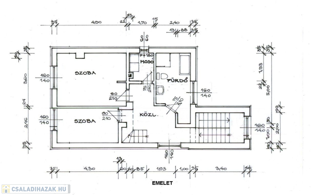
A háznak három lakó-, és egy félszuterén pinceszintje van.

Helyiségek:

- földszint: nappali/étkező, konyha, fürdőszoba, kamra;
- emelet: 2 hálószoba, fürdőszoba, háztartási helyiség;
- beépített tetőtér: 2 hálószoba és fürdőszoba.

A pinceszint két raktár helyiség és kazán.

A ház mellett kb. 40 nm-es tégla építésű melléképület található.

Az eredeti lakóház teljesen új tetőt és födémszerkezetet kapott.

Új fűtésrendszer, új nyílászárók (zömében 3 rétegű thermo ablakok).

Hőszigetelés: a tetőn 20 cm-es ásványgyapot. A külső hőszigetelés még nem történt meg, de a szigetelőanyagok rendelkezésre áll.

A ház az utcafronttól mintegy 20 m-re helyezkedik el.
Az épület mögötti a kert 80-90 m hosszú kert ásott kúttal.

Családi ház részletei

Ár: 112 000 000 Ft
Méret: 136 négyzetméter
Azonosító: 11544415
Irodai azonosító: 383787
Cím: Makkosmária
Telek: 1500 négyzetméter
Ingatlan állapota: Felújított
Jelleg: családi ház
Építőanyag: Tégla
Fűtés jellege: Cirkó
Fűtés módja: Gáz
Komfort fokozat: Dupla komfort
Kor: 21-50 éves
Szintek száma: 3 szint
Egész szobák: 2
Fél szobák: 3

Egyéb jellemzők

  • Csatorna
  • Garázs
  • Pince
  • Terasz

Térkép


Így keressen családi házat négy egyszerű lépésben. Csupán 2 perc, kötelezettségek nélkül!

Szűkítse a családi házak
listáját
Válassza ki a megfelelő
családi házat
Írjon a hirdetőnek
Várjon a visszahívásra