Eladó családi ház Budakalász 210 000 000 Ft

Leírás

BUDAKALÁSZON, SZENT ISTVÁN-TELEPEN ELADÓ EGY ÖNÁLLÓ CSALÁDI HÁZ!



Telek mérete: 765 nm



A KÖRNYÉK:



Budakalász kedvelt részén Szent István-telepen helyezkedik el egy saroktelken, csupán 12 perces sétára a HÉV megállótól. A kiváló elhelyezkedés könnyen megközelíthetővé teszi a város iskoláit, óvodáit, illetve üzleteit egyaránt, mint például a Szentistvántelepi Általános Iskola, ami 7 perc és a Szent István-telepi óvoda, ami 8 perc gyalog.





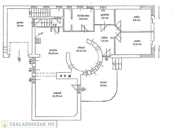
A HÁZ JELLEMZŐI:



-A ház bővíthető, illetve lehetőség van még egy szoba kialakítására szükség esetén.

-A ház hasznos alapterülete: 120 nm.

-Plusz egy 18 nm-es garázs.

-Plusz egy 50 nm-es pince.

-Plusz egy 20 nm-es terasz.

-2003-ban épült, 30-as Porotherm téglából, a ház teljes falfelületét faragott kő borítja.

-10 cm-es Dryvit szigetelést kapott.

-A födém borovi fából készült, míg a garázsé vasbetonból.

-A tető cseréppel fedett, üveggyapot hőszigeteléssel.

-A nyílászárók 2 rétegűek, fából készültek, márvány ablakpárkányokkal.

-A fűtésért egy Vallaint gázkazán felel, hőleadás a padlón keresztül, a nappaliban és a két hálószobában peremfűtés lett kiépítve.

-Kétlépcsős fűtésrendszer lett kialakítva.

-A nappaliban található egy kandalló és egy cserépkályha is.

-A villanyvezeték és a fűtés csövezete rézből készült.

-Megtalálható melegvíz tározó is.

-A pincében egy szauna is helyet kapott.

-A kert rendezett, megtalálható benne egy épített kemence, egy 10 méter mély fúrt kút, illetve kerti csap is.

-A telken belül több autó számára is van lehetőség a parkolásra.







FINANSZÍROZÁS:

Tehermentes, banki finanszírozással is megvásárolható, melyben irodánk ingyenes tanácsadással áll rendelkezésükre!

VEVŐINK RÉSZÉRE A KÖZVETÍTÉS DÍJTALAN! A hirdetésben szereplő adatok tájékoztató jellegűek!

Családi ház részletei

Ár: 210 000 000 Ft
Méret: 139 négyzetméter
Azonosító: 11602530
Irodai azonosító: 24904
Telek: 765 négyzetméter
Ingatlan állapota:
Jelleg: családi ház
Építőanyag: Kérdezzen rá a hirdetőtől »
Fűtés jellege: Egyedi
Szintek száma: Földszintes
Egész szobák: 3

Így keressen családi házat négy egyszerű lépésben. Csupán 2 perc, kötelezettségek nélkül!

Szűkítse a családi házak
listáját
Válassza ki a megfelelő
családi házat
Írjon a hirdetőnek
Várjon a visszahívásra