Eladó családi ház Budakalász 170 000 000 Ft

Leírás

BUDAKALÁSZON A VÁROSKÖZPONTBAN ELADÓ EGY ÚJÉPÍTÉSŰ ÉS EGY FELÚJÍTOTT CSALÁDI HÁZ!



KÖRNYÉK:

A H5-ös HÉV megálló csupán 6 perc sétára, 450 méterre található, valamint a központi elhelyezkedése lehetővé teszi számos bevásárlási lehetőség, mint például kisboltok 7 perces, de az Auchant is csak 16 perces könnyű megközelítését sétálva. Ezen felül a Kalász Suli Általános Iskola csak 6 percre (450 méterre) található, míg a Nyitnikék Óvoda 9 perc sétával (700 méter) közelíthető meg.



A HÁZ JELLEMZŐI:

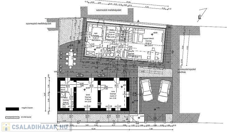
-Telek mérete: 338 nm

-A telken két épület található:

-Egy 90 nm-es újépítésű családi ház.

-Plusz egy teljeskörűen felújított, 48 nm-es ház, ennek besorolása iroda.

-A két épület hasznos alapterülete: 137,9 nm.



Az újépítésű családi ház jellemzői:

-2026 januárban kerül átadásra, 30-as POROTHERM téglából épült, grafitos hőszigetelést kapott.

-A tetőt kerámiacserép fedi.

-3 rétegű fa nyílászárók.

-A fűtésről hőszivattyú gondoskodik, padlófűtéssel.

-Plusz hűtő-fűtő klíma is kialakításra került.

A felújított ház jellemzői:

-2025-ben teljeskörű felújításon esett át, grafitos hőszigetelést kapott.

-A tetőt kerámiacserép fedi.

-3 rétegű, műanyag nyílászárók.

-A fűtésről egy új gázkazán gondoskodik, padlófűtéssel.

-Plusz hűtő-fűtő klíma is kialakításra került.





FINANSZÍROZÁS:

-Tehermentes, banki finanszírozással is megvásárolható, melyben irodánk ingyenes tanácsadással áll rendelkezésükre! VEVŐINK RÉSZÉRE A KÖZVETÍTÉS DÍJTALAN! A hirdetésben szereplő adatok tájékoztató jellegűek!

Családi ház részletei

Ár: 170 000 000 Ft
Méret: 138 négyzetméter
Azonosító: 11585761
Irodai azonosító: 24023
Telek: 338 négyzetméter
Ingatlan állapota: Épülő
Jelleg: családi ház
Építőanyag: Kérdezzen rá a hirdetőtől »
Fűtés jellege: Egyéb
Szintek száma: 1 szint
Egész szobák: 6

Így keressen családi házat négy egyszerű lépésben. Csupán 2 perc, kötelezettségek nélkül!

Szűkítse a családi házak
listáját
Válassza ki a megfelelő
családi házat
Írjon a hirdetőnek
Várjon a visszahívásra