Eladó családi ház Borsodnádasd 17 700 000 Ft

Leírás

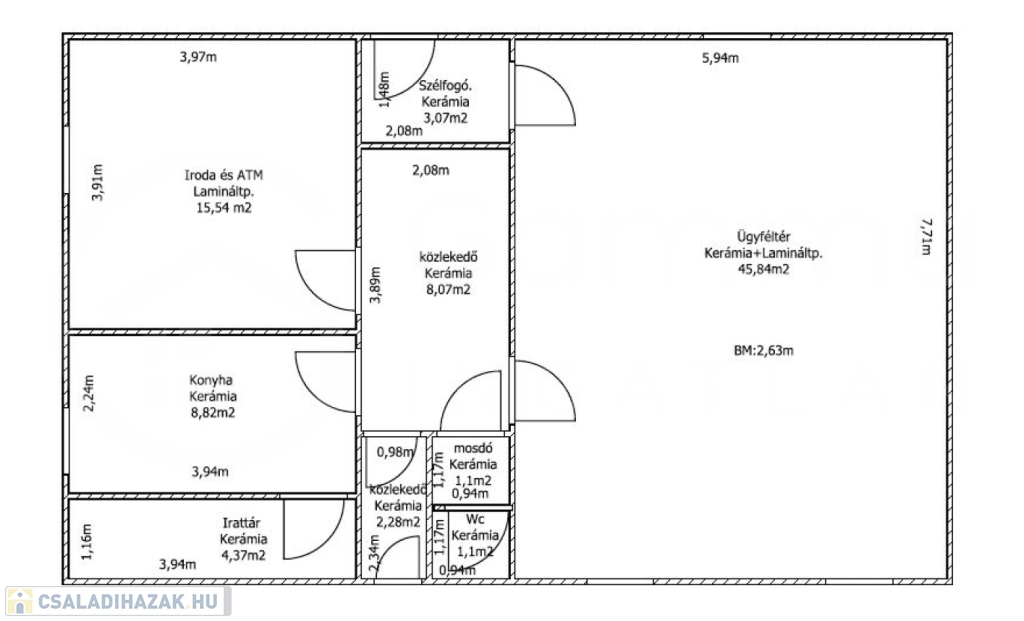
Borsodnádasd központjában, a Köztársaság úton többfelé célra alkalmas, földhivatali nyilvántartásban "épület"-ként nyilvántartott ingatlan, 90,19 m²-es ház, 392 m²-es telekkel eladó!
Ár: 17.700.000 Ft+Áfa

Műszaki leírás:
1980-as években épült, földszint tagolódású, tégla falszerkezetű épület. Födém vasbeton gerendás, tetőformája összetett nyeregtető, cserépfedéssel. Homlokzata vakolt, színezett. Homlokzati nyílászárói műanyag szerkezetű ablakok, hőszigetelt üvegezéssel, közepes műszaki állapotban. Fűtését gázkazán biztosítja, radiátor hőleadókkal. Melegvíz-ellátása elektromos vízmelegítővel megoldott. A helyiségek burkolata laminált padló és mázas kerámia, közepes műszaki állapotban.

Helyiség lista:
- szélfogó
- ügyféltér
- közlekedő
- iroda
- konyha
- irattár
- közlekedő
- mosdó
- WC.

Környezet:
Környezetében üzletek, valamint lakóházak találhatóak.

Közlekedés:
Megközelítése aszfaltozott úton lehetséges.
Tömegközlekedés megállója kb. 30 m

Családi ház részletei

Ár: 17 700 000 Ft+ÁFA
Méret: 90 négyzetméter
Azonosító: 11358080
Irodai azonosító: 109566
Cím: Borsodnádasd
Telek: 392 négyzetméter
Ingatlan állapota:
Jelleg: családi ház
Építőanyag: Kérdezzen rá a hirdetőtől »
Fűtés jellege: Cirkó
Egész szobák: 2

Egyéb jellemzők

  • Terasz

Így keressen családi házat négy egyszerű lépésben. Csupán 2 perc, kötelezettségek nélkül!

Szűkítse a családi házak
listáját
Válassza ki a megfelelő
családi házat
Írjon a hirdetőnek
Várjon a visszahívásra