Eladó családi ház Bőny 65 800 000 Ft

Leírás

Nappali+ 3 szobás családi házak saját terasszal és kerttel Bőny központjában eladók

Magyarország északnyugati részén, Győrtől 17 kilométerre helyezkedik el, annak vonzáskörzetében, Győr-Moson-Sopron és Komárom-Esztergom vármegye határán. A falutól mindössze 11 kilométerre fekszik Bábolna városa.
Az M1-es autópálya több kilométeren keresztül a település közigazgatási területének északi és nyugati határvonalánál húzódik.

Bőny központjában épült fel a kínált 5 lakásos mini lakópark, ahol saját kerítéssel körbevett, önálló házak közül most még választhat.
A házakhoz kb. 250 m2 saját kert tartozik
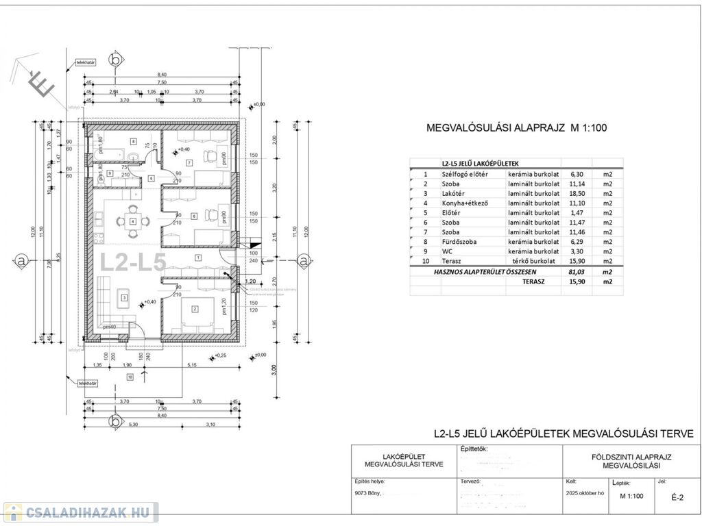
A 81,03 m2-es ház helyiségei: amerikai konyhás nappali, 3 hálószoba, fürdőszoba, WC, közlekedő, előszoba. A lakáshoz tartozik egy 15,9 m2-es TERASZ is!

- Szélfogó előtér kerámia burkolat 6,30 m2
- Szoba laminált burkolat 11,14 m2
- Lakótér laminált burkolat 18,50 m2
- Konyha+étkező laminált burkolat 11,10 m2
- Előtér laminált burkolat 1,47 m2
- Szoba laminált burkolat 11,47 m2
- Szoba laminált burkolat 11,46 m2
- Fürdőszoba kerámia burkolat 6,29 m2
- WC kerámia burkolat 3,30 m2
- rasz térkő burkolat 15,90 m2

Megbízható, számos referenciával rendelkező kivitelező.

Az ár KULCSRAKÉSZ állapotra vonatkozik és tartalmazza a telekhányadot is valamint 5% Áfát.

Műszaki tartalom:
- A teherhordó falazatok BAKONYTHERM 30 N+F téglából készülnek hőszigetelő falazó habarcsba rakva
- válaszfalak 10 cm BAKONYTHERM N+F kerámia válaszfallap
- aljzatban lépésálló hőszigetelés 12,0 cm
- 15 cm homlokzati szigetelés DRYVIT hőszigetelő homlokzatbevonattal
- zárófödémeken hőszigetelés
- fehér műanyag nyílászárók fokozott hőszigetelésű üvegezés elhelyezéssel 3 rétegű üveggel, Uü=1,0 W/m2K
- Tető korcolt lemez fedéssel, ANTRACIT színben
- Ereszcsatornák és lefolyók BLANCHOTRAPEZ acéllemezből készülnek, porfestett kivitelben, galambszürke színben
- Kondenzációs BOSCH Turbó Combi gázkazán PADLÓFŰTÉSSEL
- 1 db KLÍMA
- lámpák
- előtető

A rohamosan fejlődő településen iskola, óvoda, bolt, étterem is üzemel.
Az M1autópálya pár perc alatt elérhető, így az Ipari Park is nagyon könnyen megközelíthető. Buszmegálló a közelben található.

Amennyiben hitelre van szüksége ingyenes tanácsadással és teljes körű ügyintézéssel állunk rendelkezésére.
Az ingatlan megvásárlásához minden családtámogatási kedvezmény igénybe vehető!
Megkeressük Önnek a legkedvezőbb megoldást!

Hívjon mielőbb! További információk kizárólag telefonon!
20/2777237

Családi ház részletei

Ár: 65 800 000 Ft
Méret: 81 négyzetméter
Azonosító: 11573075
Irodai azonosító: 122666
Cím: Bőny
Telek: 250 négyzetméter
Ingatlan állapota: Átlagos
Jelleg: családi ház
Építőanyag: Kérdezzen rá a hirdetőtől »
Fűtés jellege: Cirkó
Kor: Új építésű
Egész szobák: 4

Egyéb jellemzők

  • Terasz

Így keressen családi házat négy egyszerű lépésben. Csupán 2 perc, kötelezettségek nélkül!

Szűkítse a családi házak
listáját
Válassza ki a megfelelő
családi házat
Írjon a hirdetőnek
Várjon a visszahívásra