Eladó családi ház Boncodfölde 120 000 000 Ft

Leírás

Boncodfölde nyugodt, zöld környezetében kínálunk megvételre egy prémium kivitelezésű, átgondolt tervezésű családi házat, amely kiválóan alkalmas akár két generáció együttélésére is.

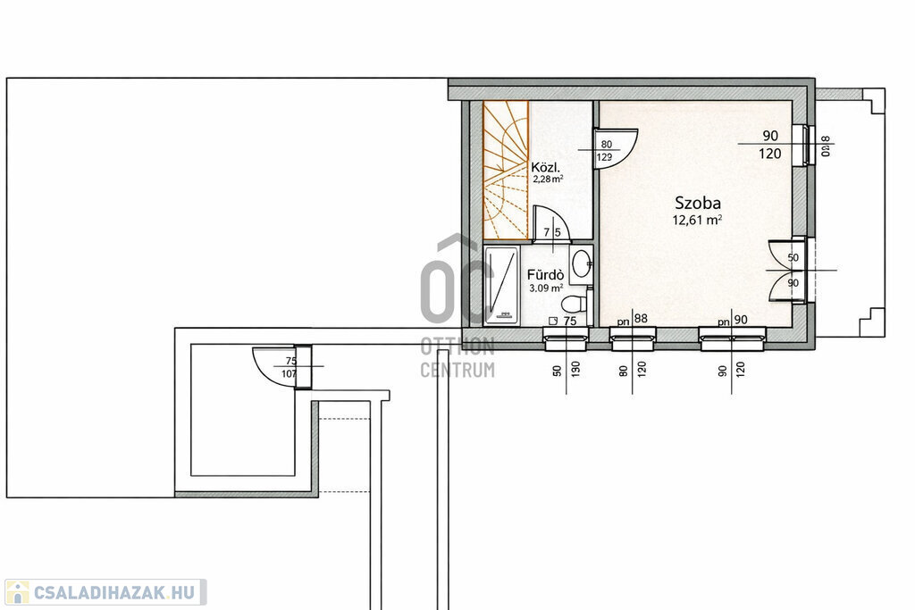
Az ingatlan különlegessége a praktikus kialakítás: az alsó és a felsőszint önálló bejárattal is rendelkezik, ugyanakkor belső kapcsolattal egy egységes otthonként is használható.

A ház egy 1000 m²-es telken épül, átadása 2026 év végén várható. Masszív, 30 cm-es tégla falazattal és 15 cm-es szigeteléssel készül.

Helyiségek:

- alsó szint: közlekedő, szoba, fürdőszoba
- földszint: 3 szoba, nappali-konyha-étkező, fürdőszoba, külön WC, háztartási helyiség, előszoba, tároló, közlekedő

Kiemelt extrák:

- 3 fedett terasz
- 2 fürdőszoba
- aknás garázs

Műszaki tartalom:

- hőszivattyús fűtés
- fa nyílászárók
- dekoratív, látszó fa gerendás mennyezet
- világos, nagy üvegfelületek

Választható burkolatok:

- hidegburkolat: 10.000 Ft/m²-ig
- melegburkolat: 8.000 Ft/m²-ig

Csendes, természetközeli elhelyezkedés, Zalaegerszeg gyors elérhetőségével.

Ideális választás azoknak, akik egy modern, rugalmasan alakítható otthont keresnek hosszú távra.
További információért keressen bizalommal!

Családi ház részletei

Ár: 120 000 000 Ft
Méret: 135 négyzetméter
Azonosító: 11613326
Irodai azonosító: U0049664-5201846
Telek: 1000 négyzetméter
Ingatlan állapota: Épülő
Jelleg: családi ház
Építőanyag: Tégla
Fűtés jellege: Villany
Fűtés módja: Hőszivattyú
Kor: Új építésű
Szintek száma: Földszintes
Egész szobák: 5

Térkép


Így keressen családi házat négy egyszerű lépésben. Csupán 2 perc, kötelezettségek nélkül!

Szűkítse a családi házak
listáját
Válassza ki a megfelelő
családi házat
Írjon a hirdetőnek
Várjon a visszahívásra