Eladó családi ház Bocskaikert 78 000 000 Ft

Leírás

Bocskaikert központi részén egy egyedi stílusú 3 szoba + nappalis, 2 fürdőszobás családi ház eladó!

Olyan családi házat keres amely korszerű, kifogástalan állapotú, és csak birtokba kell vennie?
Ritkaság ilyet találni, nézze meg ezt, míg van rá lehetősége!

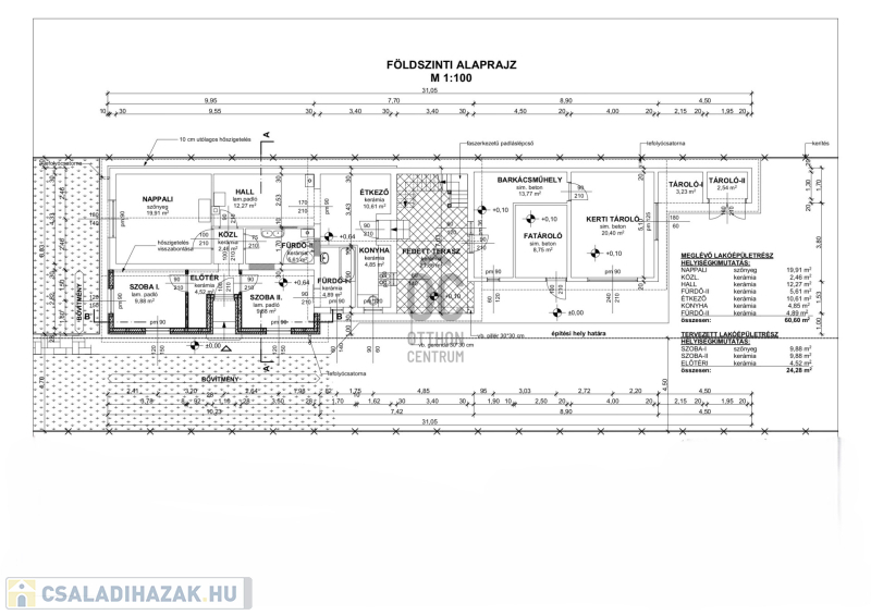
A ház paraméterei:
- 769 nm-s telken épült, nettó 86 nm alapterülettel + 22 nm-s fedett terasszal
- 28,5 nm-s nappali -konyha -étkező + 3 hálószoba, 2 fürdőszoba, kamra valamint a tetőrtérben egy 20 nm-s dolgozószoba lett kialakítva
- a szobák világos és élhető méretűek
- az ingatlan 2023-ban teljeskörű felújításon és bővítésen esett át
- hőszigetelt műanyag nyílászárói, rovarhálóval és részben redőnnyel ellátottak
- a kert parkosítása még tart de már élvezhető az ápolt, gondozott udvar mely sok lehetőséget kínál a kinti időtöltéshez
- a lakóépület mögött kiváló állapotú melléképület és egy 21 nm-es garázs is helyet kapott

Elhelyezkedés:
Bocskaikert csendes, zöldövezeti részén található, távol a város zajától, mégis könnyen megközelíthető távolságra az alapvető szolgáltatásoktól és közlekedési útvonalaktól.
A településen óvoda ,iskola,termelői piac,kiváló étterem,bevásárlási lehetőség.

Az ingatlanról teljes körű videó felvétel készült, a megtekintése érdekében weboldalunkon keresse a H511216 regisztrációs számon vagy keressen telefonon közvetlenül.
Azoknak, akik szeretik a kertvárosi, barátságos környezetet, és fontos a belváros közelsége is.
Hívjon, és egyeztessünk időpontot a megtekintéshez!

Ez az ingatlan a "Hűség csomag" megbízási portfólióhoz tartozik. Részletek az Otthon Centrum weboldalán.

Családi ház részletei

Ár: 78 000 000 Ft
Méret: 96 négyzetméter
Azonosító: 11588171
Telek: 769 négyzetméter
Ingatlan állapota: Kitűnő
Jelleg: családi ház
Építőanyag: Kérdezzen rá a hirdetőtől »
Fűtés jellege: Cirkó
Egész szobák: 3

Egyéb jellemzők

  • Csatorna
  • Garázs
  • Kábel TV
  • Melléképület
  • Parketta
  • Pince
  • Terasz

Így keressen családi házat négy egyszerű lépésben. Csupán 2 perc, kötelezettségek nélkül!

Szűkítse a családi házak
listáját
Válassza ki a megfelelő
családi házat
Írjon a hirdetőnek
Várjon a visszahívásra