Eladó családi ház Bocfölde 139 000 000 Ft

Leírás

PANORÁMÁS, PRÉMIUM, ÚJ ÉPÍTÉSŰ CSALÁDI HÁZ BOCFÖLDÉN – ZALAEGERSZEGTŐL PÁR PERCRE!

Van az a pillanat, amikor egy kilátás mindent eldönt.
Ez az otthon pontosan ilyen.

Bocfölde egyik legszebb, panorámás részén, csendes, zöld környezetben épül ez a modern, új építésű családi ház, amely tökéletes egyensúlyt teremt a nyugalom és a város közelsége között. Zalaegerszeg mindössze néhány perc autóval, mégis egy teljesen más, nyugodtabb világba érkezünk haza minden nap.

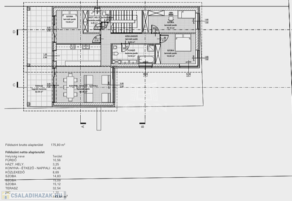
A 1011 m²-es telken megvalósuló, 216 m²-es otthon minden részlete a kényelmes, élhető családi életet szolgálja. A két szinten kialakított elrendezés átgondolt, a terek világosak, jól használhatók, és természetes kapcsolatban állnak a környezettel.

A felső lakószinten egy tágas, amerikai konyhás nappali–étkező fogad, amely a családi élet központja. Innen nyílik a 32 m²-es panorámás terasz, amely nem csupán egy kültéri tér, hanem az ingatlan egyik legnagyobb értéke – egy hely, ahol a reggelek nyugalomban indulnak, az esték pedig különleges hangulatban telnek.

A három külön nyíló hálószoba kényelmes privát teret biztosít, míg a fürdőszoba, háztartási helyiség és külön toalett a mindennapi praktikumot szolgálják.

Az alsó szinten található 38 m²-es dupla garázs, valamint további helyiségek – előtér, fürdő, tárolók és gépészet – biztosítják a funkcionalitást és a rendezett életteret.

⚙️ MODERN MŰSZAKI TARTALOM

Az ingatlan korszerű, időtálló megoldásokkal épül:

-30 cm Porotherm falazat
20 cm homlokzati szigetelés
-hőszivattyús fűtés padlófűtéssel
-háromrétegű nyílászárók
-betonfödém
-antracit tetőcserép.


Ez a műszaki háttér nemcsak kényelmet, hanem hosszú távon gazdaságos fenntarthatóságot is biztosít.

⚙️EGYEDI LEHETŐSÉG

Az ingatlan jelenleg kivitelezés alatt áll, így még lehetőség van arra, hogy az új tulajdonos bizonyos belső kialakítási elemeket saját igényeire szabjon. Ez ritka lehetőség egy ilyen adottságú, panorámás új építésű ingatlan esetében.

⚙️ELHELYEZKEDÉS
csendes, panorámás környezet
családias, rendezett utca
Zalaegerszeg pár perc alatt elérhető


⚙️FŐBB ADATOK
Telek: 1011 m²
Lakóterület: 216 m²
Nappali + 3 hálószoba
32 m² panorámás terasz
38 m² dupla garázs
Új építés, modern gépészet

Ez az ingatlan ideális választás azoknak, akik nem szeretnének kompromisszumot kötni: panoráma, nyugalom, modern technológia és városközeli elhelyezkedés egyetlen otthonban.

Irányár: 139 000 000 Ft

Részletes műszaki tartalommal, aktuális készültségi szinttel és személyes megtekintéssel kapcsolatban keressen bizalommal.

A vásárlás teljes folyamatában támogatást nyújtok, beleértve a finanszírozást, jogi hátteret és igény esetén a belső kialakítás szakmai támogatását is.

Családi ház részletei

Ár: 139 000 000 Ft
Méret: 274 négyzetméter
Azonosító: 11610738
Irodai azonosító: 394145
Cím: Új, Tégla Ház, Garázs, Panoráma!
Telek: 1011 négyzetméter
Ingatlan állapota: Kitűnő
Jelleg: családi ház
Építőanyag: Tégla
Fűtés jellege: Geotermikus
Fűtés módja: Hőszivattyú
Komfort fokozat: Összkomfort
Kor: Új építésű
Szintek száma: 1 szint
Egész szobák: 4

Egyéb jellemzők

  • Csatorna
  • Garázs
  • Pince
  • Terasz

Térkép


Így keressen családi házat négy egyszerű lépésben. Csupán 2 perc, kötelezettségek nélkül!

Szűkítse a családi házak
listáját
Válassza ki a megfelelő
családi házat
Írjon a hirdetőnek
Várjon a visszahívásra