Eladó családi ház Bicske 89 900 000 Ft

Leírás

Új építésű, modern technológiával készült, bruttó 119 nm-es ikerház eladó, Bicske legjobb részén! A telken épülő 2 háznak NINCS KÖZÖS FALA!!!

Már csak az egyik iker fél érhető el!!!!

A tervezésnél fontos szempont volt a tágas terek kialakítása, a prémium minőségű anyagok használata.
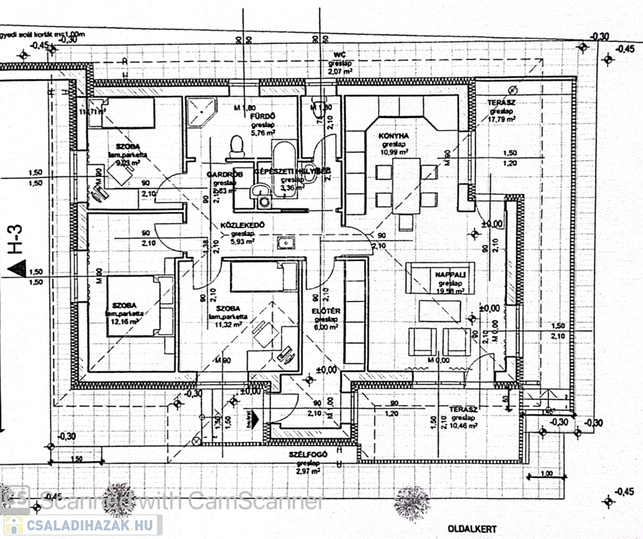
A helyiségek elrendezése praktikus: 3 nm-es szélfogó, egy 6 nm-es előszoba, egy 31 nm-es amerikai konyhás nappali, 3 külön nyíló szoba (11, 12 és 9 nm) egy gardrób, egy háztartási helyiség, egy 6 nm-es fürdőszoba, egy vendég mosdó és egy háztartási helyiség. A nappaliból és az étkezőből megközelíthető terasz mérete 10,5 nm. A kertben egy 5 nm-es tároló is kialakításra kerül.
A nettó alapterület 92 nm.

Műszaki paraméterek:
- betonalap, aljzat- és vízszigeteléssel
- Leier tégla falazat
- 20 cm-es EPS hőszigetelés
- fa födém, 20 cm szigeteléssel
- 3 rétegű, hőszigetelő műanyag nyílászárók
- antracit Bramac tetőcserép
- hőszivattyú – padlófűtéssel
- Viacolor térkövezés, tereprendezés

Az ingatlan központi, mégis csendes helyen található, ezáltal a mindennapi élethez szükséges szolgáltatások és üzletek pár perces sétával elérhetőek. Budapest határa autóval 20 perc, de rendszeres buszjárattal is megközelíthető.

A nappali + 3 szobás ház kényelmes, korszerű és praktikus otthona lehet kis és nagyobb gyermekes családoknak!

Bankfüggetlen Hitelközpontunk ingyenesen segít megtalálni Önnek a legkedvezőbb finanszírozási lehetőséget. CSOK igényelhető a vásárláshoz!

További információért, vagy megtekintési szándék esetén kérem, keressen bizalommal!

Családi ház részletei

Ár: 89 900 000 Ft
Méret: 92 négyzetméter
Azonosító: 11536216
Irodai azonosító: 382530
Cím: Hőszivattyús nappali + 3 szobás
Telek: 320 négyzetméter
Ingatlan állapota: Kitűnő
Jelleg: ikerház
Építőanyag: Tégla
Fűtés jellege: Geotermikus
Fűtés módja: Hőszivattyú
Komfort fokozat: Összkomfort
Kor: Új építésű
Szintek száma: Földszintes
Egész szobák: 2
Fél szobák: 2

Egyéb jellemzők

  • Csatorna
  • Garázs
  • Pince
  • Terasz

Térkép


Így keressen családi házat négy egyszerű lépésben. Csupán 2 perc, kötelezettségek nélkül!

Szűkítse a családi házak
listáját
Válassza ki a megfelelő
családi házat
Írjon a hirdetőnek
Várjon a visszahívásra