Eladó családi ház Biatorbágy 157 000 000 Ft

Leírás

Modern, energiatakarékos otthon Biatorbágy szívében!

Eladó szép lakás Biatorbágy központjában, ami inkább egy ikerház jellegű sorház – saját, elkerített, 182 m²-es kerttel és hátsó terasszal, ahol garantált a nyugalom és a privát tér.

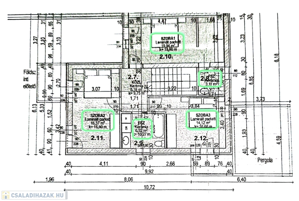
✅2 szint, 4 tágas szoba – ideális nagyobb családnak is
✅2 fürdőszoba + külön WC – kényelmes, praktikus elrendezés
✅Saját garázs 30 m2 + külön kocsibeálló
✅Hőszivattyús fűtés – környezetbarát, energiatakarékos megoldás
✅Alacsony rezsivel kb 15-20.000,- Ft/hó
✅Gondozott, kizárólagos használatú kert gyönyörű kilátással
✅Biatorbágy központjában, minden fontos szolgáltatás pár perc sétára
✅Jogilag rendezett társasházban, közös költség nélkül – csak a saját házadra költesz!

Hétvégén és ünnepnapokon is felveszem a telefont, ha nem érsz el visszahívlak!

Ha eltévednél az állami támoggatások erdejében segítünk kibogozni. Itt is van lehetőség második lakásos CSOK+ felvételére!

Teljeskörű, díjmentes hitelügyintézést is vállalunk, így az álomotthonod megvásárlása a lehető legkönnyebb lesz!

Családi ház részletei

Ár: 157 000 000 Ft
Méret: 118 négyzetméter
Azonosító: 11577795
Irodai azonosító: 389330
Cím: KÖZPONTBAN
Telek: 182 négyzetméter
Ingatlan állapota: Kitűnő
Jelleg: sorház
Építőanyag: Tégla
Fűtés jellege: Geotermikus
Fűtés módja: Hőszivattyú
Komfort fokozat: Dupla komfort
Kor: 1-5 éves
Szintek száma: 1 szint
Egész szobák: 4

Egyéb jellemzők

  • Csatorna
  • Garázs
  • Pince
  • Terasz

Térkép


Így keressen családi házat négy egyszerű lépésben. Csupán 2 perc, kötelezettségek nélkül!

Szűkítse a családi házak
listáját
Válassza ki a megfelelő
családi házat
Írjon a hirdetőnek
Várjon a visszahívásra