Eladó családi ház Berettyóújfalu 57 700 000 Ft

Leírás

Eladásra kínálunk Berettyóújfalu csendes, zöldövezeti részén egy modern, újépítésű családi házat, amely kiváló lehetőség mindazoknak, akik saját igényeik szerint szeretnék kialakítani otthonukat.

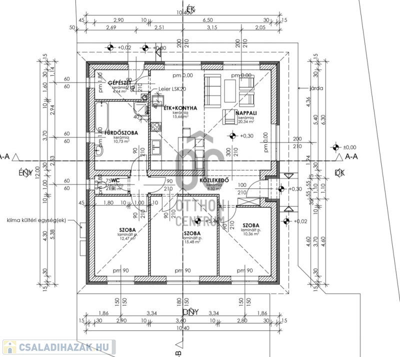
A 426 m²-es telken épülő, 99,80 m² alapterületű ingatlan amerikai konyhás nappalival és 4 szobával tervezett. A válaszfalak még nem kerültek kialakításra, így az új tulajdonos szabadon formálhatja a belső elrendezést. A tető modern antracit betoncserép fedéssel már elkészült.

A közművek előkészítése folyamatban: az áram bevezetése már zajlik, a víz és a szennyvíz telken belül megtalálható, a gázcsonk az utcában rendelkezésre áll. A tulajdonos a fűtést klímás vagy hőszivattyús padlófűtéses rendszerrel tervezte, de a végső megoldást az új tulajdonos igényeire bízza — így valóban személyre szabható az otthon.

Ha egy modern, alakítható új építésű otthont keres nyugodt környezetben, mindössze 15 perc sétára a városközponttól, ne hagyja ki ezt a lehetőséget!

Érdeklődjön bizalommal, és tekintse meg személyesen!

Családi ház részletei

Ár: 57 700 000 Ft
Méret: 100 négyzetméter
Azonosító: 11602413
Telek: 426 négyzetméter
Ingatlan állapota: Kitűnő
Jelleg: családi ház
Építőanyag: Kérdezzen rá a hirdetőtől »
Egész szobák: 4

Egyéb jellemzők

  • Csatorna
  • Garázs
  • Kábel TV
  • Melléképület
  • Parketta
  • Pince
  • Terasz

Így keressen családi házat négy egyszerű lépésben. Csupán 2 perc, kötelezettségek nélkül!

Szűkítse a családi házak
listáját
Válassza ki a megfelelő
családi házat
Írjon a hirdetőnek
Várjon a visszahívásra