Eladó családi ház Berettyóújfalu 109 000 000 Ft

Leírás

Eladásra kínálom Berettyóújfalu térségében ezt a 13000 m²-es tanyát, 5 millió forint értékű ajándék munkagépekkel!

A kovácsoltvas, elektromos bejárati kapuhoz érve, lélegzetelállító látvány tárul elénk, a madárcsicsergés és a csodaszép virágokkal díszített idill környezet minden igényt kielégít, mindössze 3 km-re az autópályától.

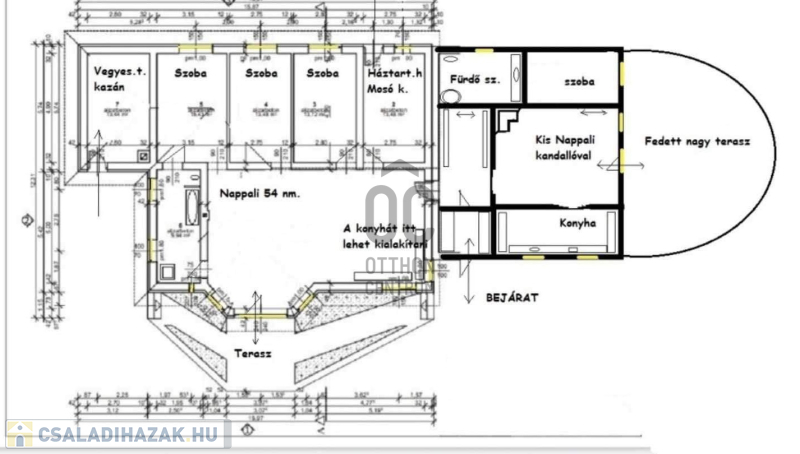
A tanyán található egy 236 négyzetméteres családi ház, amely műanyag kétrétegű nyílászárókkal, minőségi burkolatokkal, berendezetlen állapotban került értékesítésre. Az épület falazata tégla, illetve vályog, szigetelését tekintve 15 cm.
Két nagy terasz tartozik a családi házhoz, melyeken a csodálatos környezet adta privát szférát élvezhetjük.

Továbbá a tanya területén található egy kétállásos garázs, egy 20 m²-es kisház, egy 75 m²-es 5 részes épület (jelenleg kutya kifutóként funkcionál), illetve egy 150 m²-es nyitott és egy 165 m²-es zárt nyári szállás, amely külön bejáratból, útról megközelíthető.

MŰSZAKI ADATOK:
- 1,3 hektárnyi terület,
- 2 generációs, 236 m² -es családi ház,
- 2 db nappali + 5 db különnyíló szoba,
- vegyes-tüzelésű kazán, kandalló, villanykazán,
- 10kW-os Huawei napelemek,
- fúrott kút BWT víztisztító és vízlágyító berendezéssel,
- tanya besorolás (pályázható),
- 2 állásos garázs,
- 150 m²-es nyitott és 165 m²-es zárt nyári szállás,
- könnyűszerkezetes fa tároló,
- 75 m²-es 5 épületrészből álló kutyakifutó.

Igény szerint a családi ház elválasztható egymástól, így több generáció számára is kiváló lehetőséget kínál.

Az ingatlan rugalmasan megtekinthető. Keressen bizalommal!

Családi ház részletei

Ár: 109 000 000 Ft
Méret: 236 négyzetméter
Azonosító: 11392605
Telek: 13000 négyzetméter
Ingatlan állapota: Átlagos
Jelleg: családi ház
Építőanyag: Kérdezzen rá a hirdetőtől »
Fűtés jellege: Egyéb
Elhelyezkedés: Utcafronti
Egész szobák: 7

Egyéb jellemzők

  • Garázs
  • Kábel TV
  • Melléképület
  • Parketta
  • Pince
  • Terasz

Így keressen családi házat négy egyszerű lépésben. Csupán 2 perc, kötelezettségek nélkül!

Szűkítse a családi házak
listáját
Válassza ki a megfelelő
családi házat
Írjon a hirdetőnek
Várjon a visszahívásra