Eladó családi ház Békéscsaba 84 900 000 Ft

Leírás

Új építésű, nappali+3 szobás családi ház Békéscsabán!

Az udvar 427 m2-es, az utca felől jó állapotú kerítéssel és kis- és nagykapuval kerített! Az udvaron Frühwald burkolatú járdák és bejáró került kialakításra.

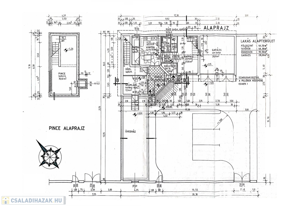
Az épület alatt egy 30 m2-es, száraz, kifogástalan állapotú pince is található, melynek egy részében hőtőkamra került kialakításra.

A lakóház földszinti lakótere 46,5 m2, a konyha-étkező helyiséggel egy légterű nappali, illetve WC és zuhanyzó található ezen a szinten, a nappaliból egy vasbeton szerkezetű lépcsőn keresztül juthatunk a tetőtérbe. Ezen kívül a földszinten kialakításra került, egy dupla garázs, amely elektromos, magasított garázskapuval ellátott, így akár magasabb autó, kisteherautó tárolására is alkalmas. Szintén a földszinten található egy 45 m2-es üvegház, ami akár télikertként, vagy pihenő, szabadidős helyiségként, akár wellness helyiségnek is kialakítható, mivel víz és szennyvíz ebben a helyiségben is kiépítésre került.

Az épület tetőtere 46 m2 hasznos területű, három hálószoba, egy fürdőszoba, szárítóhelyiség/mosókonyha került kialakításra.


Az épület tégla falazattal épült, homlokzata és tetőtere hőszigetelt, a külső nyílászárók újak, műanyag szerkezetek, redőnnyel felszereltek. A fűtést gázkazán biztosítja, radiátor hőleadókkal.

Amennyiben egy olyan ingatlanra vágyik a kedves érdeklődő, ahol nem kell a felújítással foglalkozni, akkor ez az ingatlan ideális választás lehet, mivel új építésű, modern ház, ahová csak költözni kell!


Ügyfeleink számára irodánk teljes jogi hátteret, adás-vétellel kapcsolatos térítésmentes jogi tanácsadást biztosít!
Bank semleges, díjmentes hitel tanácsadással is hozzájárulunk, hogy megtalálja az ön számára legkedvezőbb megoldást!
(További képekért és információkért kérem hívjon!)

Családi ház részletei

Ár: 84 900 000 Ft
Méret: 123 négyzetméter
Azonosító: 11393744
Irodai azonosító: 856355
Telek: 427 négyzetméter
Ingatlan állapota: Kitűnő
Jelleg: családi ház
Építőanyag: Tégla
Fűtés jellege: Cirkó
Egész szobák: 4
Nappalik: 1

Egyéb jellemzők

  • Beépíthető tetőtér
  • Csatorna
  • Garázs
  • Melléképület
  • Pince
  • Terasz

Így keressen családi házat négy egyszerű lépésben. Csupán 2 perc, kötelezettségek nélkül!

Szűkítse a családi házak
listáját
Válassza ki a megfelelő
családi házat
Írjon a hirdetőnek
Várjon a visszahívásra