Eladó családi ház Békéscsaba 55 900 000 Ft

Leírás

Új építésű családi ház Békéscsabán!

A ház szerkezetkész állapotban állt évekig, befejezése idén folytatódott, jelenleg is építés alatt áll, napról napra kedvezőbb készenléti állapotba kerül, csak a burkolatok hiányoznak és a belső nyílászárók, így az új tulajdonos kiválaszthatja a neki tetsző színeket!
Pontosításért érdemes megtekintenie személyesen, és egyeztetni!

Az udvar 427 m2-es, az utca felől jó állapotú kerítéssel és kis- és nagykapuval kerített! Az udvaron Frühwald burkolatú járdák és bejáró került kialakításra.

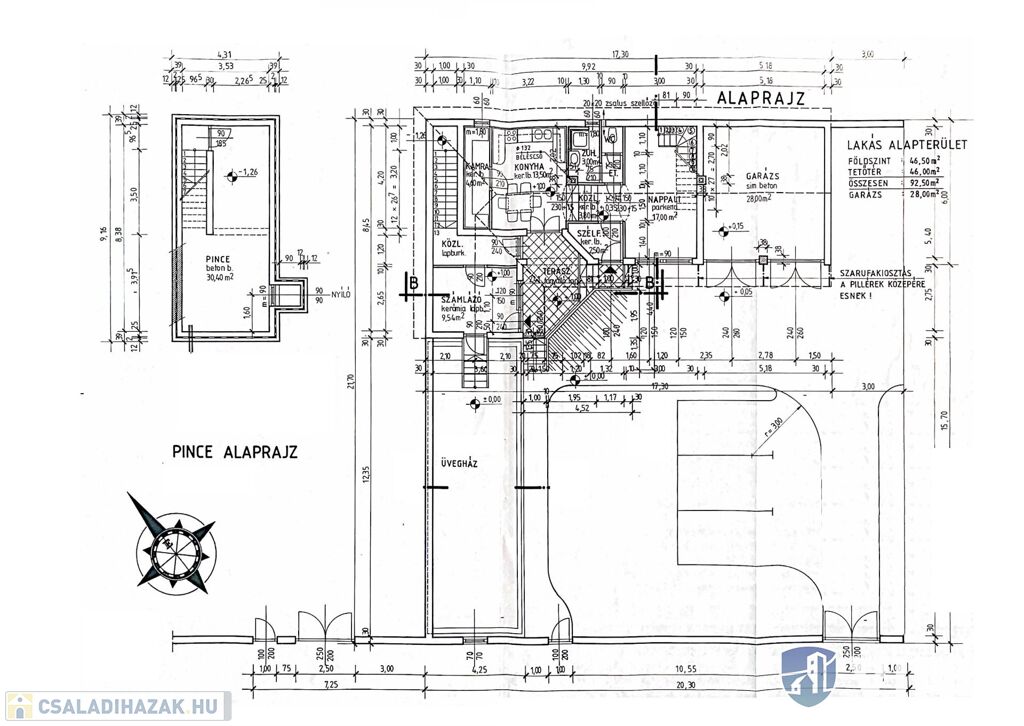
Az épület alatt egy 30 m2-es, száraz, kifogástalan állapotú pince található, melynek egy részében hőtőkamra került kialakításra.

A földszint lakótere 46,5 m2, a konyha-étkező helyiséggel egy légterű nappali, illetve WC és zuhanyzó található ezen a szinten, a nappaliból egy vasbeton szerkezetű lépcsőn keresztül juthatunk a tetőtérbe. Ezen kívül a földszinten kialakításra került, egy dupla garázs, amely elektromos, magasított garázskapuval ellátott, így akár magasabb autó, kisteherautó tárolására is alkalmas. Szintén a földszinten található egy 45 m2-es üvegház, ami akár télikertként, vagy pihenő, szabadidős helyiségként, akár wellness helyiségnek is kialakítható, mivel víz és szennyvíz ebben a helyiségben is kiépítésre került.

Az épület tetőtere 46 m2 hasznos területű, három hálószoba, egy fürdőszoba, szárítóhelyiség/mosókonyha került kialakításra.


Az épület tégla falazattal épült, homlokzata és tetőtere hőszigetelt, a külső nyílászárók újak, 3 rétegű, műanyag szerkezetek. A fűtési rendszer teljesen kiépítésre került, a kazán és a radiátorok (ezek megvannak, az ár tartalmazza) felhelyezésével működőképes!

Főbb jellemzők:

- 427 m2 telek
- 123 m2 lakótér
- 28 m2 garázs
- 45 m2 üvegház/tároló
- Frühwald járdák és kocsibejáró, jó állapotú, falazott kerítés
- Homlokzat hőszigetelése
- Új fűtési rendszer
- Minden helyiségben új aljzatbeton
- Új víz, szennyvízhálózat
- Falak glettelése, festése
- Új elektromos hálózat

A ház kiváló műszaki állapotú, tágas, világos, emellett családias környezetben helyezkedik el!

Ügyfeleink számára irodánk teljes jogi hátteret, adás-vétellel kapcsolatos térítésmentes jogi tanácsadást biztosít!
Bank semleges, díjmentes hitel tanácsadással is hozzájárulunk, hogy megtalálja az ön számára legkedvezőbb megoldást!
(További kínálatunkat keresse a VING hivatalos weboldalán.)

Családi ház részletei

Ár: 55 900 000 Ft
Méret: 123 négyzetméter
Azonosító: 11393744
Irodai azonosító: 856355
Telek: 427 négyzetméter
Ingatlan állapota: Kitűnő
Jelleg: családi ház
Építőanyag: Tégla
Fűtés jellege: Cirkó
Egész szobák: 4
Nappalik: 1

Egyéb jellemzők

  • Beépíthető tetőtér
  • Csatorna
  • Garázs
  • Melléképület
  • Pince
  • Terasz

Így keressen családi házat négy egyszerű lépésben. Csupán 2 perc, kötelezettségek nélkül!

Szűkítse a családi házak
listáját
Válassza ki a megfelelő
családi házat
Írjon a hirdetőnek
Várjon a visszahívásra