Eladó családi ház Békéscsaba 55 000 000 Ft

Leírás

Belvárosi, 6 szobás családi ház garázzsal, külön utcai bejárattal, akár leválasztható lakrésszekkel, erős statikai szerkezettel

Békéscsaba központi részén, a Csaba Centertől 8 perc sétára, csendes utcában kínálunk eladásra egy 175m2 lakótérrel rendelkező kétszintes, tégla falazatú ikerház egyik felét. A 6 szobás lakóingatlanhoz tartozik 24m2 fedett terasz, 18m2 garázs, 13m2 nyári konyha, egy közel 40m2-es fedett kocsibeálló, valamint 300m2-es kert gyümölcsfákkal és örökzöldekkel.

Fontos, hogy az ingatlan statikai szempontból kifogástalan állapotú, stabil lábakon áll, azonnal költözhető, azonban esztétikai felújítással, modernizálással újból csodás, trendi otthonná varázsolható.

Földszinti helyiségei: konyha, kamra, tágas, világos 34m2-es nappali-étkező, 2 szoba, fürdőszoba, külön WC, lépcsőház, közlekedő, ez összesen 95m2 fűtött alapterület.
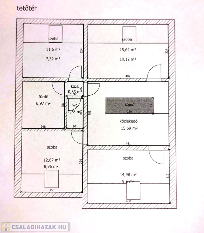
A belső szintes emelet részei: 4 szoba, fürdőszoba, külön WC, közlekedő, ez bruttó 80m2, tetőtér miatt nettó 61,5m2 ( ahol meghaladja a 190cm belmagasságot).

Az ingatlan legfőbb jellemzői:
- Két lakrészre elkülöníthető, 3 külső bejárattal rendelkezik, ebből egy ajtó közvetlen az utcára nyílik, emiatt üzleti célra, ügyfél fogadásra is kiválóan alakalmas az ingatlan.
- 2010 évben a földszinti fürdőszoba részleges felújításon esett át, itt tusoló kabint helyeztek el.
Még ebben az évben új konyhabútort és 2 klímát szereltek fel a házban, valamint a tetőt is újra cserepelték.
- 2015-ben a konyha, étkező, nappali új laminált padozatot kapott.
- Fűtése: gázcirkó, valamint vegyes tüzelésű kazánnal megoldott, radiátor hőleadókon keresztül.
- Az épület redőnyözött, szúnyoghálós, fa nyílászárói jól zárnak, ablakai hőszigeteltek, esztétikai felújítást igényelnek.
- Az udvar, a kocsibejáró térkővel burkolt, locsoláshoz vezetékes kerti csap lett felszerelve.
- Az ingatlan per- és tehermentes, 1/1 tulajdonban van, azonnal birtokba vehető.

Jó szívvel ajánlom ezt a tekintélyes méretű és megjelenésű ingatlant két generációs, vagy többgyermekes családok részére, illetve akiknek fontos a központi elhelyezkedés, a sok szoba, mind valódi álomotthonra lelhetnek benne.
Amennyiben érdeklődik az ingatlan iránt, szeretné megtekinteni, kérem, keressen elérhetőségeimen.
(További kínálatunkat keresse a VING hivatalos weboldalán.)

Családi ház részletei

Ár: 55 000 000 Ft
Méret: 175 négyzetméter
Azonosító: 11395706
Irodai azonosító: 466798
Telek: 550 négyzetméter
Ingatlan állapota: Átlagos
Jelleg: családi ház
Építőanyag: Tégla
Fűtés jellege: Cirkó
Egész szobák: 7
Nappalik: 1

Egyéb jellemzők

  • Beépíthető tetőtér
  • Csatorna
  • Garázs
  • Melléképület
  • Pince
  • Terasz

Így keressen családi házat négy egyszerű lépésben. Csupán 2 perc, kötelezettségek nélkül!

Szűkítse a családi házak
listáját
Válassza ki a megfelelő
családi házat
Írjon a hirdetőnek
Várjon a visszahívásra