Eladó családi ház Becsehely 26 900 000 Ft

Leírás

Becsehelyen, a Kossuth utcában családi ház nagy telekkel eladó!
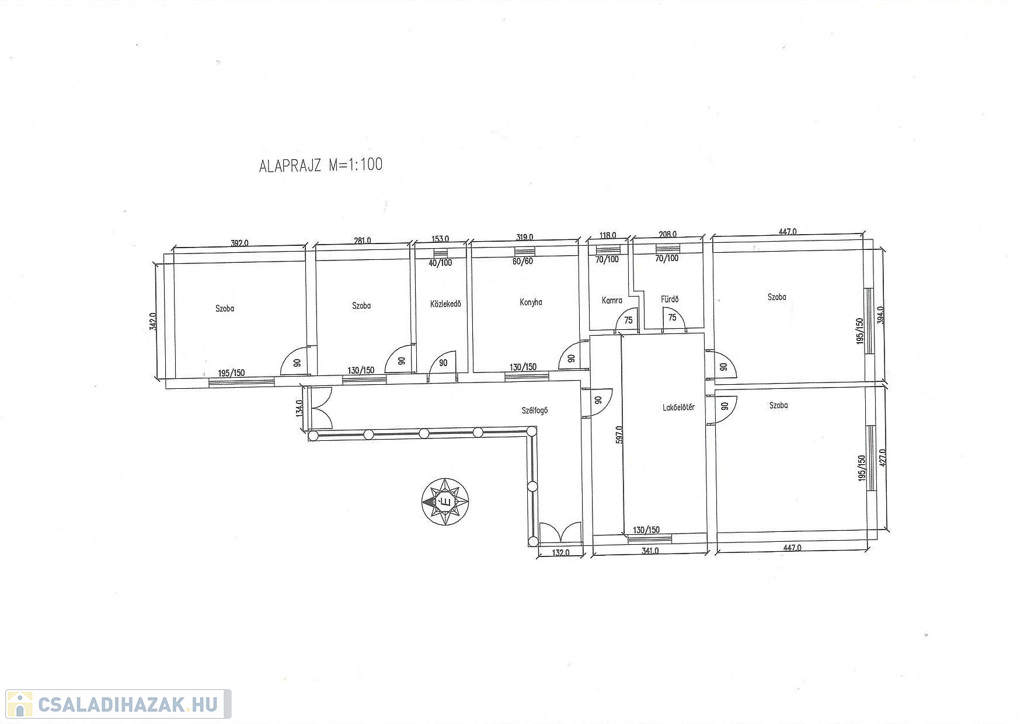
Becsehelyen, a Kossuth utcában, főútvonal közelében kínálok megvételre egy 120 m² alapterületű családi házat, amely 2224 m²-es telken helyezkedik el.
Az ingatlan utcafronti része 1970-ben épült, szerkezetileg stabil, folyamatosan karbantartották, jelenlegi állapota átlagos, a ház hátsó része régebbi építésű, aljzatszigetelésre szorul, és további felújítást igényel, így új tulajdonosa saját elképzelései szerint alakíthatja ki otthonát vagy akár gazdálkodásra alkalmas birtokát.

A ház nappali +4 szobával rendelkezik, ezért nagyobb család számára is ideális választás lehet. A fűtést cirkó gázkazán, radiátoros hőleadók és konvektorok biztosítják. A hagyományos fa nyílászárók megőrizték az épület eredeti karakterét.
Az ingatlan Déli és Nyugati tájolású, így a lakóterek világosak és napfényesek. A házhoz tartozik egy 15 m²-es zárt, üvegezett terasz, valamint több melléképület is, köztük garázs, műhely és tárolók, amelyek kiváló lehetőséget biztosítanak barkácsolásra, vállalkozásra vagy tárolásra.
A 2224 m²-es telek mérete gazdálkodásra, kertészkedésre vagy akár további fejlesztésre is alkalmas.

Lokáció előnyei
- főútvonal melletti elhelyezkedés
- Letenyei határátkelő kb. 10 km
- autópálya felhajtó 3 perc alatt elérhető
- könnyű közlekedés Nagykanizsa irányába

Ez az ingatlan kiváló választás lehet családi otthonnak, felújítási projektnek vagy gazdálkodásra alkalmas vidéki ingatlannak.
Amennyiben a vársárláshoz szüksége van hitelre, jogosult a Magyarország Kormánya által nyújtott 3%-os Otthon Start programra, vagy a gyermekvállaláshoz kötött Babaváróra, vissza nem térítendő állami támogatásra Falusi CSOK-ra, vagy a vagy CSOK+ - ra, irodánkban - a CSASZI Ingatlan és Hitelirodában - bank semleges, független hitelszakértő 20 éves szakmai tapasztalattal és kiváló banki kapcsolatokkal díjmentesen segíti a legkedvezőbb pénzügyi konstrukció kiválasztását és a hitelkérelem teljes körű összeállítását. Ügyvédi kapcsolataink révén az adásvételi szerződést is tudjuk rugalmasan szervezni.
Irodánkban mindent egyszerűen és egy helyen intézhet!



Családi ház részletei

Ár: 26 900 000 Ft
Méret: 120 négyzetméter
Azonosító: 11603925
Irodai azonosító: 3734
Cím: Kossuth Lajos utca
Telek: 2224 négyzetméter
Ingatlan állapota:
Jelleg: családi ház
Építőanyag: Tégla
Fűtés jellege: Cirkó
Fűtés módja: Gáz
Komfort fokozat: Összkomfort
Kor: 21-50 éves
Elhelyezkedés: Udvari
Szintek száma: Földszintes
Bútorozott: Bútorozott
Egész szobák: 4
Nappalik: 1

Egyéb jellemzők

  • Beépíthető tetőtér
  • Csatorna
  • Garázs
  • Melléképület
  • Padlás
  • Parketta
  • Pince
  • Terasz

Térkép


Így keressen családi házat négy egyszerű lépésben. Csupán 2 perc, kötelezettségek nélkül!

Szűkítse a családi házak
listáját
Válassza ki a megfelelő
családi házat
Írjon a hirdetőnek
Várjon a visszahívásra