Eladó családi ház Baracska 75 000 000 Ft

Leírás

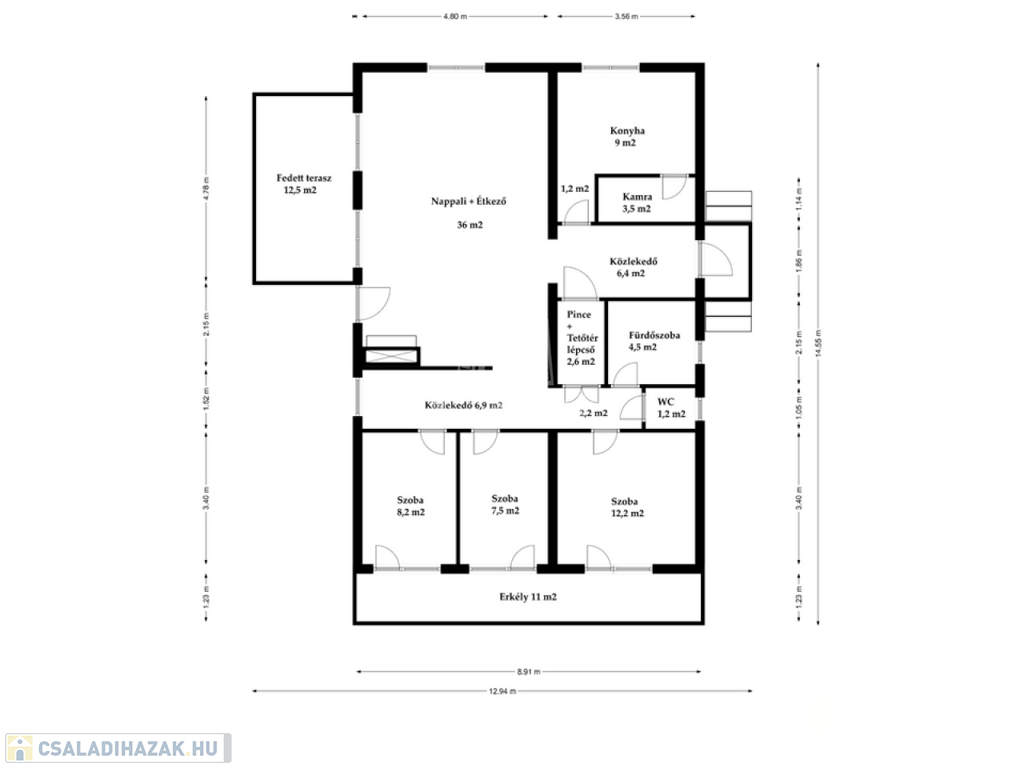
4847. Baracskán, csendes, nyugodt utcában található, 1987-ben épült, háromszintes, beépíthető tetőterű, gáz-, és vegyes központi, plusz kandalló fűtéses, nappali + 3 hálószobás, alacsony rezsivel rendelkező családi ház, összközműves 1150 m2-es telken eladó. Ár: 75 MFt

1. szint (74 m2) garázs, kazánház, pince
2. szint (95 m2) lakószint
3. szint (65 m2) beépíthető tetőtér, ablakokkal és szigeteléssel a tető alatt

A ház 1987-ben épült sóskúti kő (pince) és szilikát tégla falazóelemekből, cserépfedéssel. Az épület szerkezete stabil, falai szárazak. A fűtést Ariston gázkazán, illetve vegyestüzelésű kazán és kandalló is biztosítja, a melegvizet villanybojler szolgáltatja. Egyfázisú áramhálózat mellett vezérelt áram (éjszakai) is rendelkezésre áll.

A kert és konyhakert öntözését ásott kút segíti. 20 m2-es melléképületben tároló helyiségek és baromfiház található.

Családi ház részletei

Ár: 75 000 000 Ft
Méret: 160 négyzetméter
Azonosító: 11545594
Irodai azonosító: 384102
Cím: Háromszintes családi ház
Telek: 1150 négyzetméter
Ingatlan állapota: Átlagos
Jelleg: családi ház
Építőanyag: Szilikát
Fűtés jellege: Cirkó
Fűtés módja: Gáz
Komfort fokozat: Összkomfort
Kor: 21-50 éves
Szintek száma: 2 szint
Egész szobák: 3
Fél szobák: 1

Egyéb jellemzők

  • Csatorna
  • Garázs
  • Pince
  • Terasz

Térkép


Így keressen családi házat négy egyszerű lépésben. Csupán 2 perc, kötelezettségek nélkül!

Szűkítse a családi házak
listáját
Válassza ki a megfelelő
családi házat
Írjon a hirdetőnek
Várjon a visszahívásra