Eladó családi ház Balmazújváros 104 900 000 Ft

Leírás

Balmazújvároson hőszivattyús, amerikai konyhás - tágas nappalival rendelkező 3 hálószobás, új építésű családi ház eladó!

Közelében, üzletek, helyi buszmegálló, iskola, óvoda. Kiváló választás, ha Debrecen közeli településen szeretné megtalálni új otthonát.
Megbízható igényes kivitelezési munka, 2026 II- III. negyedévi átadással.
Minőségi kivételezés mellett nagy hangsúly kerül az esztétikus megjelenésre is.

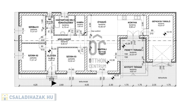
A családi ház paraméterei:
- telek mérete: 486 nm
- a ház hasznos alapterülte: 125 nm
- falazata: 30 cm -es Phorotherm tégla+ 15 cm vastag külső szigetelés
- 3 rétegű hőszigetelt, kívül színes műanyag nyílászárók
- beépített, elektromos alumínium redőnyök
- gazdaságos, hőszivattyús rendszer biztosítja a használati meleg vizet és az otthon melegét melyhez a padlófűtés biztosítja a kellemes hőérzetet. hűtését nagyteljesítményű klíma biztosítja
- antracit szinű, 3 rétegű, hőszigetelt üvegezéssel rendelkező, műanyag nyílászárók teszik világossá a teret, melyekhez beépített elektromos redőnyök készülnek
- új, épített kerítés, térkövezett járda és gépkocsi beállók.
- tágas világos terek és ideális térkihasználás jellemzi
- fedett terasszal kapcsolatos konyha- étkező- nappali, 3 kényelmes méretű hálószoba, fürdőszoba és külön WC, mosókonyha és széles közlekedő
- lakótérrel kapcsolatos 19nm- s garázs
- az építkezés előrehaladott állapotban van, de még saját elképzelései szerint alakíthatja a belső színvilágot (burkolat, szaniter, falszín még választható)


A városból Debrecen gyorsan, dugómentesen megközelíthető, akár saját gépkocsival, akár a folyamatosan fejlődő tömegközlekedéssel.
Azoknak akik szeretik a kertvárosi, zöld környezetet, és fontos a nagyváros közelsége is.
Hívjon, foglaljon időpontot a megtekintéshez!










Hajdú-Bihar, Debrecen, Balmazújváros, ház, kert, eladó, új, modern, hőszivattyú, energiatakarékos, család, BMW, otthon,
Angol leírás

Családi ház részletei

Ár: 104 900 000 Ft
Méret: 126 négyzetméter
Azonosító: 11611650
Telek: 486 négyzetméter
Ingatlan állapota: Kitűnő
Jelleg: családi ház
Építőanyag: Kérdezzen rá a hirdetőtől »
Egész szobák: 4

Egyéb jellemzők

  • Csatorna
  • Garázs
  • Kábel TV
  • Melléképület
  • Parketta
  • Pince
  • Terasz

Így keressen családi házat négy egyszerű lépésben. Csupán 2 perc, kötelezettségek nélkül!

Szűkítse a családi házak
listáját
Válassza ki a megfelelő
családi házat
Írjon a hirdetőnek
Várjon a visszahívásra