Eladó családi ház Ballószög 118 900 000 Ft

Leírás

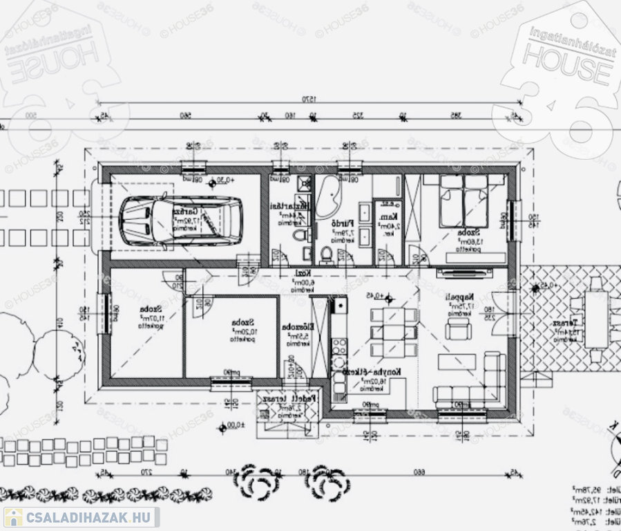
Kecskeméttől 4 percre Ballószögön 114 m2-es, nappali + 3 szobás családi ház, garázzsal eladó!

Jellemzői:


2025. decemberi átadás
114m2
Nappali + 3 szoba
BOSCH 3000 kazán
2 klíma
15 m2 terasz
860m2 telek
18 m2 garázs
extra műszaki tartalom
műanyag nyílászárók redőnnyel



A tulajdonos kérésére az ingatlan bemutatása egy személyes konzultáció után történik, ahol részletes tájékoztatást kaphat az ingatlan paramétereiről és egyéb kényelmi szolgáltatásairól !Figyelem az adatlap megbízónktól kapott adatok alapján készült, pontosságáért felelősséget nem tudunk vállalni!
Az iroda legfrissebb, aktuális kínálatát a HOUSE36 saját weboldalán találja!

Családi ház részletei

Ár: 118 900 000 Ft
Méret: 114 négyzetméter
Azonosító: 11518045
Irodai azonosító: 3619711-4919513
Telek: 860 négyzetméter
Ingatlan állapota: Épülő
Jelleg: családi ház
Építőanyag: Tégla
Fűtés jellege: Cirkó
Fűtés módja: Gáz
Kor: Új építésű
Szintek száma: Földszintes
Egész szobák: 4

Térkép


Így keressen családi házat négy egyszerű lépésben. Csupán 2 perc, kötelezettségek nélkül!

Szűkítse a családi házak
listáját
Válassza ki a megfelelő
családi házat
Írjon a hirdetőnek
Várjon a visszahívásra