Eladó családi ház Balatonőszöd 119 000 000 Ft

Leírás

Balatonőszödön, a Balaton déli partján modern, 2021-ben épült családi ház eladó - nagy telekkel és energiatakarékos megoldásokkal!
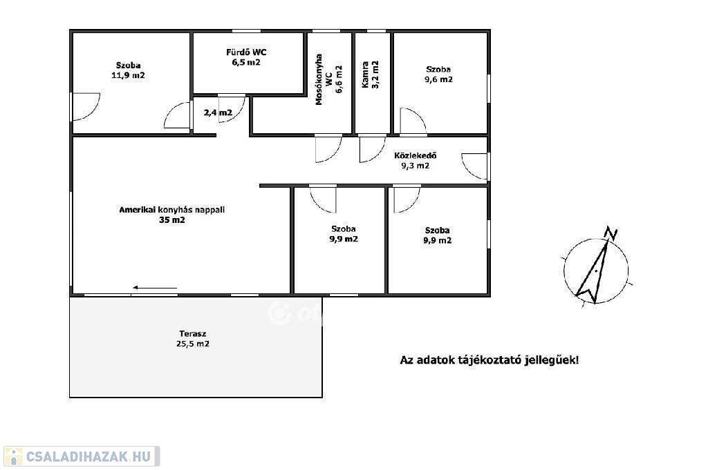
Balatonőszöd csendes, nyugodt környezetében, a Balaton-parttól mindössze 1200 méterre kínálunk eladásra egy 105 m2-es, amerikai konyhás nappalival és négy hálószobával rendelkező, modern családi házat. A nappalihoz 25 m2-es terasz kapcsolódik, mely tökéletes helyszíne lehet a családi, baráti összejöveteleknek.
Az ingatlan 2021-ben épült, thermo-blokk falazattal és cserépfedéssel, így hosszú távra biztosítja az időtállóságot és a kényelmet. A nyílászárók háromrétegű üvegezéssel készültek, a hűtésről és kiegészítő fűtésről a nappaliban elhelyezett hűtő-fűtő klíma gondoskodik. A fűtési rendszer helyiségenként szabályozható elektromos padlófűtés, amelyet egy 5 kW-os napelemes rendszer lát el energiával, biztosítva az alacsony rezsiköltséget és a környezettudatos működést.
A 1098 m2-es, sík területű telek további beépítési lehetőséget kínál ? akár melléképület, garázs vagy műhely is kialakítható rajta.
Kiváló elhelyezkedése révén az autópálya mindössze 2000 méterre található, így Budapestről is könnyen megközelíthető, a közeli szabad strand pedig rövid sétával vagy kerékpárral elérhető.
Ez a modern, energiatakarékos és gondozott családi ház ideális választás lehet állandó otthonnak, nyaralónak, vagy akár befektetésnek is. Otthon Start Hitelprogram
Bővebb információért és megtekintésért keressen bizalommal!

Referencia szám: M309969

Családi ház részletei

Ár: 119 000 000 Ft
Méret: 105 négyzetméter
Azonosító: 11560641
Irodai azonosító: M309969-5019228
Telek: 1098 négyzetméter
Ingatlan állapota:
Jelleg: családi ház
Építőanyag: Kérdezzen rá a hirdetőtől »
Fűtés jellege: Villany
Fűtés módja: Villany
Komfort fokozat: Komfort
Kor: 1-5 éves
Szintek száma: Földszintes
Egész szobák: 5

Egyéb jellemzők

  • Garázs

Térkép


Így keressen családi házat négy egyszerű lépésben. Csupán 2 perc, kötelezettségek nélkül!

Szűkítse a családi házak
listáját
Válassza ki a megfelelő
családi házat
Írjon a hirdetőnek
Várjon a visszahívásra