Eladó családi ház Balatonmáriafürdő 95 000 000 Ft

Leírás

Balaton déli part, BALATONMÁRIAFÜRDŐ belterületén ELADÓ egy STRANDKÖZELI felújítandó ingatlan. Parkolás az ingatlan előtt és udvarában is lehetséges.
Az ingatlan méreténél és kialakításánál fogva sok lehetőséget kínál.

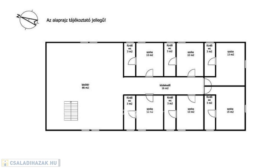
Földszintjén kiszolgáló és tároló helyiségek, egy kisebb lakás fürdővel, és 2 WC találhatók. Hozzáépítésre került még egy fedett terasz is. Tetőterében egy közös, tágas amerikaikonyhás nappaliból nyíló folyosó vezet a 6 különálló egységhez, amit hotelszobaként használtak: minden szobához tartozik egy zuhanyzó WC-vel. Tetőszerkezete ép: zsindellyel és a fedett terasz cseréppel fedett. A földszinti 2 db WC akadálymentesített.
Kivett hétvégi ház és gazdasági épületként szerepel a tulajdoni lapon.
Udvarán jelenleg egy kb.20 m3-es műanyag medence áll a hozzá tartozó szerkezetekkel együtt. Mellette fúrt kút, ami a medence töltésére és locsolásra is szolgálhat.

Balatonmáriafürdőn iskola, óvoda, körzeti orvos, gyógyszertár, boltok, éttermek találhatók. A híres FLORIDA fagyizót sem hagyják ki az ide látogatók, kirándulók.
A település egyre felkapottabb kiépített, gondozott központi és szabad strandjai okán. Forgalmas mólóján kirándulókkal és horgászokkal találkozhatunk. Horgászati lehetőség még a Nyugati Övcsatorna, ami keresztülszeli a falut. Kikötőjéből sétahajó indul hajózási szezonban a Balaton északi partjára: Badacsonyba, Keszthelyre...stb.
További információkért és a megtekintésért hívjon telefonon a hét bármelyik napján!

Referencia szám: M322620

Családi ház részletei

Ár: 95 000 000 Ft
Méret: 330 négyzetméter
Azonosító: 11600455
Irodai azonosító: M322620-5153684
Telek: 634 négyzetméter
Ingatlan állapota: Felújítandó
Jelleg: családi ház
Építőanyag: Tégla
Fűtés jellege: Cirkó
Fűtés módja: Gáz
Komfort fokozat: Dupla komfort
Kor: 21-50 éves
Szintek száma: 1 szint
Egész szobák: 3
Fél szobák: 4

Egyéb jellemzők

  • Garázs

Térkép


Így keressen családi házat négy egyszerű lépésben. Csupán 2 perc, kötelezettségek nélkül!

Szűkítse a családi házak
listáját
Válassza ki a megfelelő
családi házat
Írjon a hirdetőnek
Várjon a visszahívásra