Eladó családi ház Balatonmáriafürdő 45 000 000 Ft

Leírás

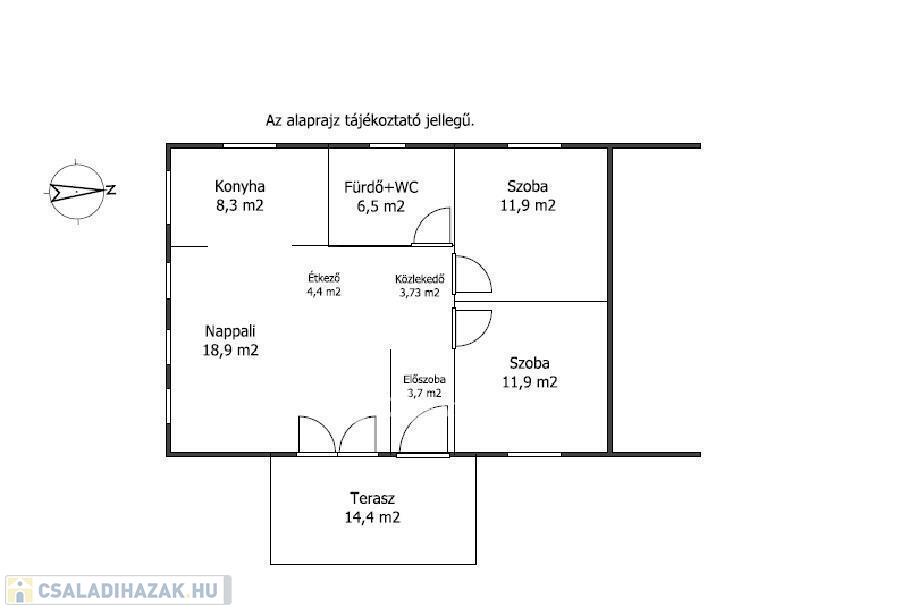
Könnyűszerkezetes szerkezetkész ikerház fele- BALATONMÁRIAFÜRDŐ FŐUTCÁJÁN -alakítsa saját otthonát, a Balaton közelében:

Csendes, nyugodt környezetben, mégis frekventált helyen kínálunk eladásra egy 79 m2-es ikerházat Balatonmáriafürdőn, 380 m2-es nyeles telken.

Elrendezés:
1 tágas nappali
2 hálószoba
konyha + étkező + előszoba
fürdőszoba WC-vel
udvari parkolási lehetőség
Az ingatlan szerkezetkész állapotú: kívülről minden készen van, belül pedig az új tulajdonosra vár a végső kialakítás: gipszkartonozás, burkolatok, festés és egyéb szakipari munkák. Így teljes mértékben saját igényei szerint formálhatja álmai otthonát vagy nyaralóját.
Közművek: Víz, villany, szennyvíz bekötve a házba. Gázcsonk az utcában.
Tervezett fűtés: elektromos klíma
Építési engedély rendelkezésre áll, használatbavételi engedély még nincs - viszont az egyik legnagyobb előnye éppen az, hogy a belső kialakítás teljes mértékben szabadon választható.
Ideális választás saját otthonnak, nyaralónak vagy befektetésnek a Balaton part közelében. Télen, nyáron programok a településen. A MÓLÓ melletti kikötőből indul hajójárat a Balaton északi városaiba. ( Keszthely, Badacsony...stb) A faluba egyre több a beköltöző. Központjában igényes üzletek, éttermek, híres DISCO, és a még híresebb FLORIDA fagyizó várja a lakókat és a kirándulókat. Kiépített Központi Strandja és szabad strandjai, csónakkikötő és a Nyugati csatorna horgász lehetősége kihagyhatatlan az itt lakók és nyaralók számára.
Ne szalassza el ezt a kivételes lehetőséget, hívjon és tekintse meg személyesen!

Referencia szám: M304758

Családi ház részletei

Ár: 45 000 000 Ft
Méret: 79 négyzetméter
Azonosító: 11604286
Irodai azonosító: M304758-4956543
Telek: 350 négyzetméter
Ingatlan állapota: Épülő
Jelleg: ikerház
Építőanyag: Könnyűszerkezetes
Fűtés jellege: Villany
Fűtés módja: Villany
Komfort fokozat: Összkomfort
Kor: Új építésű
Szintek száma: Földszintes
Egész szobák: 1
Fél szobák: 2

Egyéb jellemzők

  • Garázs

Térkép


Így keressen családi házat négy egyszerű lépésben. Csupán 2 perc, kötelezettségek nélkül!

Szűkítse a családi házak
listáját
Válassza ki a megfelelő
családi házat
Írjon a hirdetőnek
Várjon a visszahívásra