Eladó családi ház Balatonkenese 125 000 000 Ft

Leírás

Eladó új építésű ikerházfél Balatonkenesén!


A CasaNetWork Balatonalmádi Ingatlaniroda eladásra kínálja a 1983-as számú, kivételes adottságokkal bíró lakóingatlanát Balatonkenesén! 

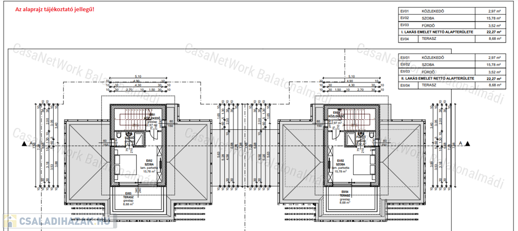
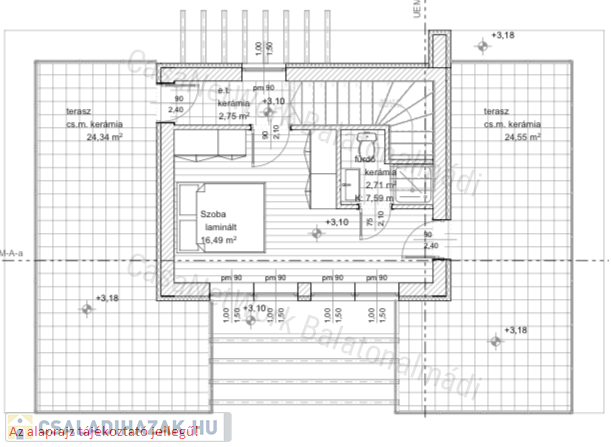
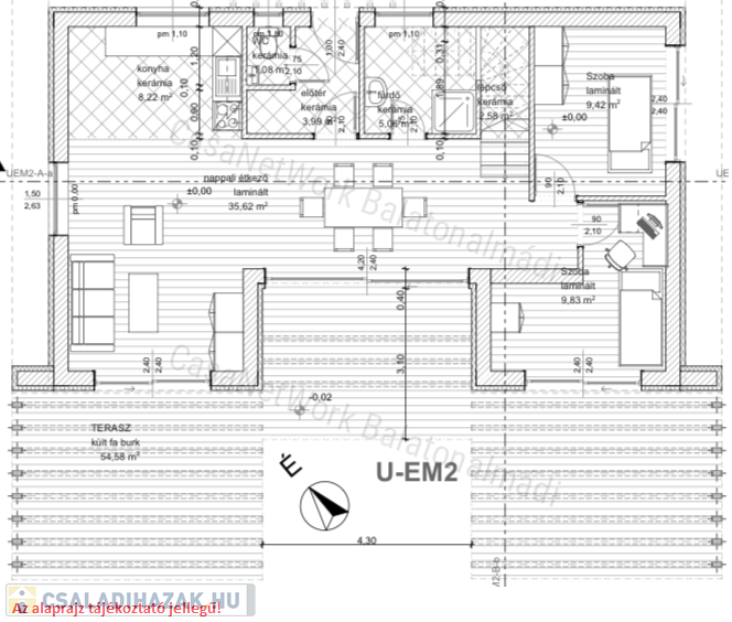
 A balatonkenesei új építésű ikerházfél jellemzői:

- lehetőség illetékmentes vásárlásra

- kiváló lokáció: hamisítatlan balatoni hangulat; csendes, nyugodt környezet

- a környék rendezett, a szomszédos telkek jó megjelenésű, karbantartott ingatlanokkal beépítettek 

- a két ikerházfélnek nincs közös fala

- tégla falazat, grafitos szigetelés, hőtechnikailag közel 0 energiaigény

- kondenzációs gázkazán biztosítja a fűtést és a melegvíz-ellátást, valamint 1 db hűtő-fűtő klímaberendezés is az alapár része

- az igényes kivitelezés az ingatlan egészére jellemző; magas szintű épületminőség és felszereltség

- saját használatú kertrész és autóbeálló 

- kiváló lehetőség saját célra vagy befektetésnek


Amennyiben a 1979-es számú, a CasaNetWork Balatonalmádi Ingatlaniroda által hirdetett balatonkenesei ikerházfél, vagy bármely a kínálatunkban található ingatlan felkeltette érdeklődését, kérem hívjon a megadott telefonszámon!

Schultheisz Brigitta

vezető ingatlan-képviselő

+36 20 250 4403

 

Vásárolna, de nincs rá keret? Kollégám díjmentes, banksemleges hitelügyintézéssel áll rendelkezésére.

CasaNetWork -  A civilizált ingatlanértékesítés artériája! 


Családi ház részletei

Ár: 125 000 000 Ft
Méret: 100 négyzetméter
Azonosító: 11603824
Irodai azonosító: 163701983
Telek: 360 négyzetméter
Ingatlan állapota: Kitűnő
Jelleg: ikerház
Építőanyag: Tégla
Komfort fokozat: Összkomfort
Egész szobák: 4

Így keressen családi házat négy egyszerű lépésben. Csupán 2 perc, kötelezettségek nélkül!

Szűkítse a családi házak
listáját
Válassza ki a megfelelő
családi házat
Írjon a hirdetőnek
Várjon a visszahívásra