Eladó családi ház Balatonkenese-Balatonakarattya 195 000 000 Ft

Leírás

EZT MINDENKÉPPEN LÁTNIA KELL! 

Balatonakarattyán 3 szobás összkomfortos családi ház csendes, de központ közeli elhelyezkedéssel eladó. 

A CasaNetWork Balatonalmádi ingatlaniroda eladásra kínálja a 163701869 számú, kiváló tulajdonságokkal bíró 1998. évben épült balatonakarattyai családi házat. 

A CasaNetWork Balatonalmádi irodája által kínált ingatlan jellemzői:

Elhelyezkedése: 

- Balatonakarattya hétvégi házas üdülőterületén (Üh1 építési övezetében) található, aszfalt burkolatú útról megközelíthető. Az ingatlan 15 perc sétára ( 900 m-re ) helyezkedik el az Akarattyai magasparttól, mely a Balaton keleti medencéjének egyik legszebb panorámájával rendelkezik.

- maximum tíz perc sétára találhatók a település központjában lévő intézmények, élelmiszerbolt, és buszmegálló. 

- a legközelebbi strand 20 perc séta távolságra a Bezerédj strand 

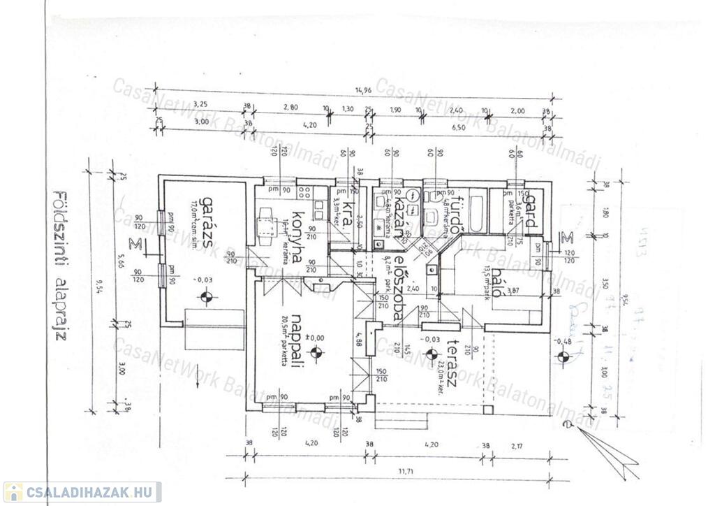
A bruttó 132 m2 területű ház  tágas helyiségekkel és teraszokkal rendelkezik. A hasznos alapterülete 97,30 m2. 

Egy néhány éve történt átépítés során a konyha és a kamra összenyitásra került, így egy nagyobb alapterületű konyha-étkező alakult ki. A konyhából az észak-keleti homlokzaton egy új ajtó került kialakításra, mely egy teraszon keresztül az udvarba biztosít közvetlen kapcsolatot. A garázst  - megfelelő átépítést követően egy nagy méretű szobává alakították. 

Igény esetén a ház tovább bővíthető. ( maximális beépíthetőség 15 % ) 

A környék rendezett, csendes, átmenő forgalomtól mentes. A ház akár lakhatásra, akár nyaraló céljára kitűnő választás. 

A ház vb alapokkal, tégla és vb függőleges teherhordó szerkezettel és vb födémmel rendelkezik. Tetőfedése cserép. 

Az ingatlan minden közmű tekintetében önálló bekötéssel és mérővel rendelkezik.  Így: 

- ivóvíz

- gáz

- elektromos csatlakozás ( 3*16 A) 

Fentieken túl a vízszerzésre egy kút is rendelkezésre áll. 

Az ingatlan fűtéséről gázkazán gondoskodik.  Ezen kívül a nappaliban rendelkezésre áll egy épített kandalló is. 

Az ingatlan tehermentes.  

Balatonakarattya Veszprém vármegye dél-keleti szegletében a Balaton partján található község. 

A település vasúton és közúton az M7, és 8. sz. főközlekedési út irányából is gyorsan, kényelmesen, elérhető. A község a Budapest Balaton kerékpár út első balatoni állomása. 

A község melletti Balatonfőkajár településen létesült a térség egyik legnagyobb nevezetessége a Balaton Park Circuit motorversenypálya. A 4115 m hosszú 8 jobb és 10 bal kanyarból álló pálya nemzetközi autó és motorversenyek helyszíne. 

Amennyiben a 163701869 számú a CasaNetWork által hirdetett balatonakarattyai ingatlan, vagy bármely a kínálatunkban található más ingatlan, építési telek felkeltette az érdeklődését, hívjon a megadott elérhetőségeimen. 

Irodánk az ingatlan vásárlással összefüggő teljes körű ügyvédi, ill. díjmentes, bank semleges hitel ügyintézéssel áll rendelkezésére.

CasaNetWork - A civilizált ingatlanértékesítés artériája!

Családi ház részletei

Ár: 195 000 000 Ft
Méret: 132 négyzetméter
Azonosító: 11579207
Irodai azonosító: 163701869
Telek: 1400 négyzetméter
Ingatlan állapota: Újszerű
Jelleg: családi ház
Építőanyag: Tégla
Fűtés jellege: Cirkó
Fűtés módja: Gáz
Komfort fokozat: Összkomfort
Egész szobák: 3

Így keressen családi házat négy egyszerű lépésben. Csupán 2 perc, kötelezettségek nélkül!

Szűkítse a családi házak
listáját
Válassza ki a megfelelő
családi házat
Írjon a hirdetőnek
Várjon a visszahívásra