Eladó családi ház Balatonfűzfő 270 000 000 Ft

Leírás

Eladó Balatonfűzfő csendes, természetközeli részén akár többfunkció betöltésére alkalmas korszerű,magas műszaki tartalommal, modern technologiával épült újszerű kétszintes lakóház.

Balatonfűzfő a Balaton északkeleti csücskén, a Fűzfői-öböl partján terül el, délkeleti oldalán a fűzfői magaspart emelkedik, amely észak felé haladva fokozatosan ereszkedik alá. Arculatára jellemző, hogy három településrészből áll: városias, családi házas és üdülőterületi övezet.

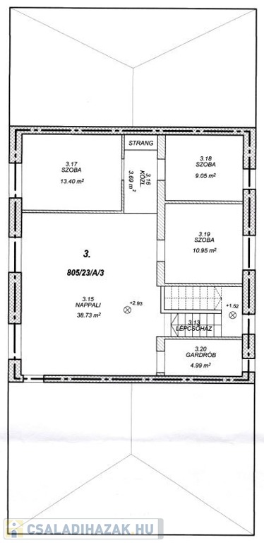
Az 1145m2 telken elhelyezkedő kiváló elosztású hangulatos otthon hasznos lakótere 266m2, mely két külön bejáratú lakórészre tagolódik, fűtésrendszere külön vezérelhető.

Az egyik lakrész 225m2, melynek földszintjén található 50m2-es teraszkapcsolatos amerikai konyhás étkező-nappali, ahol nagyobb család vagy baráti társaság kényelmesen elfér a terített asztalnál. Továbbá 1 hálószoba hozzá kapcsolódó tágas fürdőszoba sarokkáddal és kétszemélyes zuhanyzóval, külön nyíló 2 szoba, gardrób, fürdő-wc, háztartási helység, tároló, kamra, közlekedő, előtér, lépcsőház. Az emeleten nappali, külön nyíló 2 szoba, fürdőszoba sarokkáddal, gardrób, közlekedő került kialakításra.

A másik külön bejárattal rendelkező lakrész 41m2, ahol 2 szoba, zuhanyzós fürdőszoba wc-vel és közlekedő található, ami jelenleg irodaként és tornateremként funkcionál.

A házhoz kapcsolódó 40m2-es teraszon pihenhet, családdal, nagyobb társasággal kikapcsolódhat, grillezhet, ahol motoros árnyékoló ad védelmet a nyári napsugárzástól, esőtől, biztosítva a zavartalan időtöltést.

A kert növényzetének üdeségéről locsoló rendszer gondoskodik. A területre elektromos úszókapu nyitásával juthatunk be,a házat térkövezett úton közelíthetjük meg. A külső világítás telefonról is irányítható, programozható.

A ház mellett helyezkedik el egy 23m2-es tároló.

Az ingatlan műszaki tartalma:
- falazat 30-as blokktégla
- homlokzati hő-és hangszigetelés 20cm EPS , 18cm XPS lábazati hőszigetelés, aljzatban 14cm EPS lépésálló hőszigetelés
- hőszivattyús padlófűtés(GREE levegő-víz hőszivattyú 7.5KW)                                                 
- a fűtés épületrészenként külön vezérelhető                                                                      
- mennyezeti felület hűtés                                                                                                               
- melegvíz ellátást 200 literes Hajdú bojler szolgáltatja
- 6 légkamrás homlokzati műanyag hő- és hangszigetelt  nyílászárók szúnyoghálóval és távirányítható elektromos redőnyökkel                                                                
- napelem előkészítés                                                                                                                      
- cserép fedésű tető                                                                                                              
- rezsi kb.2.200-Ft/m2/év (víz, villany, fűtés,)                                                                       
- elektromos úszókapu                                                                                                             
- locsoló rendszer                                                                                                                      
- telefonról irányítható és programozható külső világítás

Az ingatlan jó elosztású, fekvésének és nagyméretű nyílászáróinak köszönhetően benapozottsága kiváló, korszerű műszaki tartalmának köszönhetően fenntarthatósága nagyon kedvező.

A Balaton 2500 m, Veszprém 15 km távolságra elérhető.

Tekintse meg ezt a remek adottságokkal és lehetőségekkel rendelkező ingatlant, mely kiválóan alkalmas állandó lakhatásra, befektetésnek kiadásra vagy vállakozásra is nagyszerű választás!

Hívjon, tekintse meg személyesen, nem fog csalódni!

06 30 140 3328

Dream-Ing. Álomból Otthont!  

Családi ház részletei

Ár: 270 000 000 Ft
Méret: 270 négyzetméter
Azonosító: 11591631
Irodai azonosító: 284478
Telek: 1143 négyzetméter
Ingatlan állapota: Kitűnő
Jelleg: családi ház
Építőanyag: Tégla
Komfort fokozat: Összkomfort
Egész szobák: 5
Fél szobák: 4

Egyéb jellemzők

  • Terasz

Így keressen családi házat négy egyszerű lépésben. Csupán 2 perc, kötelezettségek nélkül!

Szűkítse a családi házak
listáját
Válassza ki a megfelelő
családi házat
Írjon a hirdetőnek
Várjon a visszahívásra