Eladó családi ház Balatonföldvár 350 000 000 Ft

Leírás

LUXUS HÁZ BALATONI ÖRÖKPANORÁMÁVAL!

Az ingatlan Balatonföldvár legmagasabb pontján, egy csendes, aszfaltozott mellékutcában található. A ház gyönyörű örökpanorámás, kelet-nyugati tájolású, 1038 nm-es összközműves telken helyezkedik el. Pazar kilátás nyílik itt a teljes Balatonra, Balatonkenesétől Keszthelyig.

A tervezői koncepció része volt, hogy a környező tájra néző panoráma szerves része legyen az enteriőrnek, így az épület napfényes, panorámás" kilátó" lett. A ház a gondos tervezésnek és kivitelezésnek köszönhetően praktikus, élhető terekkel rendelkezik, mely a legkorszerűbb, prémium anyagok felhasználásával készült.

A 3 szintes körbejárható szigetelt épület 2020-ban épült, melynek hasznos lakóterülete 447 nm.
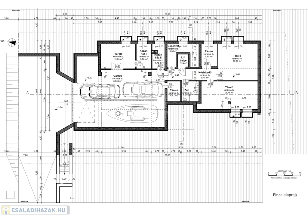
- Alagsor: 195 m2
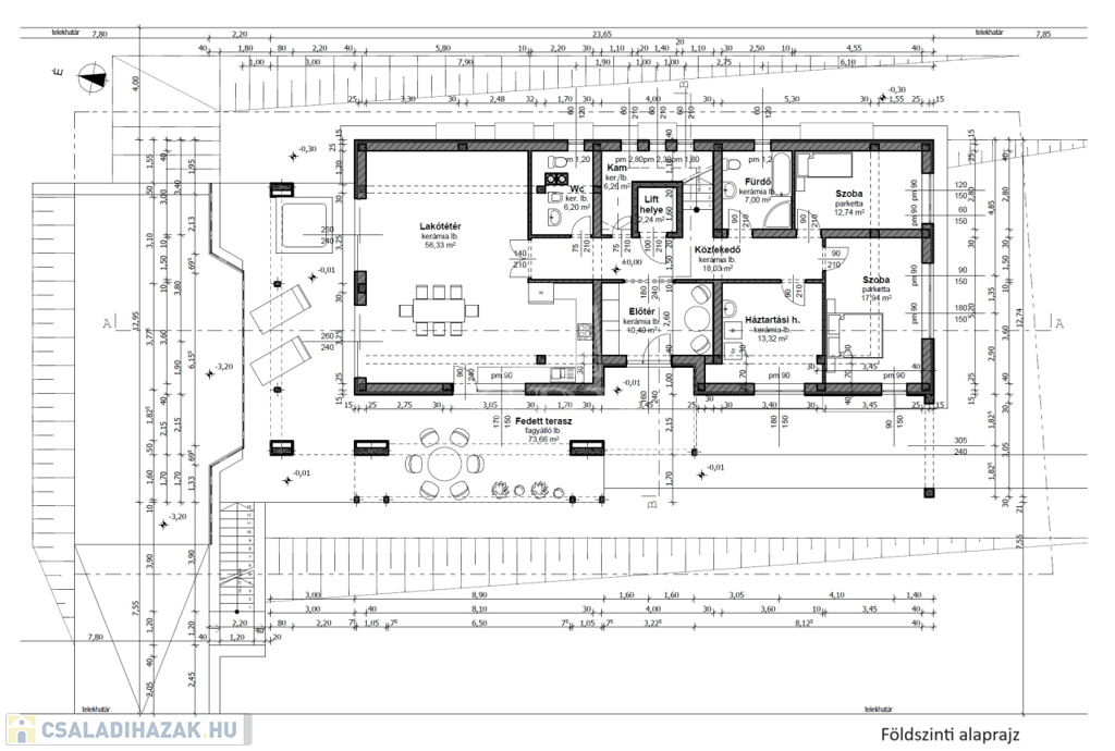
- Földszint: 150 m2 + 73 m2 terasz
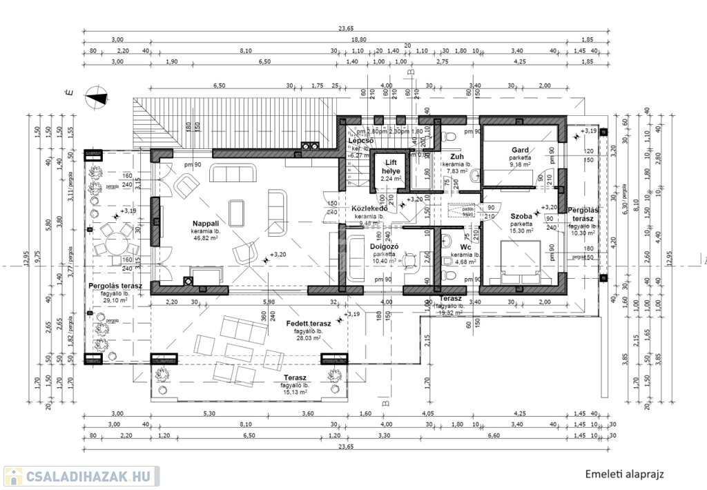
- Emelet: 112 m2 + 101 m2 terasz

A 195 nm-es nettó alapterületű fűtött alagsorban található egy 85 nm-es egylégterű garázs, melyben 4 autó vagy akár 2 autó és 1 kisebb méretű hajó is kényelmesen elfér, valamint több tároló, vizes blokk, gépészeti és háztartási helység, továbbá egyéni igények szerint kialakítható kondi terem, mozi szoba, borterem. Fűtése korszerű gázkazán, padlófűtéses hőleadással, valamint másodlagos fűtésként vegyes tüzelésű kazán is kialakításra került, a ház minden szinten klíma kiállással rendelkezik, kiépített riasztórendszerrel ellátott. Az épület a lépcsőház mellett lift előkészítéssel (liftaknával) kiépített, mely mind a három szintet összeköti.

A 150 nm-es nettó alapterületű földszinten nagyméretű előszoba, 1 amerikai konyhás nappali, 2 hálószoba, 2 fürdőszoba, háztartási helység, kamra található. Körbe fedett 73 nm-es terasszal rendelkezik.

A 112 nm-es nettó alapterületű emeleten 1 nappali (kandalló előkészítéssel), 3 szoba, 2 fürdőszoba, valamint 101 nm-es részben fedett és pergolás körpanorámás terasszal.

A füvesített kertben fúrt kút található, mely tökéletesen alkalmas kertgondozáshoz, öntözőrendszer működtetéséhez, medencetöltéshez, autómosáshoz.

Az épület használatbavételi engedéllyel rendelkezik, jelenlegi állapotában eladó, melyhez a teljes tervdokumentáció és részletes műszaki leírás is rendelkezésre áll.

Az épület külső színezését, melegburkolatait, belső nyílászáróit és a konyhabútort az új tulajdonos a saját ízlésvilágára hangolhatja.

Balatonföldvár központ, Yacht kikötő, strand 5 percre!

Ezt a házat érdemes megnézni!
További részletes tájékoztatásért és a megtekintéssel kapcsolatban várom megtisztelő hívását!
EA

Családi ház részletei

Ár: 350 000 000 Ft
Méret: 447 négyzetméter
Azonosító: 11539353
Irodai azonosító: 383117
Cím: Balatonföldvár
Telek: 1038 négyzetméter
Ingatlan állapota: Kitűnő
Jelleg: családi ház
Építőanyag: Tégla
Fűtés jellege: Egyedi
Komfort fokozat: Luxus komfort
Kor: 6-10 éves
Szintek száma: 2 szint
Egész szobák: 7
Fél szobák: 2

Egyéb jellemzők

  • Csatorna
  • Garázs
  • Pince
  • Terasz

Térkép


Így keressen családi házat négy egyszerű lépésben. Csupán 2 perc, kötelezettségek nélkül!

Szűkítse a családi házak
listáját
Válassza ki a megfelelő
családi házat
Írjon a hirdetőnek
Várjon a visszahívásra