Eladó családi ház Balatonboglár 119 900 000 Ft

Leírás

Frissen felújított, klimatizált, kétgenerációs ház Balatonbogláron – pár perc sétára a strandtól!

Állami 3%-os hitel is igényelhető!

Eladó egy kivételes adottságokkal, két külön bejáratú lakással rendelkező családi ház Balatonbogláron, mindössze pár perc sétára a közkedvelt Jankovich szabadstrandtól.

A házról:

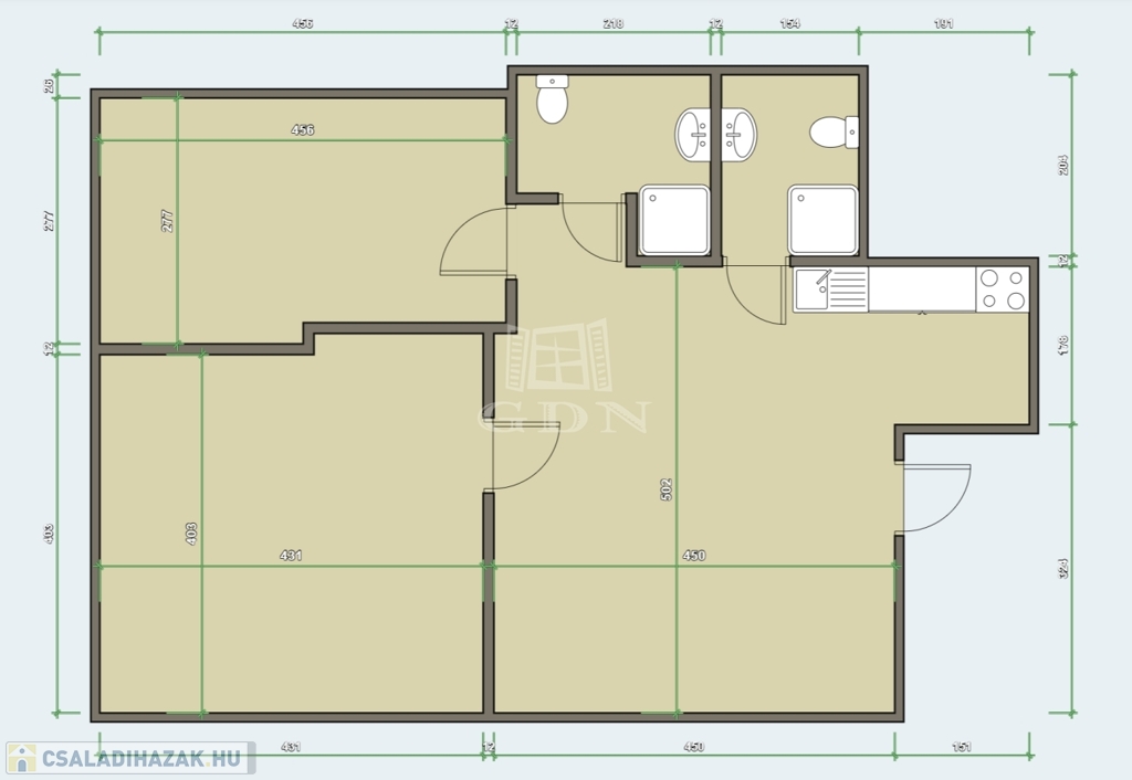
-Kétszintes, önálló bejáratú lakásokkal, garázzsal

-Mindkét szinten: nappali, konyha, fürdőszoba + hálószobák

-Frissen felújított, klimatizált, azonnal költözhető állapotban

-Délnyugati fekvésű, fedett terasz, gondozott, sík, 957 m2-es kert, 2 nagy diófa, cseresznyefa, bokrok

- Lakóövezetben, teljesen bekerített területen, elektromos kapuval

-Ideális két generációnak, baráti családoknak, vagy akár nyaraltatásra is.


Felújítások, korszerűsítések:

2017: teljes körű műszaki felújítás
✅ új tető
✅ külső hőszigetelés
✅ összes közművezeték cseréje
✅ kondenzációs kazános központi fűtés

2025:
✅ új hűtő-fűtő klímák telepítve


Befektetési lehetőség:

A ház jelenleg is sikeresen üzemelő nyaralóként működik, kialakult vendégkörrel és kiváló értékelésekkel.
Új tulajdonosa átveheti a működést, a nevet és a vendégkört is – vagy dönthet úgy, hogy az egyik szinten él, a másikat pedig kiadja, stabil bevételért.

Pénzügyi előny:

✅ 3%-os államilag támogatott lakáshitel igényelhető – ritka lehetőség a Balaton partján!

Elhelyezkedés: Balatonboglár, Jankovich strand közelében.

Csendes utca, gondozott kert, közel a vízhez és a városközponthoz!

Keressen bizalommal, az ingatlan hétvégén is megtekinthető!

Családi ház részletei

Ár: 119 900 000 Ft
Méret: 160 négyzetméter
Azonosító: 11563720
Irodai azonosító: 387089
Cím: nagyon jó állapot, azonnali költözé
Telek: 957 négyzetméter
Ingatlan állapota: Felújított
Jelleg: családi ház
Építőanyag: Tégla
Fűtés jellege: Cirkó
Fűtés módja: Gáz
Komfort fokozat: Összkomfort
Kor: 21-50 éves
Szintek száma: 1 szint
Egész szobák: 6

Egyéb jellemzők

  • Csatorna
  • Garázs
  • Pince
  • Terasz

Térkép


Így keressen családi házat négy egyszerű lépésben. Csupán 2 perc, kötelezettségek nélkül!

Szűkítse a családi házak
listáját
Válassza ki a megfelelő
családi házat
Írjon a hirdetőnek
Várjon a visszahívásra