Eladó családi ház Balatonalmádi 199 000 000 Ft

Leírás

Önálló szerkezet, privát kertkapcsolat, medencés életérzés, tervezett A++ energetika, hőszivattyú, Internorm nyílászárók és exkluzív balatoni lokáció – Balatonalmádi egyik legmagasabb minőséget képviselő új építésű otthona.

Balatonalmádi egyik legígéretesebb, magas presztízsű fejlesztési környezetében, az Almádi Villaparkban kínálunk megvételre egy új építésű, kétszintes, önálló szerkezetű ikerházat, amely a modern építészet letisztultságát, a prémium műszaki megoldásokat és a balatoni életforma eleganciáját egyesíti. Ideális otthon, ahol a korszerű műszaki tartalom, a privát kertkapcsolat és a balatoni életminőség kompromisszummentes egységet alkot.

Az Almádi Villapark koncepciója túlmutat egy hagyományos lakóövezeten: olyan igényes lakó- és üdülőkörnyezet jön létre, ahol a modern infrastruktúra, a gondozott zöldfelületek és a Balaton közelsége harmonikus egységet alkotnak. A Yacht kikötő, a Yacht Kemping strand, valamint Balatonalmádi és Káptalanfüred kedvelt részei mind könnyen elérhetők, így az ingatlan egyszerre szolgálhat állandó, magas színvonalú otthonként vagy exkluzív balatoni rezidenciaként.

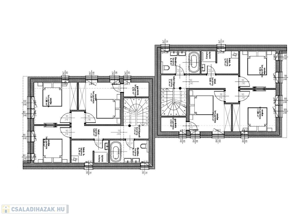
A fejlesztés két, egyenként 111 m²-es, belső kétszintes lakóegységből áll, melyek 686 m²-es, két utcára nyíló telken helyezkednek el, saját külön bejárattal, valódi privát használatot biztosítva.
Az alaprajz átgondolt, jól bútorozható és hosszú távon is élhető otthont biztosít.

A földszinten kapott helyet a világos, tágas nappali–étkező–konyha, amely nagy üvegfelületeivel és közvetlen kertkapcsolatával a belső és külső életterek természetes összhangját teremti meg. Ez a központi tér ideális mind a mindennapi családi élethez, mind elegáns vendégfogadáshoz.

Az emeleti szint a privát lakófunkciókat szolgálja, három külön nyíló szobával, fürdőszobával, gardróbbal, közlekedőkkel és háztartási helyiséggel. A kialakítás kényelmes, funkcionális és hosszú távon is jól használható.

Az ingatlan műszaki paraméterei egyértelműen a felső kategóriát képviselik, ahol az esztétikai minőség és az energiahatékonyság egymást erősíti.

FŐ ÉRTÉKEK:
- új építésű, kulcsrakész kivitel
- közös fal nélküli ikerházkialakítás, saját, külön bejárat mindkét lakóegységhez
- 685 m²-es, két utcára nyíló telek
- 3 hálószoba + nappali
- földszinten közel 38 m²-es nappali–étkező–konyha
- privát kertkapcsolat
- nagy üvegfelületek, világos terek
- karakteres, elegáns homlokzati díszítő burkolatok
- medencés kültéri kialakítás
- Yacht kikötő és strand közelsége
- zöldövezeti, presztízsértékű környezet
- bekerített lakópark

Prémium műszaki tartalom:
- 30cm POROTHERM kerámia falazat
- 20 cm homlokzati hőszigetelés
- tervezett A++ energetikai szint
- hőszivattyús fűtési-hűtési rendszer
- modern lapostető
- napelem telepítésére alkalmas tetőfelület
- 3 rétegű, keskeny keretes Internorm nyílászárók, kívül zöld színben
- igényes hideg - és meleg burkolatok
- prémium csapok és szaniterek
- a szobákban laminált parketta, a többi helyiségben járólap
- magas minőségű, modern gondozásmentes beltéri ajtók
- opcionális okosotthon-rendszer
- opcionális kertépítés, kerítés

Az ingatlan kulcsrakész állapotban kerül átadásra, és a készültségi fok függvényében egyéni igények még figyelembe vehetők.
Építkezés várható befejezése: 2027 nyár

A korszerű szerkezeti,- nyílászáró- és gépészeti megoldások hosszú távon is értékálló, alacsony fenntartási igényű és magas komfortszintű ingatlant eredményeznek.

A privát kert és a medencés kültéri koncepció tovább emeli az ingatlan értékét, így ez az otthon nem csupán lakóingatlan, hanem egy teljes életstílus-ajánlat: elegáns, nyugodt, korszerű és reprezentatív.

Ez az ingatlan ideális választás azok számára, akik Balatonalmádiban keresnek új építésű, kiemelkedő műszaki tartalmú, modern megjelenésű és valódi privát szférát biztosító otthont. Kiváló döntés lehet állandó lakhatásra, második rezidenciának, vagy értékálló prémium befektetésként.

Amennyiben befektetésben gondolkodik, szeretné kiadni az ingatlant, az üzemeltetés is biztosított.

Ne maradjon le Balatonalmádi egyik legígéretesebb új építésű prémium ingatlanáról – kérjen további információt, és tekintse meg a projekt részleteit személyesen is.

Családi ház részletei

Ár: 199 000 000 Ft
Méret: 111 négyzetméter
Azonosító: 11608124
Irodai azonosító: 125874
Cím: Balatonalmádi
Telek: 685 négyzetméter
Ingatlan állapota: Átlagos
Jelleg: ikerház
Építőanyag: Kérdezzen rá a hirdetőtől »
Fűtés jellege: Cirkó
Kor: Új építésű
Egész szobák: 4

Egyéb jellemzők

  • Terasz

Így keressen családi házat négy egyszerű lépésben. Csupán 2 perc, kötelezettségek nélkül!

Szűkítse a családi házak
listáját
Válassza ki a megfelelő
családi házat
Írjon a hirdetőnek
Várjon a visszahívásra