Eladó családi ház Balatonalmádi 170 000 000 Ft

Leírás

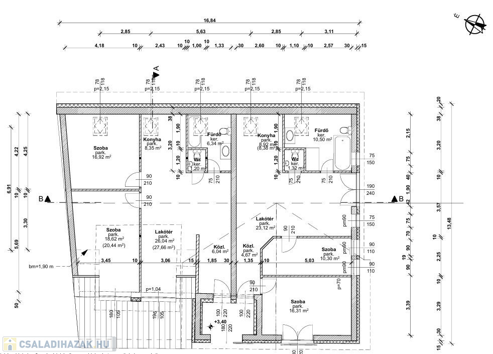
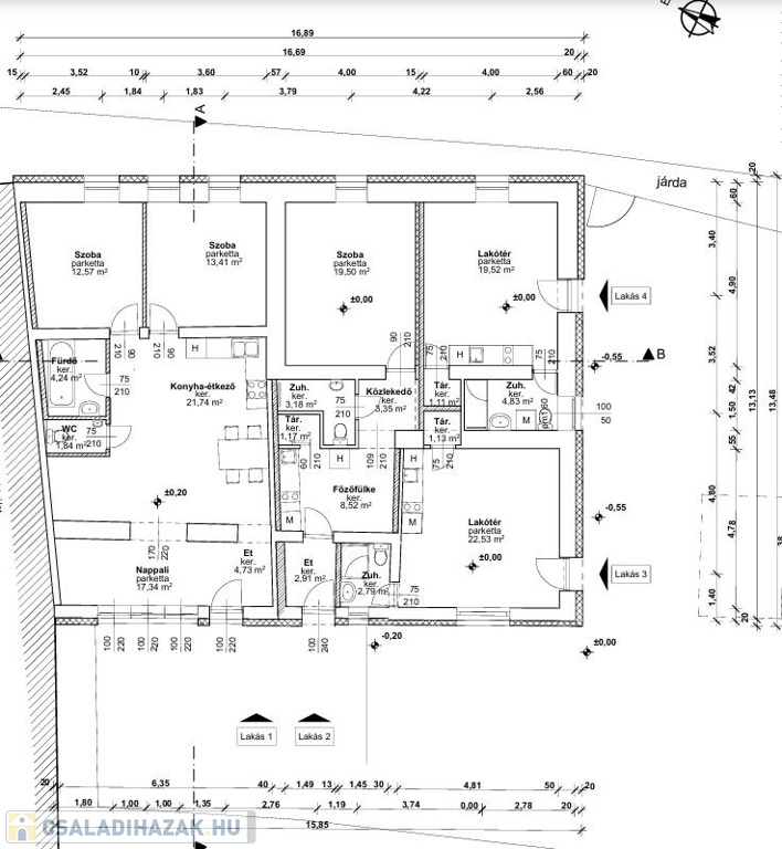
Eladó egy 761m2-es telken található befejezésre váró ingatlan Balatonalmádiban, mely egy régi épület bővítésével és emelet ráépítésével jött létre.
Az ingatlan 360 négyzetméter mely 6 lakást foglal magába.
Az alsó szinten a tervek szerint 4 lakás lett kialakítva, ahol a belső falak már állnak, így a vásárló könnyen befejezheti az építkezést.
Az emeleten 2 nagyméretű tetőtéri lakás tervezett, ahol a szobák száma és méretei igény szerint még alakíthatók. Az egyik lakás balatoni panorámás kilátással rendelkezik, ami egyedülálló élményt nyújt az ott lakóknak.

A ház cserép tetős, hőszigetelt, és új homlokzati nyílászárókkal rendelkezik, ami hő-és hangszigetelt, továbbá az energiahatékonyságot biztosítja.
Az ingatlan kitűnő befektetési lehetőség is, hiszen a 6 lakás kiadásával jelentős bevételt lehet elérni.
A Balaton és a központ 15 perc sétára elérhető.

További kérdés és megtekintési szándék esetén szeretettel várom hívását!
06 30 140 3328
Dream-Ing
Álomból Otthont

Családi ház részletei

Ár: 170 000 000 Ft
Méret: 360 négyzetméter
Azonosító: 11515630
Irodai azonosító: 324032
Telek: 761 négyzetméter
Ingatlan állapota: Épülő
Jelleg: családi ház
Építőanyag: Kérdezzen rá a hirdetőtől »
Egész szobák: 10
Fél szobák: 2

Így keressen családi házat négy egyszerű lépésben. Csupán 2 perc, kötelezettségek nélkül!

Szűkítse a családi házak
listáját
Válassza ki a megfelelő
családi házat
Írjon a hirdetőnek
Várjon a visszahívásra